Ukoliko ste ovu nekretninu vidjeli negdje drugdje po nižoj cijeni, ista cijena vrijedi i kod nas!
Link na često postavljena pitanja
Razgledavanje putem VIDEO POZIVA
NAZOVITE NAS 023 300 000

Villa Cadenza je treća vila u sklopu Golden Sunset Villas kompleksa, smještenog u prvom redu do mora uz obalu Privlake kraj Zadra. Ova vrhunska vila nudi sve što vam je potrebno ako želite posjedovati luksuznu nekretninu odmah uz more. Svaki dio ove prostrane vile pruža zadivljujući pogled na more. Iz dvorišta možete zakoračiti ravno na prekrasnu pješčanu plažu ispred vile.
Svaka vila u kompleksu izgrađena je prema pomno osmišljenom dizajnu i opremljena značajkama koje zadovoljavaju najviše standarde turističkog najma s 5 zvjezdica, što vlasnicima omogućava maksimalne prihode od najma.
Svojom modernom arhitekturom i vrhunskom kvalitetom gradnje, Villa Cadenza predstavlja iznimnu priliku za vrhunski životni stil.
Vila se nalazi na parceli od 726 m² i uključuje pažljivo dizajniran i udoban interijer, garažu, veliku terasu te infinity bazen, s ukupnom površinom od 408,30 m².

Golden Sunset Villas
AURELIA, BRISONE, CADENZA i DALMARA
– Gdje se svaki zalazak sunca pretvara u umjetnost
✅ Prvi red do mora, uz pješčanu plažu
✅ Direktan pristup moru
✅ Grijani infinity bazen
✅ Kuhinja (Dan Küchen) s uređajima (Miele i Bosch)
✅ Vrhunski kućanski uređaji (Miele i Bosch)
✅ Namještaj po mjeri
✅ Mogućnost potpune opremljenosti
✅ 4 spavaće sobe
✅ 4 kupaonice + gostinjski WC
✅ Garaža

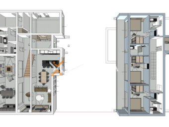
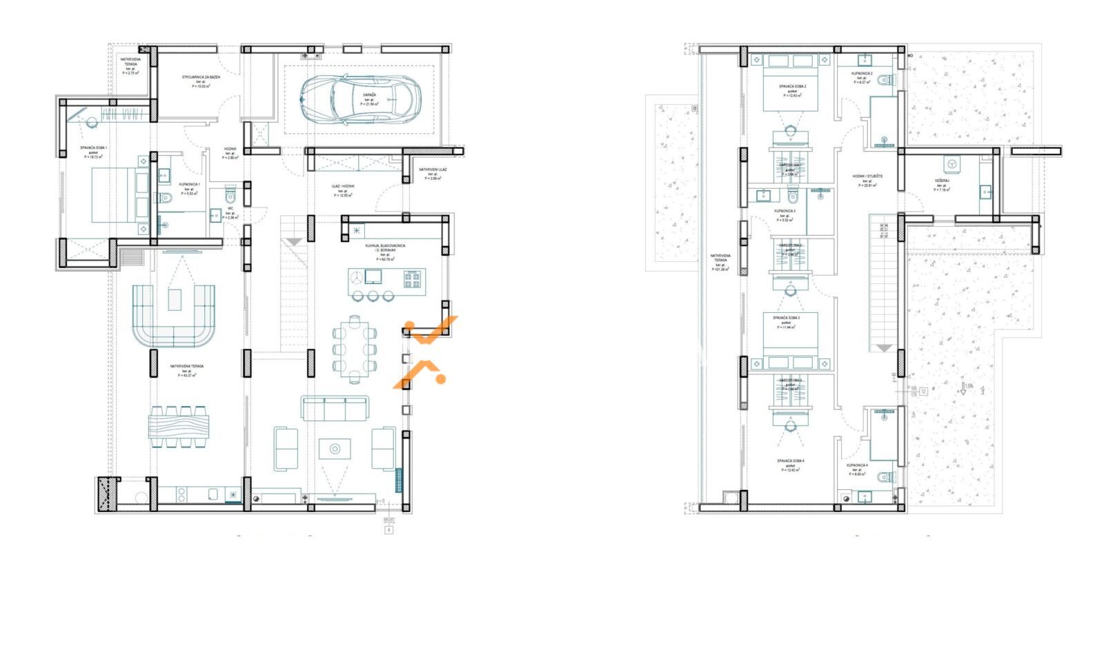
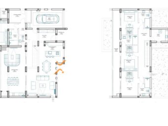
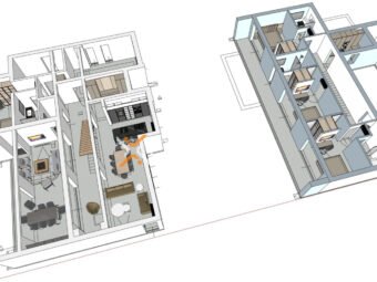
Prizemlje uključuje natkriveni ulaz, prostrano predvorje s unutarnjim stubištem, jednu spavaću sobu s vlastitom kupaonicom, gostinjski WC, veliku otvorenu kuhinju s blagovaonicom i dnevnim boravkom, tehničku sobu i dvostruku garažu. Također ima dvije terase idealne za opuštanje i objedovanje na otvorenom. Ukupna površina prizemlja iznosi 183,79 m².
Kat se sastoji od tri udobne spavaće sobe, svaka s vlastitom kupaonicom i garderobom. Uz to, kat uključuje praonicu rublja, središnji hodnik sa stubištem i veliku natkrivenu terasu, idealnu za uživanje na otvorenom. Ukupna površina kata je 115,41 m².
Na vanjskom dijelu nalazi se prostrana nenatkrivena terasa s elegantnim preljevnim bazenom. Površina terase iznosi 79,50 m², dok bazen ima površinu od 29,60 m².
Ukupna bruto površina Ville Cadenza iznosi 408,30 m².
Detaljan raspored prostorija i površine možete pronaći ovdje.
Za opremanje ovih iznimno luksuznih nekretnina koriste se isključivo visokokvalitetni materijali, proizvodi i uređaji.
Detaljne informacije o opremi možete pronaći na sljedećem linku.
Završetak kompleksa Golden Sunset Villas planiran je do proljeća 2026. godine. Sve vile kompleksa imaju energetski certifikat A+ razreda.
Privlaka – Mediteranski dragulj između Nina i Zadra
Privlaka je slikovito dalmatinsko mjesto smješteno na prostranom poluotoku između kraljevskog grada Nina i otoka Vira, samo 20 minuta vožnje od Zadra. Poznata je po dugim pješčanim plažama, kristalno čistom moru i plitkim obalama, što je čini idealnom za obitelji s djecom.
Atrakcije i aktivnosti u Privlaci:
Klima: Privlaka uživa u tipičnoj mediteranskoj klimi s dugim, toplim i suhim ljetima te blagim zimama. Prosječna ljetna temperatura iznosi oko 28 °C, dok temperatura mora tijekom sezone doseže ugodnih 24–26 °C. S više od 2.500 sunčanih sati godišnje, Privlaka je gotovo tijekom cijele godine savršeno odredište za odmor.
U sljedećoj tablici možete vidjeti okvirne zračne udaljenosti lokacije nekretnine prema relevantnim sadržajima i drugim gradovima:
| Lokacija | Udaljenost (km) |
|---|---|
| Restorani | 0,7 |
| Supermarket Plodine | 0,4 |
| Caffe bar (Beach Bar) | 0,35 |
| Turistička agencija | 1,6 |
| Općina Privlaka | 1,6 |
| Otok Vir | 1,1 |
| Grad Zadar | 16,0 |
| Hey Park trgovački centar | 16,0 |
| City Galleria trgovački centar | 19,2 |
| Supernova Zadar trgovački centar | 20,7 |
| Grad Nin | 4,5 |
| Luka Gaženica | 22,0 |
| Opća bolnica Zadar | 20,0 |
| Autocesta A1 (ulaz Zadar 1) | 26,1 |
| Zračna luka Zadar | 26,2 |
| Zračna luka Split | 125,0 |
| Nacionalni park Paklenica | 26,1 |
| Nacionalni park Kornati (približno) | 45,0 |
| Park prirode Vransko jezero | 48,0 |
| Zagreb (centar grada) | 183,0 |
| Ljubljana (centar grada) | 263,8 |
| Beč (centar grada) | 438,5 |
| München (centar grada) | 529,4 |
| Prag (centar grada) | 673,6 |
| Berlin (centar grada) | 901,2 |
Više informacija o lokaciji možete pronaći na sljedećem linku.
Za dodatne informacije o svemu što Privlaka nudi, posjetite stranicu Turističke zajednice Privlaka.
Ukoliko ste ovu nekretninu vidjeli negdje drugdje po nižoj cijeni, ista cijena vrijedi i kod nas!
Link na često postavljena pitanja
