Ukoliko ste ovu nekretninu vidjeli negdje drugdje po nižoj cijeni, ista cijena vrijedi i kod nas!
Link na često postavljena pitanja
Razgledavanje putem VIDEO POZIVA
NAZOVITE NAS 023 300 000

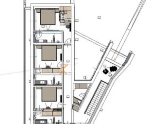
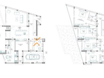
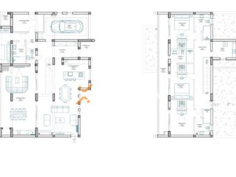
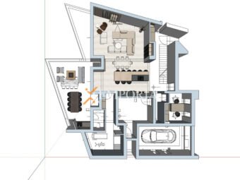
Dobrodošli u ekskluzivnu kolekciju luksuznih vila, savršeno smještenih u prvom redu do mora u Privlaci, u blizini Zadra. Smještene izravno na netaknutoj pješčanoj plaži, ove vrhunske rezidencije nude zadivljujuće poglede, neusporedivu privatnost i jedinstven mediteranski način života. Izgrađene po najvišim standardima s vrhunskim materijalima i najmodernijom opremom, svaka vila odiše elegancijom, udobnošću i sofisticiranošću. Iskusite vrhunski život uz more.
GOLDEN SUNSET VILLAS– Gdje se svaki zalazak sunca pretvara u umjetnost4 ekskluzivne vile uz more na prodaju: AURELIA, BRISONE, CADENZA i DALMARA |

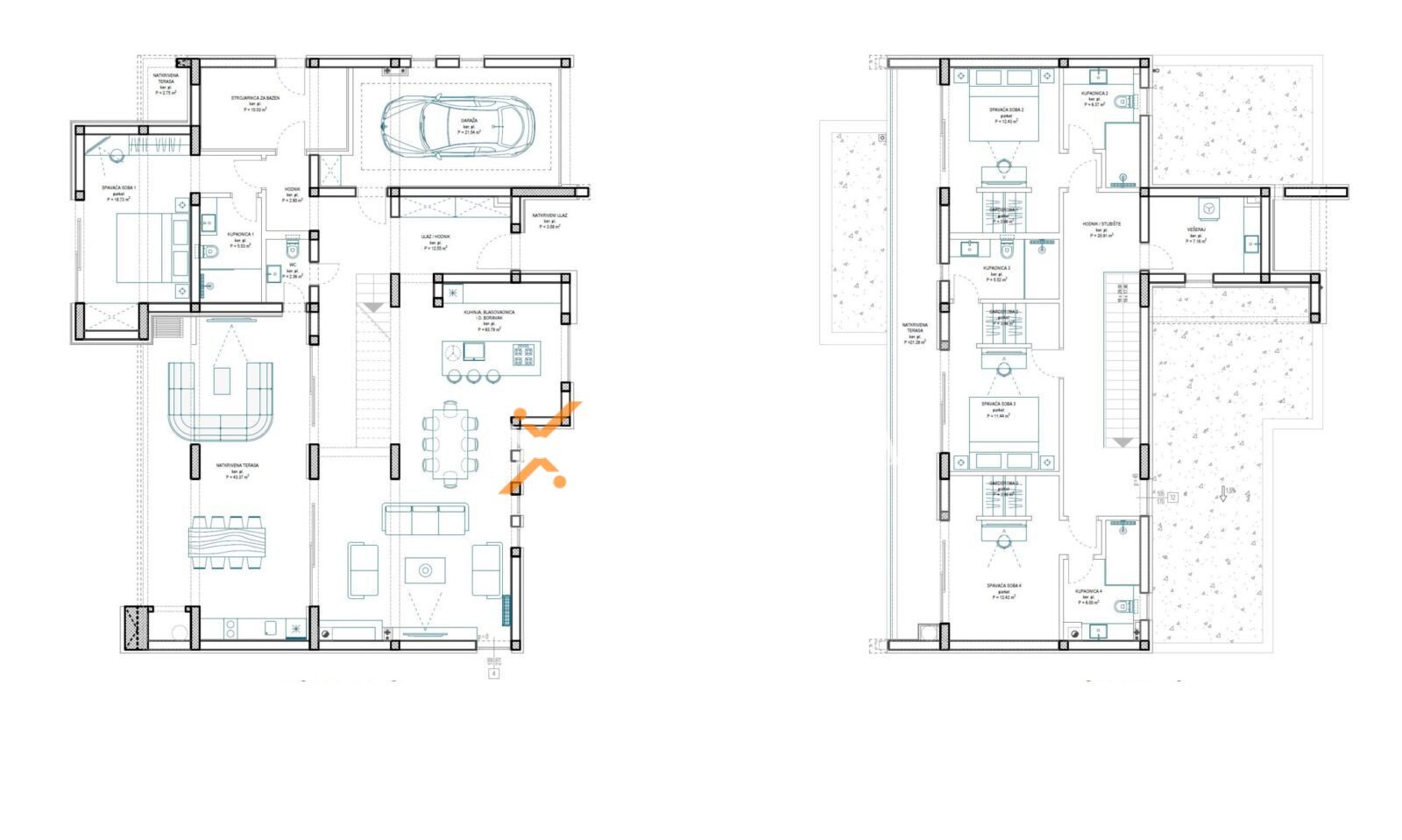
✅ Prvi red do mora, uz pješčanu plažu
✅ Izravan pristup moru
✅ Grijani infinity bazen
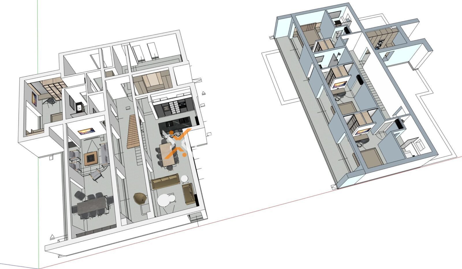
✅ Kuhinja (Dan Küchen) s uređajima (Miele i Liebherr)
✅ Vrhunski kućanski aparati (Miele i Liebherr)
✅ Namještaj po mjeri
✅ Mogućnost potpune opreme
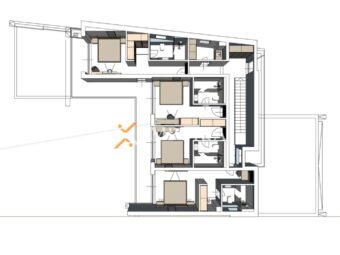
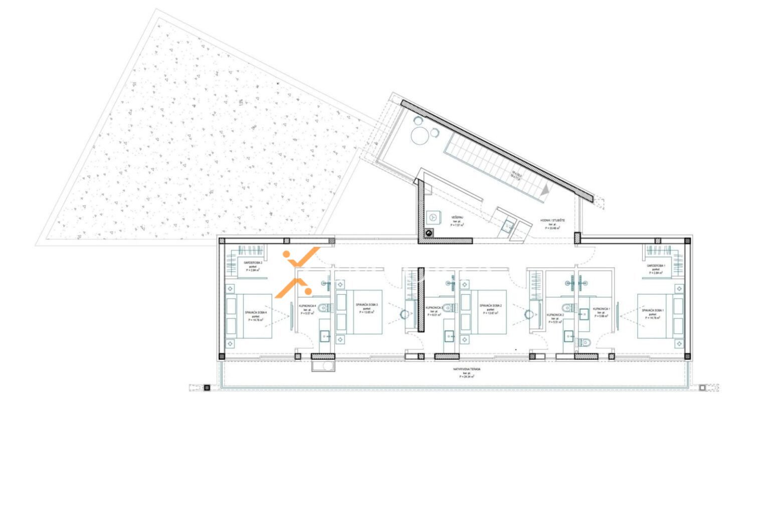
✅ 4 spavaće sobe
✅ 4 kupaonice + gostinjski WC
✅ Garaža




Pri opremanju ovih iznimno luksuznih nekretnina koriste se samo najkvalitetniji materijali, proizvodi i uređaji.
Detaljne informacije o opremi dostupne su na sljedećem linku.
Dovršetak kompleksa Golden Sunset Villas planiran je do proljeća 2026. godine. Sve vile kompleksa imaju energetski certifikat A+ razreda.
Privlaka – Mediteranski dragulj između Nina i Zadra
Privlaka je slikovito dalmatinsko mjesto smješteno na prostranom poluotoku između kraljevskog grada Nina i otoka Vira, udaljeno samo 20 minuta vožnje od Zadra. Poznata je po dugim pješčanim plažama, kristalno čistom moru i plitkoj obali, što je čini idealnom za obitelji s djecom.
Atrakcije i aktivnosti u Privlaci:
Klima: Privlaka ima tipičnu mediteransku klimu s dugim, vrućim i suhim ljetima te blagim zimama. Prosječna ljetna temperatura je oko 28 °C, a temperatura mora tijekom sezone doseže ugodnih 24–26 °C. S više od 2.500 sunčanih sati godišnje, Privlaka je idealno odredište gotovo tijekom cijele godine.
U sljedećoj tablici možete vidjeti okvirne zračne udaljenosti lokacije nekretnine prema relevantnim sadržajima i drugim gradovima:
| Lokacija | Udaljenost (km) |
|---|---|
| Restorani | 0,7 |
| Hipermarket Plodine | 0,4 |
| Caffe (Beach Bar) | 0,35 |
| Turistička agencija | 1,6 |
| Općina Privlaka | 1,6 |
| Otok Vir | 1,1 |
| Grad Zadar | 16,0 |
| Hey Park Shopping Center | 16,0 |
| City Galleria | 19,2 |
| Supernova Zadar | 20,7 |
| Grad Nin | 4,5 |
| Luka Gaženica | 22,0 |
| Bolnica Zadar | 20,0 |
| Autocesta A1 (ulaz Zadar 1) | 26,1 |
| Zračne luka Zadar | 26,2 |
| Zračna luka Split | 125,0 |
| Nacionalni park Paklenica | 26,1 |
| Nacionalni park Kornati (približno) | 45,0 |
| Park prirode Vransko jezero | 48,0 |
| Zagreb (centar) | 183,0 |
| Ljubljana (centar) | 263,8 |
| Beč (centar) | 438,5 |
| München (centar) | 529,4 |
| Prag (centar) | 673,6 |
| Berlin (centar) | 901,2 |
Više informacija o lokaciji možete pronaći na sljedećem linku.
Za dodatne informacije o svemu što Privlaka nudi, posjetite stranicu Turističke zajednice Privlaka.
Ukoliko ste ovu nekretninu vidjeli negdje drugdje po nižoj cijeni, ista cijena vrijedi i kod nas!
Link na često postavljena pitanja
