Ukoliko ste ovu nekretninu vidjeli negdje drugdje po nižoj cijeni, ista cijena vrijedi i kod nas!
Link na često postavljena pitanja
Razgledavanje putem VIDEO POZIVA
NAZOVITE NAS 023 300 000

Villa Aurelia je prva vila u kompleksu Golden Sunset Villas, smještenog u prvom redu do mora uz obalu Privlake blizu Zadra. Ova luksuzna vila pruža vam sve što trebate ako želite posjedovati vrhunsku nekretninu tik uz more. Svaki dio ove prostrane vile nudi zadivljujuće poglede na more. Iz dvorišta možete zakoračiti ravno na predivnu pješčanu plažu ispred vile.
Svaka vila u kompleksu dizajnirana je i opremljena prema najvišim standardima za najam s 5 zvjezdica, omogućujući vlasnicima maksimiziranje prihoda od iznajmljivanja.
Sa svojom modernom arhitekturom i vrhunskom gradnjom, Villa Aurelia predstavlja iznimnu priliku za vrhunski životni stil.
Vila se nalazi na parceli od 877 m² i uključuje pažljivo osmišljen i udoban interijer, dvostruku garažu, veliku terasu i infinity bazen, čineći ukupnu površinu od 529,48 m².

Golden Sunset Villas
AURELIA, BRISONE, CADENZA i DALMARA
– Gdje se svaki zalazak sunca pretvara u umjetnost
✅ Prvi red do mora, uz pješčanu plažu
✅ Izravan pristup moru
✅ Grijani infinity bazen
✅ Kuhinja (Dan Küchen) s uređajima (Miele i Bosch)
✅ Vrhunski kućanski aparati (Miele i Bosch)
✅ Ugradbeni namještaj po mjeri
✅ Mogućnost potpune opreme
✅ 4 spavaće sobe
✅ 4 kupaonice + gostinjski WC
✅ Garaža
Oglašena cijena uključuje ugradbeni namještaj, kuhinju, krevete s uzglavljima i zidne obloge.
3D vizualizacije jasno prikazuju sve ove elemente uključene u cijenu nekretnine.


Prizemlje uključuje prostranu kuhinju otvorenog tipa, blagovaonicu i dnevni boravak, kućni ured, gostinjski WC, teretanu, spremište i tehničke prostorije, te veliku natkrivenu terasu. Također ima dvostruku garažu i reprezentativan ulaz s unutarnjim stubištem. Ukupna površina prizemlja iznosi 265,04 m².
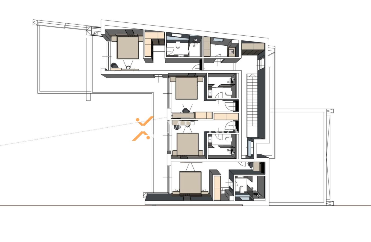
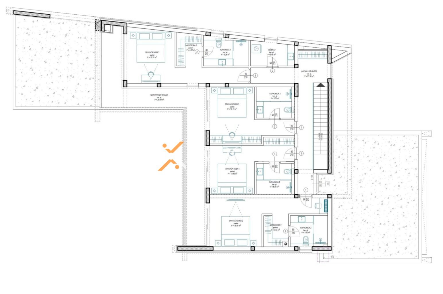
Kat se sastoji od četiri udobne spavaće sobe, svaka sa svojom kupaonicom. Dvije od soba imaju vlastite garderobe. Kat također uključuje vešeraj, centralni hodnik sa stepeništem i prostranu natkrivenu terasu. Ukupna površina kata iznosi 156,79 m².
Na otvorenom prostoru nalazi se nenatkrivena terasa i elegantan infinity bazen. Površina bazena iznosi 43,25 m².
Ukupna bruto površina Ville Aurelia iznosi 529,48 m².
Detaljan raspored prostorija i površine možete pronaći ovdje.
Pri opremanju ovih izuzetno luksuznih nekretnina koriste se samo najkvalitetniji materijali, proizvodi i uređaji.
Detaljne informacije o opremi dostupne su na sljedećem linku.
Dovršetak kompleksa Golden Sunset Villas planiran je do proljeća 2026. godine. Sve vile kompleksa imaju energetski certifikat A+ razreda.
Privlaka – Mediteranski dragulj između Nina i Zadra
Privlaka je slikovito dalmatinsko mjesto smješteno na prostranom poluotoku između kraljevskog grada Nina i otoka Vira, samo 20 minuta vožnje od Zadra. Poznata je po dugim pješčanim plažama, kristalno čistom moru i plitkoj obali, što ju čini idealnom za obitelji s djecom.
Atrakcije i aktivnosti u Privlaci:
Klima: Privlaka ima tipičnu mediteransku klimu s dugim, toplim i suhim ljetima i blagim zimama. Prosječna ljetna temperatura iznosi oko 28°C, dok se temperatura mora tijekom sezone kreće između 24–26°C. S više od 2.500 sunčanih sati godišnje, Privlaka je idealno odredište tijekom cijele godine.
U sljedećoj tablici možete vidjeti okvirne zračne udaljenosti lokacije nekretnine prema relevantnim sadržajima i drugim gradovima:
| Lokacija | Udaljenost (km) |
|---|---|
| Restorani | 0,7 |
| Hipermarket Plodine | 0,4 |
| Caffe (Beach Bar) | 0,35 |
| Turistička agencija | 1,6 |
| Općina Privlaka | 1,6 |
| Otok Vir | 1,1 |
| Grad Zadar | 16,0 |
| Hey Park Shopping Center | 16,0 |
| City Galleria | 19,2 |
| Supernova Zadar | 20,7 |
| Grad Nin | 4,5 |
| Luka Gaženica | 22,0 |
| Opća bolnica Zadar | 20,0 |
| Autocesta A1 (ulaz Zadar 1) | 26,1 |
| Zračna luka Zadar | 26,2 |
| Zračna luka Split | 125,0 |
| Nacionalni park Paklenica | 26,1 |
| Nacionalni park Kornati (približno) | 45,0 |
| Park prirode Vransko jezero | 48,0 |
| Zagreb (centar) | 183,0 |
| Ljubljana (centar) | 263,8 |
| Beč (centar) | 438,5 |
| München (centar) | 529,4 |
| Prag (centar) | 673,6 |
| Berlin (centar) | 901,2 |
Više informacija o lokaciji možete pronaći na sljedećem linku.
Za dodatne informacije o svemu što Privlaka nudi, posjetite stranicu Turističke zajednice Privlaka.
Ukoliko ste ovu nekretninu vidjeli negdje drugdje po nižoj cijeni, ista cijena vrijedi i kod nas!
Link na često postavljena pitanja
