Ukoliko ste ovu nekretninu vidjeli negdje drugdje po nižoj cijeni, ista cijena vrijedi i kod nas!
Link na često postavljena pitanja
Ne prikazuje se točna adresa nekretnine
Razgledavanje putem VIDEO POZIVA
NAZOVITE NAS 023 300 000

Na prodaju je luksuzni penthouse apartman u novogradnji u Sukošanu, smješten svega 280 m od mora i 900 m od centra mjesta. Apartman se nalazi na 2. katu moderne zgrade s liftom te ima odličan pogled na more, što ovu nekretninu čini iznimno atraktivnom za stanovanje i investiciju.
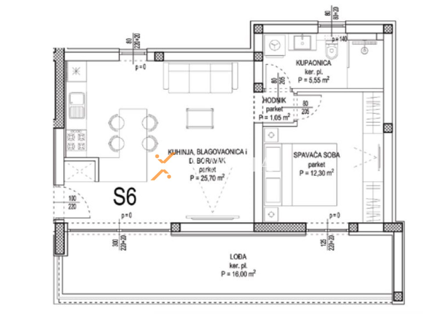
Raspored prostorija obuhvaća hodnik, spavaću sobu, kupaonicu, kuhinju s blagovaonicom i dnevnim boravkom te lođu neto površine 56,60 m2. Iz stubišta se pristupa prostranoj krovnoj terasi površine 65,10 m2, od čega je 23,57 m2 natkriveno. Neto korisna površina opisanih prostorija iznosi 78,76 m2. Stanu pripada spremište od 8,95 m2 u podrumskom dijelu zgrade te jedno garažno parkirno mjesto. Ukupna neto površina s pripacima iznosi 91,92 m2.
Zgrada je izgrađena 2026. godine te posjeduje energetski certifikat A, što potvrđuje visoku kvalitetu gradnje i energetsku učinkovitost.
Kupac ne plaća porez na promet nekretnina.
Apartman je opremljen podnim električnim grijanjem u cijelom prostoru, dok dvije crne dizajnerske Mitsubishi klima jedinice osiguravaju ugodnu temperaturu tijekom cijele godine. Kuhinja s Bosch aparatima uključena je u cijenu, kao i stol s četiri sjedalice te vanjski stol za kavu sa stolicama.
Gradnja je izvedena ciglenim termo blokom uz fasadu s 10 cm stiropora. PVC stolarija s troslojnim staklom, električnim roletama i komarnicima osigurava visoku razinu toplinske i zvučne izolacije. Ulazna vrata su protuprovalna i protupožarna, dok ravni betonski krov naglašava moderan arhitektonski izričaj. Podovi su obloženi parketom u svim prostorijama osim kupaonice gdje su postavljene pločice. Dodatnu kvalitetu potvrđuju Hansgrohe slavine, perilica rublja te kazetna tenda na razvlačenje.
Posebna vrijednost ove nekretnine nalazi se na krovnoj terasi koja je potpuno opremljena za luksuzan boravak na otvorenom. Terasa uključuje ljetnu kuhinju s plinskim roštiljem, indukcijskom pločom, sudoperom i kuhinjskim otokom s vinotekom. Nadalje, na terasi su postavljeni TV, stol za objed s osam stolica, dvije ležaljke te priprema za jacuzzi. Natkriveni dio terase opremljen je ventilatorom i rasvjetom, čime se osigurava maksimalna udobnost tijekom dana i večernjih sati.
Sukošan je šarmantno dalmatinsko mjesto smješteno u prostranom zaljevu Zlatna luka, svega 7 km od Zadra. Sa svojih približno 3.000 stanovnika i pripadajućim mjestima Debeljak, Glavica i Gorica, nudi miran mediteranski ambijent uz izvrsnu prometnu povezanost. Središnja atrakcija mjesta je D-Marin marina Dalmacija – najveća marina na Jadranu – koja Sukošan čini pravim rajem za nautičare i ljubitelje mora.
Posebnu privlačnost daju brojne plaže poput popularnog Dječjeg raja, mirnije plaže Podvare ili šljunčane Makarske, a tu su i skrivene uvale koje čekaju da ih otkrijete. Uživanje u kupanju, jedrenju i šetnjama uz more upotpunjuje bogat društveni i kulturni život. Tijekom ljeta održavaju se ribarske feštice, koncerti, folklorne večeri te blagdan sv. Kasijana s vatrometom i procesijama. Ljubitelje sporta privlače plivački maraton, turniri na male branke i poznata regata “Ples sa jedrima”.
Zahvaljujući spoju netaknute prirode, vrhunske nautičke infrastrukture i bogatog programa događanja, Sukošan je jedno od najpoželjnijih mjesta za kupnju nekretnine na Jadranu – bilo da tražite miran dom uz more ili atraktivnu investiciju s visokim potencijalom za turistički najam.
Sukošan se ističe kao poželjna lokacija za kupnju nekretnina uz more.
Pogledajte ponudu nekretnina na prodaju u Zadru i okolici.
U istoj zgradi na prodaju imamo i apartmane: A1586, A1587, A1588, A1589 i A1590.
Ukoliko ste ovu nekretninu vidjeli negdje drugdje po nižoj cijeni, ista cijena vrijedi i kod nas!
Link na često postavljena pitanja
