Ukoliko ste ovu nekretninu vidjeli negdje drugdje po nižoj cijeni, ista cijena vrijedi i kod nas!
Link na često postavljena pitanja
Ne prikazuje se točna adresa nekretnine
Razgledavanje putem VIDEO POZIVA
NAZOVITE NAS 023 300 000

Na prodaju je luksuzni apartman u novogradnji u Sukošanu, smješten svega 280 m od mora i 900 m od centra mjesta. Apartman se nalazi u prizemlju moderne zgrade s liftom, što dodatno povećava udobnost i dugoročnu vrijednost nekretnine.
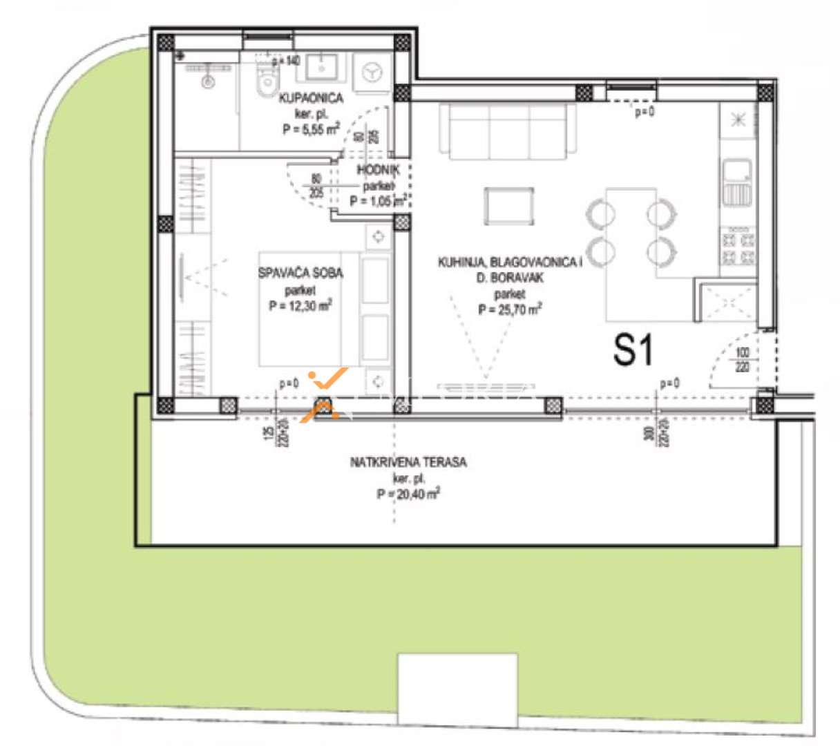
Raspored prostorija obuhvaća hodnik, spavaću sobu, kupaonicu, kuhinju s blagovaonicom i dnevnim boravkom otvorenog koncepta te natkrivenu terasu. Neto korisna površina unutarnjeg prostora iznosi 54,80 m2. Nadalje, stanu pripada privatni vrt površine 41,90 m2, spremište od 6,15 m2 u podrumu te jedno garažno parkirno mjesto. Ukupna neto površina s pripacima iznosi 70,69 m2.
Ova novogradnja iz 2026. godine predstavlja izvrsnu priliku za miran život uz more, ali i sigurnu investiciju u turistički najam.
Kupac ne plaća porez na promet nekretnina.
Apartman se ističe vrhunskom opremom i pažljivo biranim materijalima. U cijelom stanu postavljeno je podno električno grijanje, dok dvije Mitsubishi crne dizajnerske klima uređaja osiguravaju ugodnu temperaturu tijekom cijele godine. Kuhinja s Bosch aparatima uključena je u cijenu, kao i stol s četiri sjedalice te vanjski stol i stolice za šest osoba.
Gradnja je izvedena ciglenim termo blokom uz fasadu sa 10 cm stiropora, što doprinosi energetskoj učinkovitosti A razreda. PVC stolarija s troslojnim staklom, električnim roletama i komarnicima pruža dodatnu udobnost. Ulazna vrata su protuprovalna i protupožarna, dok su sva sobna vrata izrađena do visine stropa od 270 cm, čime prostor djeluje još prostranije.
Podovi su obloženi parketom u svim prostorijama osim kupaonice gdje su postavljene pločice. Na terasi je postavljen kamen te kazetna tenda na razvlačenje, što omogućuje ugodan boravak na otvorenom. Dodatnu kvalitetu potvrđuju Hansgrohe slavine, perilica rublja te slavina u vrtu. Ravni betonski krov dodatno naglašava suvremeni arhitektonski izričaj ove atraktivne nekretnine.
Sukošan je šarmantno dalmatinsko mjesto smješteno u prostranom zaljevu Zlatna luka, svega 7 km od Zadra. Sa svojih približno 3.000 stanovnika i pripadajućim mjestima Debeljak, Glavica i Gorica, nudi miran mediteranski ambijent uz izvrsnu prometnu povezanost. Središnja atrakcija mjesta je D-Marin marina Dalmacija – najveća marina na Jadranu – koja Sukošan čini pravim rajem za nautičare i ljubitelje mora.
Posebnu privlačnost daju brojne plaže poput popularnog Dječjeg raja, mirnije plaže Podvare ili šljunčane Makarske, a tu su i skrivene uvale koje čekaju da ih otkrijete. Uživanje u kupanju, jedrenju i šetnjama uz more upotpunjuje bogat društveni i kulturni život. Tijekom ljeta održavaju se ribarske feštice, koncerti, folklorne večeri te blagdan sv. Kasijana s vatrometom i procesijama. Ljubitelje sporta privlače plivački maraton, turniri na male branke i poznata regata “Ples sa jedrima”.
Zahvaljujući spoju netaknute prirode, vrhunske nautičke infrastrukture i bogatog programa događanja, Sukošan je jedno od najpoželjnijih mjesta za kupnju nekretnine na Jadranu – bilo da tražite miran dom uz more ili atraktivnu investiciju s visokim potencijalom za turistički najam.
Sukošan se ističe kao poželjna lokacija za kupnju nekretnina uz more.
Pogledajte ponudu nekretnina na prodaju u Zadru i okolici.
U istoj zgradi na prodaju imamo i apartmane: A1587, A1588, A1589, A1590 i A1591.
Ukoliko ste ovu nekretninu vidjeli negdje drugdje po nižoj cijeni, ista cijena vrijedi i kod nas!
Link na često postavljena pitanja
