Ukoliko ste ovu nekretninu vidjeli negdje drugdje po nižoj cijeni, ista cijena vrijedi i kod nas!
Link na često postavljena pitanja
Ne prikazuje se točna adresa nekretnine
Razgledavanje putem VIDEO POZIVA
NAZOVITE NAS 023 300 000

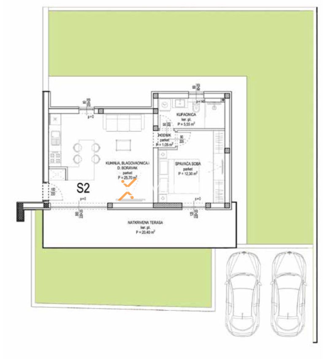
Na prodaju je luksuzni apartman u novogradnji u Sukošanu, smješten svega 280 m od mora i 900 m od centra mjesta. Apartman se nalazi u prizemlju moderne zgrade s liftom, što dodatno povećava komfor stanovanja i dugoročnu vrijednost nekretnine.
Raspored prostorija čine hodnik, spavaća soba, kupaonica, kuhinja s blagovaonicom i dnevnim boravkom otvorenog koncepta te natkrivena i nenatkrivena terasa. Neto korisna površina unutarnjeg prostora iznosi 58,60 m2. Nadalje, stanu pripada prostrani vrt površine 82 m2, spremište od 6,15 m2 u podrumskom dijelu zgrade te dva vanjska parkirna mjesta. Ukupna neto površina s pripacima iznosi 75,38 m2.
Zgrada je dovršena 2026. godine te posjeduje energetski certifikat A, što potvrđuje visoku kvalitetu gradnje i energetsku učinkovitost.
Kupac ne plaća porez na promet nekretnina, što ovu nekretninu čini dodatno atraktivnom investicijom.
Apartman je opremljen podnim električnim grijanjem u cijelom prostoru, dok dvije crne dizajnerske Mitsubishi klima jedinice osiguravaju ugodnu temperaturu tijekom cijele godine. Kuhinja s Bosch aparatima uključena je u cijenu, kao i stol s četiri sjedalice te dva vanjska stola sa stolicama za šest osoba.
Gradnja je izvedena ciglenim termo blokom uz fasadu s 10 cm stiropora. PVC stolarija s troslojnim staklom, električnim roletama i komarnicima pruža dodatnu toplinsku i zvučnu izolaciju. Ulazna vrata su protuprovalna i protupožarna, dok ravni betonski krov dodatno naglašava suvremeni arhitektonski stil.
Podovi su obloženi parketom u svim prostorijama osim kupaonice gdje su postavljene pločice. Na terasi je postavljen kamen, a dodatnu udobnost pruža kazetna tenda na razvlačenje. U stanu se nalazi perilica rublja, ugrađene su Hansgrohe slavine te je u vrtu izvedena vanjska slavina za dodatnu praktičnost.
Sukošan je šarmantno dalmatinsko mjesto smješteno u prostranom zaljevu Zlatna luka, svega 7 km od Zadra. Sa svojih približno 3.000 stanovnika i pripadajućim mjestima Debeljak, Glavica i Gorica, nudi miran mediteranski ambijent uz izvrsnu prometnu povezanost. Središnja atrakcija mjesta je D-Marin marina Dalmacija – najveća marina na Jadranu – koja Sukošan čini pravim rajem za nautičare i ljubitelje mora.
Posebnu privlačnost daju brojne plaže poput popularnog Dječjeg raja, mirnije plaže Podvare ili šljunčane Makarske, a tu su i skrivene uvale koje čekaju da ih otkrijete. Uživanje u kupanju, jedrenju i šetnjama uz more upotpunjuje bogat društveni i kulturni život. Tijekom ljeta održavaju se ribarske feštice, koncerti, folklorne večeri te blagdan sv. Kasijana s vatrometom i procesijama. Ljubitelje sporta privlače plivački maraton, turniri na male branke i poznata regata “Ples sa jedrima”.
Zahvaljujući spoju netaknute prirode, vrhunske nautičke infrastrukture i bogatog programa događanja, Sukošan je jedno od najpoželjnijih mjesta za kupnju nekretnine na Jadranu – bilo da tražite miran dom uz more ili atraktivnu investiciju s visokim potencijalom za turistički najam.
Sukošan se ističe kao poželjna lokacija za kupnju nekretnina uz more.
Pogledajte ponudu nekretnina na prodaju u Zadru i okolici.
U istoj zgradi na prodaju imamo i apartmane: A1586, A1588, A1589, A1590 i A1591.
Ukoliko ste ovu nekretninu vidjeli negdje drugdje po nižoj cijeni, ista cijena vrijedi i kod nas!
Link na često postavljena pitanja
