Ukoliko ste ovu nekretninu vidjeli negdje drugdje po nižoj cijeni, ista cijena vrijedi i kod nas!
Link na često postavljena pitanja
Ne prikazuje se točna adresa nekretnine
Razgledavanje putem VIDEO POZIVA
NAZOVITE NAS 023 300 000

Na prodaju je luksuzni penthouse apartman u novogradnji u Sukošanu, smješten svega 260 m od mora i 900 m od centra mjesta. Apartman se nalazi na 2. katu moderne zgrade te ima odličan pogled na more, što ovu nekretninu čini iznimno atraktivnom za stanovanje i ekskluzivnu investiciju uz obalu.
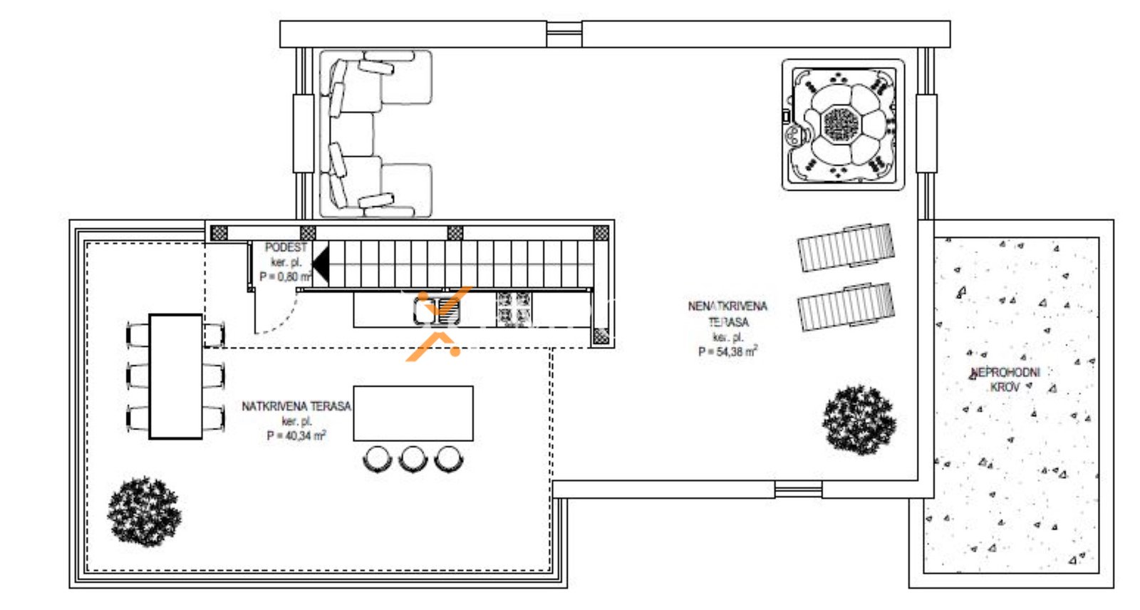
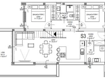
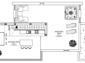
Raspored prostorija obuhvaća hodnik, dvije spavaće sobe, kupaonicu, zaseban wc, kuhinju s blagovaonicom i dnevnim boravkom te lođu neto površine 89,32 m2. Iz stubišta se pristupa impresivnoj krovnoj terasi površine 94,72 m2, od čega je 40,34 m2 natkriveno. Neto korisna površina opisanih prostorija iznosi 123,89 m2. Stanu pripadaju dva parkirna mjesta. Ukupna neto površina s pripacima iznosi 129,39 m2. Kupac ne plaća porez na promet nekretnina.
Zgrada je izgrađena 2026. godine te posjeduje energetski certifikat A, što potvrđuje visoku razinu energetske učinkovitosti i kvalitetu gradnje.
Kupac ne plaća porez na promet nekretnina.
Apartman je opremljen podnim električnim grijanjem u cijelom prostoru, dok tri crne dizajnerske Mitsubishi klima jedinice osiguravaju optimalnu temperaturu tijekom cijele godine. U cijenu su uključeni stolić za kavu s dvije sjedalice te blagovaonski stol sa stolicama za šest osoba.
Gradnja je izvedena ciglenim termo blokom uz fasadu sa 10 cm stiropora, čime se postiže izvrsna toplinska izolacija. PVC stolarija s troslojnim staklom, električnim roletama i komarnicima pruža dodatnu udobnost i energetsku učinkovitost. Ulazna vrata su protuprovalna i protupožarna, dok ravni betonski krov naglašava moderan arhitektonski stil. Podovi su obloženi parketom u svim prostorijama osim kupaonice gdje su postavljene pločice.
Dodatnu kvalitetu potvrđuju Hansgrohe slavine, perilica rublja te kazetna tenda na razvlačenje.
Posebna vrijednost ove nekretnine nalazi se na prostranoj krovnoj terasi koja je u potpunosti opremljena za luksuzan boravak na otvorenom. Terasa uključuje ljetnu kuhinju s plinskim roštiljem, indukcijskom pločom, sudoperom i kuhinjskim otokom s vinotekom. Nadalje, na terasi su postavljeni TV, stol za objed s osam stolica, dvije ležaljke te lounge zona s trosjedom, dvije lounge fotelje i stolićem. Predviđena je i priprema za jacuzzi. Natkriveni dio terase opremljen je ventilatorom i rasvjetom, čime se osigurava maksimalna udobnost tijekom dana i večernjih sati.
Sukošan je šarmantno dalmatinsko mjesto smješteno u prostranom zaljevu Zlatna luka, svega 7 km od Zadra. Sa svojih približno 3.000 stanovnika i pripadajućim mjestima Debeljak, Glavica i Gorica, nudi miran mediteranski ambijent uz izvrsnu prometnu povezanost. Središnja atrakcija mjesta je D-Marin marina Dalmacija – najveća marina na Jadranu – koja Sukošan čini pravim rajem za nautičare i ljubitelje mora.
Posebnu privlačnost daju brojne plaže poput popularnog Dječjeg raja, mirnije plaže Podvare ili šljunčane Makarske, a tu su i skrivene uvale koje čekaju da ih otkrijete. Uživanje u kupanju, jedrenju i šetnjama uz more upotpunjuje bogat društveni i kulturni život. Tijekom ljeta održavaju se ribarske feštice, koncerti, folklorne večeri te blagdan sv. Kasijana s vatrometom i procesijama. Ljubitelje sporta privlače plivački maraton, turniri na male branke i poznata regata “Ples sa jedrima”.
Zahvaljujući spoju netaknute prirode, vrhunske nautičke infrastrukture i bogatog programa događanja, Sukošan je jedno od najpoželjnijih mjesta za kupnju nekretnine na Jadranu – bilo da tražite miran dom uz more ili atraktivnu investiciju s visokim potencijalom za turistički najam.
Sukošan se ističe kao poželjna lokacija za kupnju nekretnina uz more.
Pogledajte ponudu nekretnina na prodaju u Zadru i okolici.
U istoj zgradi na prodaju imamo i apartman: A1584.
Ukoliko ste ovu nekretninu vidjeli negdje drugdje po nižoj cijeni, ista cijena vrijedi i kod nas!
Link na često postavljena pitanja
