Ukoliko ste ovu nekretninu vidjeli negdje drugdje po nižoj cijeni, ista cijena vrijedi i kod nas!
Link na često postavljena pitanja
Ne prikazuje se točna adresa nekretnine
Razgledavanje putem VIDEO POZIVA
NAZOVITE NAS 023 300 000

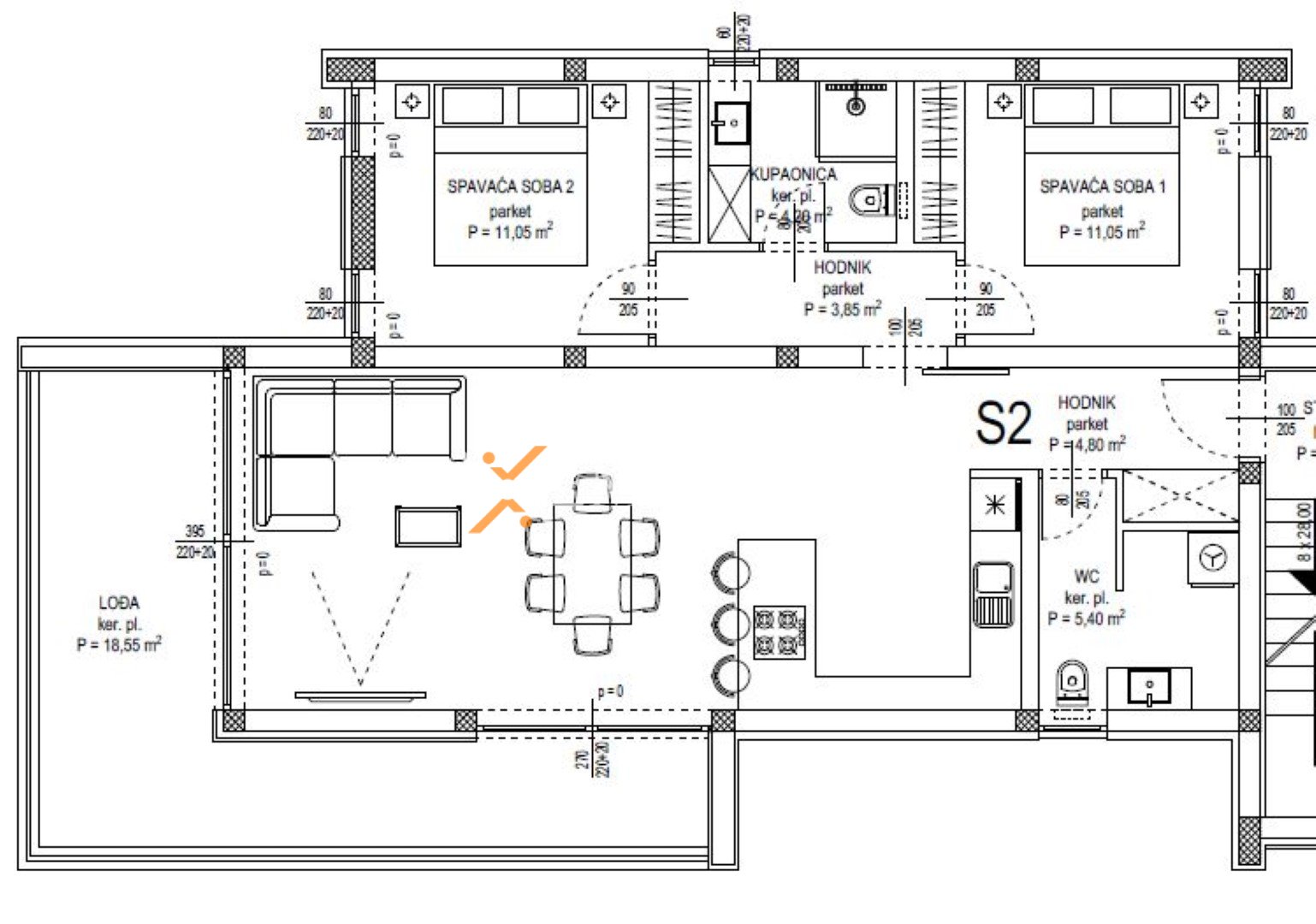
Na prodaju je luksuzni apartman u novogradnji u Sukošanu, smješten svega 260 m od mora i 900 m od centra mjesta. Apartman se nalazi na 1. katu moderne zgrade te ima djelomičan pogled na more, što dodatno povećava atraktivnost ove nekretnine.
Raspored prostorija čine hodnik, dvije spavaće sobe, kupaonica, zaseban wc, kuhinja s blagovaonicom i dnevnim boravkom otvorenog koncepta te lođa. Neto korisna površina unutarnjeg prostora iznosi 89,32 m2. Stanu pripada jedno parkirno mjesto. Ukupna neto površina s pripacima iznosi 92,07 m2.
Zgrada je izgrađena 2026. godine te posjeduje energetski certifikat A, što potvrđuje visoku kvalitetu gradnje i energetsku učinkovitost. Ova nekretnina predstavlja izvrsnu priliku za obiteljsko stanovanje ili sigurnu investiciju uz more.
Kupac ne plaća porez na promet nekretnina.
Apartman je opremljen podnim električnim grijanjem u cijelom prostoru, dok tri crne dizajnerske Mitsubishi klima jedinice osiguravaju ugodnu temperaturu tijekom cijele godine. U cijenu su uključeni stolić za kavu s dvije sjedalice te blagovaonski stol sa stolicama za šest osoba.
Gradnja je izvedena ciglenim termo blokom uz fasadu s 10 cm stiropora, čime se postiže visoka razina toplinske izolacije. PVC stolarija s troslojnim staklom, električnim roletama i komarnicima pruža dodatnu udobnost i energetsku učinkovitost. Ulazna vrata su protuprovalna i protupožarna, dok ravni betonski krov naglašava moderan arhitektonski stil.
Podovi su obloženi parketom u svim prostorijama osim kupaonice gdje su postavljene pločice. Na lođi je postavljena kazetna tenda na razvlačenje, a dodatnu kvalitetu potvrđuju Hansgrohe slavine te perilica rublja uključena u opremu stana.
Sukošan je šarmantno dalmatinsko mjesto smješteno u prostranom zaljevu Zlatna luka, svega 7 km od Zadra. Sa svojih približno 3.000 stanovnika i pripadajućim mjestima Debeljak, Glavica i Gorica, nudi miran mediteranski ambijent uz izvrsnu prometnu povezanost. Središnja atrakcija mjesta je D-Marin marina Dalmacija – najveća marina na Jadranu – koja Sukošan čini pravim rajem za nautičare i ljubitelje mora.
Posebnu privlačnost daju brojne plaže poput popularnog Dječjeg raja, mirnije plaže Podvare ili šljunčane Makarske, a tu su i skrivene uvale koje čekaju da ih otkrijete. Uživanje u kupanju, jedrenju i šetnjama uz more upotpunjuje bogat društveni i kulturni život. Tijekom ljeta održavaju se ribarske feštice, koncerti, folklorne večeri te blagdan sv. Kasijana s vatrometom i procesijama. Ljubitelje sporta privlače plivački maraton, turniri na male branke i poznata regata “Ples sa jedrima”.
Zahvaljujući spoju netaknute prirode, vrhunske nautičke infrastrukture i bogatog programa događanja, Sukošan je jedno od najpoželjnijih mjesta za kupnju nekretnine na Jadranu – bilo da tražite miran dom uz more ili atraktivnu investiciju s visokim potencijalom za turistički najam.
Sukošan se ističe kao poželjna lokacija za kupnju nekretnina uz more.
Pogledajte ponudu nekretnina na prodaju u Zadru i okolici.
U istoj zgradi na prodaju imamo i apartman: A1585.
Ukoliko ste ovu nekretninu vidjeli negdje drugdje po nižoj cijeni, ista cijena vrijedi i kod nas!
Link na često postavljena pitanja
