Ukoliko ste ovu nekretninu vidjeli negdje drugdje po nižoj cijeni, ista cijena vrijedi i kod nas!
Link na često postavljena pitanja
Ne prikazuje se točna adresa nekretnine
Razgledavanje putem VIDEO POZIVA
NAZOVITE NAS 023 300 000

Na prodaju je luksuzni apartman u novogradnji u Sukošanu, smješten svega 260 m od mora i 900 m od centra mjesta. Ova atraktivna nekretnina nalazi se u prizemlju moderne zgrade te predstavlja izvrsnu priliku za obiteljsko stanovanje ili sigurnu investiciju u turistički najam.
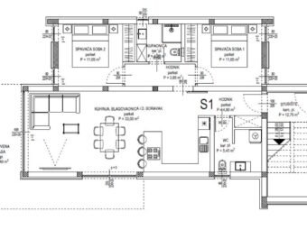
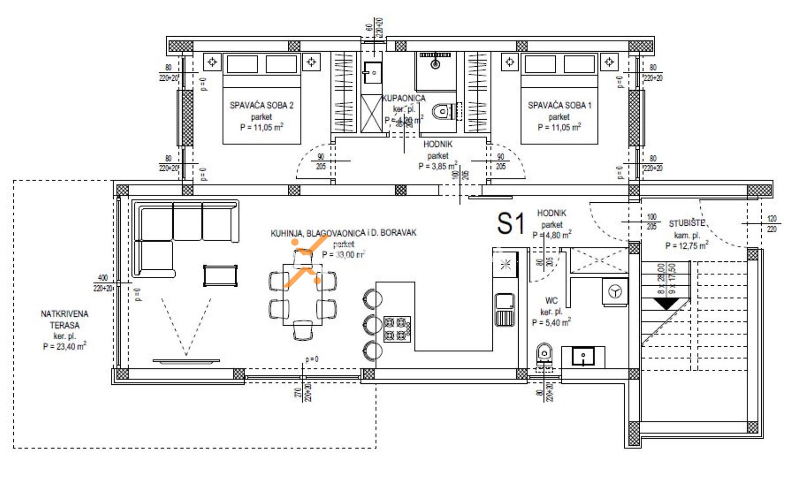
Raspored prostorija čine hodnik, dvije spavaće sobe, kupaonica, zaseban wc, kuhinja s blagovaonicom i dnevnim boravkom otvorenog koncepta te natkrivena terasa. Neto korisna površina unutarnjeg prostora iznosi 90,41 m2. Stanu pripada prostrani vrt površine 166,00 m2, koji pruža dodatni komfor i privatnost, kao i dva parkirna mjesta. Ukupna neto površina s pripacima iznosi 112,51 m2.
Zgrada je izgrađena 2026. godine te posjeduje energetski certifikat A, što potvrđuje visoku razinu energetske učinkovitosti i kvalitetu gradnje.
Kupac ne plaća porez na promet nekretnina.
Apartman je opremljen podnim električnim grijanjem u cijelom prostoru, dok tri crne dizajnerske Mitsubishi klima jedinice osiguravaju optimalnu temperaturu tijekom cijele godine. U cijenu su uključeni stolić za kavu s dvije sjedalice te blagovaonski stol sa stolicama za osam osoba.
Gradnja je izvedena ciglenim termo blokom uz fasadu sa 10 cm stiropora, čime se postiže izvrsna toplinska izolacija. PVC stolarija s troslojnim staklom, električnim roletama i komarnicima osigurava dodatnu udobnost i energetsku učinkovitost. Ulazna vrata su protuprovalna i protupožarna, dok ravni betonski krov naglašava moderan arhitektonski stil.
Podovi su obloženi parketom u svim prostorijama osim kupaonice gdje su postavljene pločice. Na terasi je postavljen kamen, a dodatnu praktičnost pružaju kazetna tenda na razvlačenje, perilica rublja, Hansgrohe slavine te vanjska slavina u vrtu.
Sukošan je šarmantno dalmatinsko mjesto smješteno u prostranom zaljevu Zlatna luka, svega 7 km od Zadra. Sa svojih približno 3.000 stanovnika i pripadajućim mjestima Debeljak, Glavica i Gorica, nudi miran mediteranski ambijent uz izvrsnu prometnu povezanost. Središnja atrakcija mjesta je D-Marin marina Dalmacija – najveća marina na Jadranu – koja Sukošan čini pravim rajem za nautičare i ljubitelje mora.
Posebnu privlačnost daju brojne plaže poput popularnog Dječjeg raja, mirnije plaže Podvare ili šljunčane Makarske, a tu su i skrivene uvale koje čekaju da ih otkrijete. Uživanje u kupanju, jedrenju i šetnjama uz more upotpunjuje bogat društveni i kulturni život. Tijekom ljeta održavaju se ribarske feštice, koncerti, folklorne večeri te blagdan sv. Kasijana s vatrometom i procesijama. Ljubitelje sporta privlače plivački maraton, turniri na male branke i poznata regata “Ples sa jedrima”.
Zahvaljujući spoju netaknute prirode, vrhunske nautičke infrastrukture i bogatog programa događanja, Sukošan je jedno od najpoželjnijih mjesta za kupnju nekretnine na Jadranu – bilo da tražite miran dom uz more ili atraktivnu investiciju s visokim potencijalom za turistički najam.
Sukošan se ističe kao poželjna lokacija za kupnju nekretnina uz more.
Ukoliko ste ovu nekretninu vidjeli negdje drugdje po nižoj cijeni, ista cijena vrijedi i kod nas!
Link na često postavljena pitanja
