Ukoliko ste ovu nekretninu vidjeli negdje drugdje po nižoj cijeni, ista cijena vrijedi i kod nas!
Link na često postavljena pitanja
Ne prikazuje se točna adresa nekretnine
Razgledavanje putem VIDEO POZIVA
NAZOVITE NAS 023 300 000

Apartman na 1. katu u Privlaci, novogradnja, pogled na more, ukupno 78,23 m2, udaljen svega 100 m od mora i 1,1 km od centra mjesta. Ova moderna nekretnina predstavlja izvrsnu priliku za investiciju, ali i za miran obiteljski život u blizini svih sadržaja.
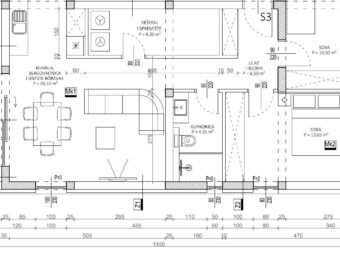
Stan se nalazi na prvom katu te obuhvaća hodnik, dvije spavaće sobe, kupaonicu, praonicu, kuhinju s blagovaonicom i dnevnim boravkom otvorenog koncepta te natkrivenu terasu. Neto korisna površina zatvorenih prostorija iznosi 73,03 m2. Dodatno, apartmanu pripadaju dva parkirna mjesta, stoga ukupna neto površina s pripacima iznosi 78,23 m2.
Zahvaljujući kvalitetnoj gradnji i suvremenom projektu, ova nekretnina pruža funkcionalan raspored i maksimalnu iskoristivost prostora. Posebno se ističe pogled na more, koji dodatno povećava atraktivnost apartmana i dugoročnu vrijednost ulaganja.
Godina izgradnje je 2026., a očekivani energetski certifikat je A, što potvrđuje visoku energetsku učinkovitost i niske troškove održavanja.
Stan ima podno električno grijanje u svim prostorijama, što pruža ravnomjernu toplinu tijekom cijele godine. Dodatno su ugrađene tri klima jedinice, u dnevnom boravku i spavaćim sobama. Objekt je građen od ciglenog termo bloka, dok fasada ima toplinsku izolaciju od stiropora debljine 10 cm.
PVC stolarija s troslojnim staklom osigurava odličnu toplinsku i zvučnu izolaciju. Na staklenim stijenama ugrađene su električne rolete, dok su na ostalim prozorima klasične rolete i komarnici. Ulazna vrata su protuprovalna i protupožarna, a krov je novi, ravni i betonski. Podne obloge čine kvalitetne pločice i laminat, što dodatno naglašava moderan karakter interijera.
Ova atraktivna nekretnina u Privlaci idealna je za odmor, turistički najam ili cjelogodišnje stanovanje, a zahvaljujući blizini mora i pogledu na more predstavlja rijetku priliku na tržištu.
Privlaka je malo ribarsko i turističko mjesto udaljeno samo 15 minuta vožnjom od grada Zadra, smještena na prostranom pješčanom poluotoku između kraljevskog grada Nina i otoka Vira. Čisto more i duge, plitke pješčane uvale stvorene su za opuštanje u potpunosti. Mjesto nudi sav potreban sadržaj za ugodan i kvalitetan život: trgovine, restorane, poštu, ambulantu. Ljubitelji sporta, rekreacije koji se žele okušati u jedrenju ili surfanju pronaći će svoj kutak raja u obližnjim naseljima. Sve što trebate za miran i opuštajući obiteljski odmor u mediteranskom stilu možete ovdje pronaći.
Otkrijte zašto je Privlaka atraktivna lokacija za kupnju nekretnina.
Pogledajte našu kompletnu ponudu nekretnina na prodaju.
U istoj zgradi na prodaju imamo i apartmane: A1576, A1577, A1579, A1580 i A1581.
Ukoliko ste ovu nekretninu vidjeli negdje drugdje po nižoj cijeni, ista cijena vrijedi i kod nas!
Link na često postavljena pitanja
