Ukoliko ste ovu nekretninu vidjeli negdje drugdje po nižoj cijeni, ista cijena vrijedi i kod nas!
Link na često postavljena pitanja
Ne prikazuje se točna adresa nekretnine
Razgledavanje putem VIDEO POZIVA
NAZOVITE NAS 023 300 000

Prodaje se apartman u novogradnji u Privlaci, smješten svega 100 m od mora te 1,1 km od centra mjesta. Nekretnina se nalazi na odličnoj lokaciji, a dodatno je izdvaja i pogled na more, što je čini izvrsnim izborom za odmor, cjelogodišnje stanovanje ili kao investiciju za turistički najam.
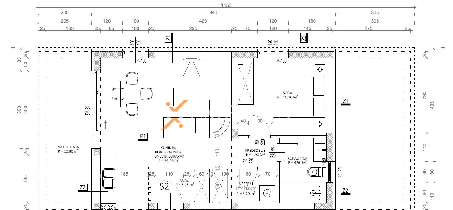
Apartman je smješten u prizemlju. Raspored prostorija čine hodnik, spavaća soba, kupaonica, praonica, kuhinja s blagovaonicom i dnevnim boravkom te natkrivena terasa. Neto korisna površina opisanih prostorija iznosi 54,43 m2. Dodatno, stanu pripada vrt površine 71 m2 te dva parkirna mjesta. Ukupna neto površina s pripacima iznosi 66,73 m2
U cijelom stanu izvedeno je podno električno grijanje, a ugrađene su i dvije klima jedinice, u dnevnom boravku i spavaćoj sobi. Gradnja je izvedena ciglenim termo blokom, dok fasada ima 10 cm stiropora, što doprinosi visokoj energetskoj učinkovitosti.
PVC stolarija ima troslojno ostakljenje. Na staklenim stijenama ugrađene su električne rolete, dok ostali prozori imaju rolete i komarnike. Podovi su obloženi pločicama i laminatom. Ulazna vrata su protuprovalna i protupožarna. Krov je novi, ravni i betonski.
Godina izgradnje je 2026., a očekivani energetski certifikat je A.
Privlaka je malo ribarsko i turističko mjesto udaljeno samo 15 minuta vožnjom od grada Zadra, smještena na prostranom pješčanom poluotoku između kraljevskog grada Nina i otoka Vira. Čisto more i duge, plitke pješčane uvale stvorene su za opuštanje u potpunosti. Mjesto nudi sav potreban sadržaj za ugodan i kvalitetan život: trgovine, restorane, poštu, ambulantu. Ljubitelji sporta, rekreacije koji se žele okušati u jedrenju ili surfanju pronaći će svoj kutak raja u obližnjim naseljima. Sve što trebate za miran i opuštajući obiteljski odmor u mediteranskom stilu možete ovdje pronaći.
Otkrijte zašto je Privlaka atraktivna lokacija za kupnju nekretnina.
Pogledajte našu kompletnu ponudu nekretnina na prodaju.
U istoj zgradi na prodaju imamo i apartmane: A1576, A1578, A1579, A1580 i A1581.
Ukoliko ste ovu nekretninu vidjeli negdje drugdje po nižoj cijeni, ista cijena vrijedi i kod nas!
Link na često postavljena pitanja
