Ukoliko ste ovu nekretninu vidjeli negdje drugdje po nižoj cijeni, ista cijena vrijedi i kod nas!
Link na često postavljena pitanja
Ne prikazuje se točna adresa nekretnine
Razgledavanje putem VIDEO POZIVA
NAZOVITE NAS 023 300 000

Prodaje se apartman u novogradnji u Privlaci, smješten svega 100 m od mora te 1,1 km od centra mjesta. Nekretnina se nalazi na atraktivnoj lokaciji i nudi pogled na more, što dodatno povećava njezinu vrijednost i investicijski potencijal.
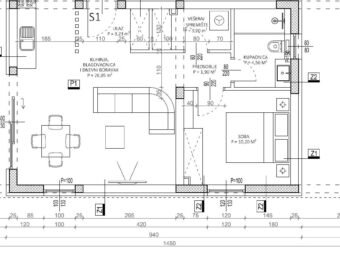
Apartman je smješten u prizemlju moderne zgrade, a raspored prostorija čine hodnik, spavaća soba, kupaonica, praonica, kuhinja s blagovaonicom i dnevnim boravkom te natkrivena terasa. Neto korisna površina opisanih prostorija iznosi 55,48 m2. Dodatno, stanu pripada vrt površine 65 m2 i dva parkirna mjesta. Ukupna neto površina s pripacima iznosi 67,18 m2.
Ova nekretnina predstavlja odličnu priliku za kupnju apartmana blizu mora, bilo za vlastiti odmor, cjelogodišnje stanovanje ili kao investiciju za turistički najam.
Apartman ima podno električno grijanje kroz cijeli stan, dok su za dodatnu udobnost ugrađene dvije klima jedinice, u dnevnom boravku i spavaćoj sobi. Gradnja je izvedena ciglenim termo blokom, a fasada ima 10 cm stiropora, što osigurava energetsku učinkovitost i visoku razinu toplinske izolacije.
PVC stolarija ima troslojno ostakljenje, na staklenim stijenama postavljene su električne rolete, dok ostali prozori imaju klasične rolete i komarnike. Podovi su obloženi pločicama i laminatom. Ulazna vrata su protuprovalna i protupožarna. Krov je novi, ravni i betonski.
Godina izgradnje je 2026., a očekivani energetski certifikat je A, što ovu novogradnju čini suvremenom i energetski učinkovitom nekretninom na traženoj lokaciji u Privlaci.
Privlaka je malo ribarsko i turističko mjesto udaljeno samo 15 minuta vožnjom od grada Zadra, smještena na prostranom pješčanom poluotoku između kraljevskog grada Nina i otoka Vira. Čisto more i duge, plitke pješčane uvale stvorene su za opuštanje u potpunosti. Mjesto nudi sav potreban sadržaj za ugodan i kvalitetan život: trgovine, restorane, poštu, ambulantu. Ljubitelji sporta, rekreacije koji se žele okušati u jedrenju ili surfanju pronaći će svoj kutak raja u obližnjim naseljima. Sve što trebate za miran i opuštajući obiteljski odmor u mediteranskom stilu možete ovdje pronaći.
Otkrijte zašto je Privlaka atraktivna lokacija za kupnju nekretnina.
Pogledajte našu kompletnu ponudu nekretnina na prodaju.
U istoj zgradi na prodaju imamo i apartmane: A1577, A1578, A1579, A1580 i A1581.
Ukoliko ste ovu nekretninu vidjeli negdje drugdje po nižoj cijeni, ista cijena vrijedi i kod nas!
Link na često postavljena pitanja
