Ukoliko ste ovu nekretninu vidjeli negdje drugdje po nižoj cijeni, ista cijena vrijedi i kod nas!
Link na često postavljena pitanja
Ne prikazuje se točna adresa nekretnine
Razgledavanje putem VIDEO POZIVA
NAZOVITE NAS 023 300 000

Prodaje se penthouse apartman u Privlaci, udaljen samo 150 m od mora. Radi se o modernoj novogradnji.
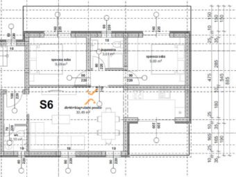
Apartman se nalazi na 2. katu zgrade. Raspored prostorija čine hodnik, kupaonica, dnevni boravak s kuhinjom i blagovaonicom, dvije spavaće sobe te natkrivena terasa (neto 60,21 m2). Iz stubišta se ide na krovnu terasu površine 67,06 m2. Neto korisna površina opisanih prostorija iznosi 76,98 m2.
Dodatno stanu pripadaju dva parkirna mjesta ispred zgrade.
Ukupna neto površina stana s pripacima iznosi 81,98 m2.
Udaljenost od centra Privlake iznosi 1,8 km.
Zgrada je u izgradnji, a dovršetak je planiran za ljeto 2025. godine.
Gradnja zgrade vrši se ciglenim termo blokom. Termoizolacija fasade je stiropor debljine 8 cm. Prozori su od PVC materijala s troslojnim staklom, roletama i komarnicima. Podne obloge su pločice i laminat. Podno električno grijanje u cijelom stanu. Osim toga, u dnevnom boravku i spavaćim sobama bit će postavljeni klima uređaji. Nadalje, ulazna vrata stana su protuprovalna i protupožarna.
Očekuje se energetski certifikat A.
Privlaka je malo ribarsko i turističko mjesto udaljeno samo 15 minuta vožnjom od grada Zadra, smještena na prostranom pješčanom poluotoku između kraljevskog grada Nina i otoka Vira. Čisto more i duge, plitke pješčane uvale stvorene su za opuštanje u potpunosti. Mjesto nudi sav potreban sadržaj za ugodan i kvalitetan život: trgovine, restorane, poštu, ambulantu. Ljubitelji sporta, rekreacije koji se žele okušati u jedrenju ili surfanju pronaći će svoj kutak raja u obližnjim naseljima. Sve što trebate za miran i opuštajući obiteljski odmor u mediteranskom stilu možete ovdje pronaći.
Više o mjestu pročitajte na linku Privlaka.
Zgrada se sastoji od ukupno 6 stanova. U ponudi su još uvijek: A1466, A1467, A1468, A1469.
Ukoliko ste ovu nekretninu vidjeli negdje drugdje po nižoj cijeni, ista cijena vrijedi i kod nas!
Link na često postavljena pitanja
