Ukoliko ste ovu nekretninu vidjeli negdje drugdje po nižoj cijeni, ista cijena vrijedi i kod nas!
Link na često postavljena pitanja
Ne prikazuje se točna adresa nekretnine
Razgledavanje putem VIDEO POZIVA
NAZOVITE NAS 023 300 000

Prodaje se apartman smješten u prizemlju stambene zgrade u Ražancu. Udaljenost ove nekretnine od mora iznosi svega 80 m. Iz apartmana se pruža jako lijep pogled na more. Zgrada je u izgradnji, a dovršetak je predviđen na jesen 2025. godine.
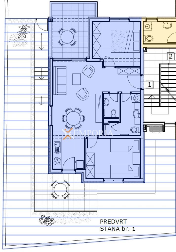
Raspored prostorija čine hodnik, 2 spavaće sobe, kupaonica, wc, kuhinja s blagovaonicom i dnevnim boravkom, lođa te dijelom natkrivena terasa. Neto korisna površina opisanih prostorija stana i terase iznosi 67,95 m2. Osim toga, stanu pripadaju suterenska garaža površine 24,67 i vrt od 85,78 m2.
Ukupna neto korisna površina apartmana sa svim pripacima iznosi 91,33 m2.
U zgradi se nalaze ukupno 4 stana. Udaljenost od centra mjesta iznosi svega 400 m.
Podne obloge su pločice i parket. Fasada ima termoizolaciju od vune debljine 10 cm. Prozori su od PVC materijala s roletama, komarnicima i troslojnim staklom. Dnevni boravak i spavaće sobe su klimatizirane, a stan dodatno ima i dimnjak. U kupaonici se postavlja podno grijanje. Ulazna vrata su protuprovalna i protupožarna.
Za ovu nekretninu se očekuje energetski certifikat A.
Ražanac je malo mjesto na južnoj strani podvelebitskog kanala koje ima sav sadržaj potreban za ugodno ljetovanje: restorani, kafići, ljekarna, pošta, ambulanta, trgovina, kamp itd. Zadar je udaljen oko 20 km, a plaža Zrće na otoku Pagu oko 50 km.
Otkrijte zašto je Ražanac atraktivna lokacija za kupnju nekretnina.
Pogledajte našu kompletnu ponudu nekretnina na prodaju.
U istoj zgradi na prodaju imamo i apartmane: A1199, A1200, i A1582.
Ukoliko ste ovu nekretninu vidjeli negdje drugdje po nižoj cijeni, ista cijena vrijedi i kod nas!
Link na često postavljena pitanja
