Ukoliko ste ovu nekretninu vidjeli negdje drugdje po nižoj cijeni, ista cijena vrijedi i kod nas!
Link na često postavljena pitanja
Ne prikazuje se točna adresa nekretnine
Razgledavanje putem VIDEO POZIVA
NAZOVITE NAS 023 300 000

Na prodaju je lijepa kuća s bazenom smještena u Radovinu, mirnom mjestu u općini Ražanac, udaljena 4,8 km od mora i 1,3 km od centra mjesta. Kuća se sastoji od prizemlja i kata, nudi funkcionalan raspored te 146,40 m² stambene površine, dok ukupna površina zemljišta iznosi 669 m².
Potpuno je namještena i spremna za korištenje kao i turistički najam.
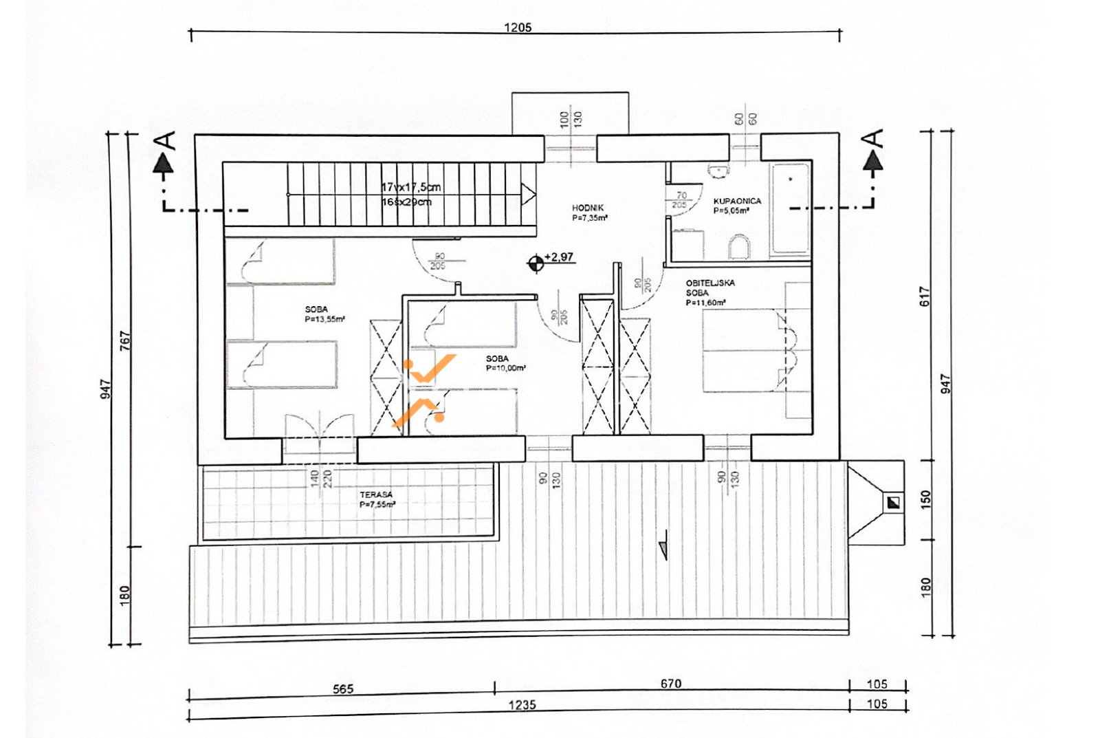
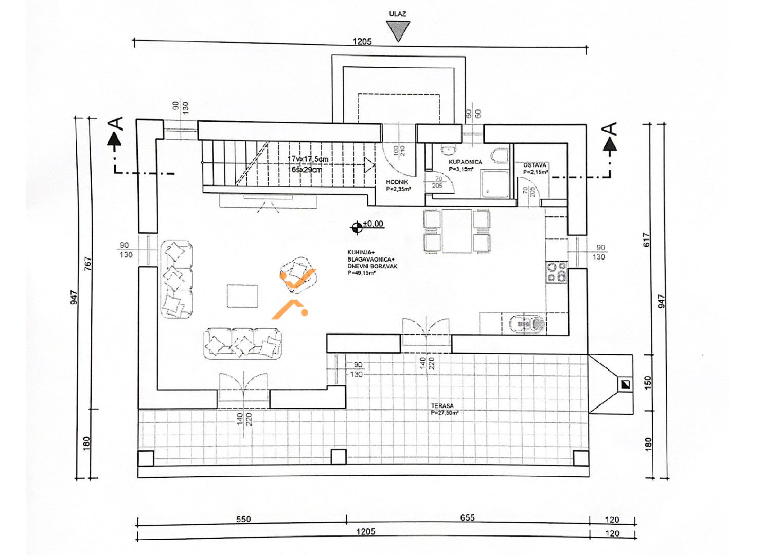
Prizemlje obuhvaća hodnik, kuhinju s blagovaonicom i dnevnim boravkom, kupaonicu, ostavu, unutarnje stubište i terasu, ukupne površine 91,30 m². Na katu se nalaze hodnik, tri spavaće sobe, kupaonica i terasa, ukupne površine 55,10 m².
U sklopu okućnice nalazi se bazen od 32 m², prostrani vrt i roštilj. Osigurana su četiri parkirna mjesta.
Kuća je građena ciglenim termo blokovima i opremljena aluminijskom stolarijom s griljama, komarnicima i dvoslojnim staklom.
U prizemlju su postavljene pločice, dok su na katu u spavaćim sobama laminati. Fasada ima 7 cm toplinske izolacije. Kuća ima dimnjak, a u dnevnom boravku nalazi se kamin koji stvara topao, ugodan i poseban ambijent. Priprema za centralno grijanje je izvedena a klimatizacija je riješena s četiri jedinice – u dnevnom boravku i sve tri sobe.
Kuća je renovirana 2023. godine te posjeduje energetski certifikat A.
Radovin je naselje u Općini Ražanac, izvrsno za opuštajući mirni odmor, a smješteno je u blizini brojnih atraktivnih destinacija, svega 5 km od mora, 20ak kilometara od Zadra te brojnih drugih turističkih središta s odličnom ponudom sadržaja.
Saznajte zašto je Radovin nedaleko Ražanca izvrstan izbor za kupnju nekretnina.
Pogledajte našu kompletnu ponudu kuća, stanova, apartmana i zemljišta na prodaju .
Ukoliko ste ovu nekretninu vidjeli negdje drugdje po nižoj cijeni, ista cijena vrijedi i kod nas!
Link na često postavljena pitanja
