Ukoliko ste ovu nekretninu vidjeli negdje drugdje po nižoj cijeni, ista cijena vrijedi i kod nas!
Link na često postavljena pitanja
Ne prikazuje se točna adresa nekretnine
Razgledavanje putem VIDEO POZIVA
NAZOVITE NAS 023 300 000

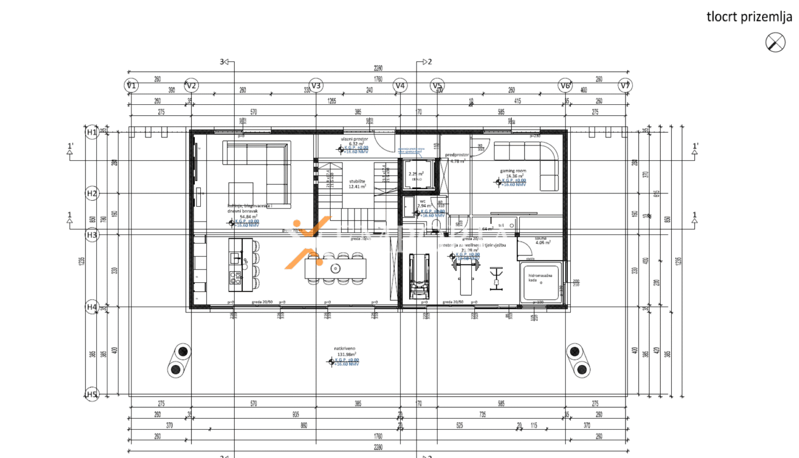
Na prodaju je ekskluzivna luksuzna vila u Sukošanu, udaljena svega 200 m od mora i 2 km od centra mjesta. Smještena na zemljištu površine 1.018 m², ova vila svojim impozantnim dizajnom i vrhunskom opremom predstavlja savršen spoj elegancije, udobnosti i modernog luksuza.
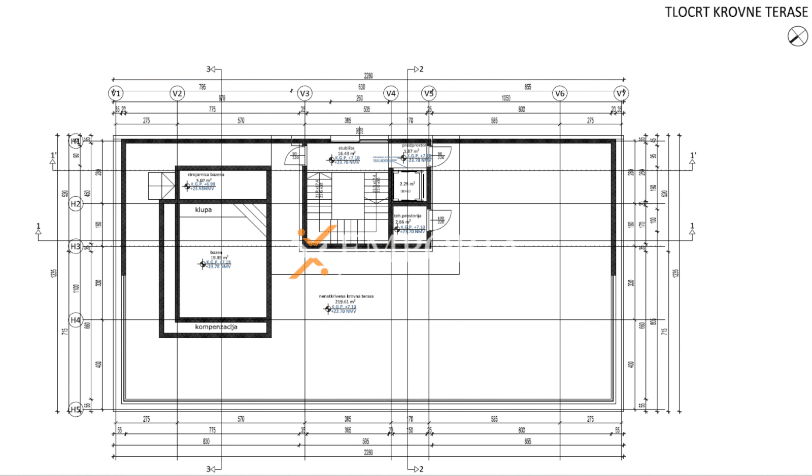
Ukupna bruto površina iznosi 851,54 m², a posebnu vrijednost daju joj čak dva bazena: donji površine 42,50 m² te krovni od 19,89 m², s kojega se pruža prekrasan pogled na more.
Vila je opremljena liftom, a raspored prostorija je sljedeći:
Ukupna neto korisna površine kuće obračunata po koeficijentima s bazenima i garažom iznosi 560,40 m2.
Ova ekskluzivna nekretnina u svom je dizajnu inspirirana jednim od najvećih sportskih velikana svih vremena – Kobe Bryantom. Vrline vrhunskog sportaša poslužile su kao nadahnuće za izvanredan dizajn vile koja odiše strašću i elegancijom, snagom i izvrsnošću te je stvorena za one koji u životu traže istinski luksuz.
O projektu je pisao i ugledni New York Times, ističući njegovu arhitektonsku posebnost i jedinstvenu inspiraciju koja stoji iza samog koncepta.
Vila je izgrađena od masivnih betonskih zidova s fasadom izoliranom 10 cm stiropora, što jamči dugotrajnost i vrhunsku energetsku učinkovitost. Elegantna aluminijska stolarija s troslojnim staklom, komarnicima i zavjesama dodatno pridonosi savršenoj toplinskoj i zvučnoj izolaciji, stvarajući osjećaj udobnosti i luksuza. Podovi su izvedeni u kombinaciji pločica i parketa, a sigurnost dodatno naglašavaju protuprovalna i protupožarna vrata. Udobnost prostora zajamčena je podnim grijanjem preko dizalice topline, a svaka prostorija ima svoj klima uređaj za potpunu individualnu kontrolu temperature.
Rasvjeta u cijeloj kući izvedena je u LED tehnologiji, a sigurnosni sustav uključuje video nadzor i video parlafon s pristupom putem aplikacije. Garaža je opremljena Hormann vratima i punionicom za električne automobile. Vila se prodaje potpuno namještena, uključujući luksuzno opremljeni gaming room, vrhunsku teretanu, saunu i jacuzzi. Vanjska kuhinja na krovnoj terasi obuhvaća veliki šank, roštilj i hladnjak, pružajući idealan ambijent za nezaboravna druženja uz zalazak sunca.
Očekivani energetski certifikat je A+. Ova luksuzna vila u Sukošanu predstavlja jedinstvenu priliku za udoban život ili sigurnu investiciju na jednoj od najatraktivnijih lokacija na Jadranu.
Sukošan je šarmantno dalmatinsko mjesto smješteno u prostranom zaljevu Zlatna luka, svega 7 km od Zadra. Sa svojih približno 3.000 stanovnika i pripadajućim mjestima Debeljak, Glavica i Gorica, nudi miran mediteranski ambijent uz izvrsnu prometnu povezanost. Središnja atrakcija mjesta je D-Marin marina Dalmacija – najveća marina na Jadranu – koja Sukošan čini pravim rajem za nautičare i ljubitelje mora.
Posebnu privlačnost daju brojne plaže poput popularnog Dječjeg raja, mirnije plaže Podvare ili šljunčane Makarske, a tu su i skrivene uvale koje čekaju da ih otkrijete. Uživanje u kupanju, jedrenju i šetnjama uz more upotpunjuje bogat društveni i kulturni život. Tijekom ljeta održavaju se ribarske feštice, koncerti, folklorne večeri te blagdan sv. Kasijana s vatrometom i procesijama. Ljubitelje sporta privlače plivački maraton, turniri na male branke i poznata regata “Ples sa jedrima”.
Zahvaljujući spoju netaknute prirode, vrhunske nautičke infrastrukture i bogatog programa događanja, Sukošan je jedno od najpoželjnijih mjesta za kupnju nekretnine na Jadranu – bilo da tražite miran dom uz more ili atraktivnu investiciju s visokim potencijalom za turistički najam.
Kompletnu ponudu naših nekretnina u Sukošanu možete vidjeti ovdje.
Više o mjestu Sukošan pročitajte na linku Sukošan.
Ukoliko ste ovu nekretninu vidjeli negdje drugdje po nižoj cijeni, ista cijena vrijedi i kod nas!
Link na često postavljena pitanja
