Ukoliko ste ovu nekretninu vidjeli negdje drugdje po nižoj cijeni, ista cijena vrijedi i kod nas!
Link na često postavljena pitanja
Ne prikazuje se točna adresa nekretnine
Razgledavanje putem VIDEO POZIVA
NAZOVITE NAS 023 300 000

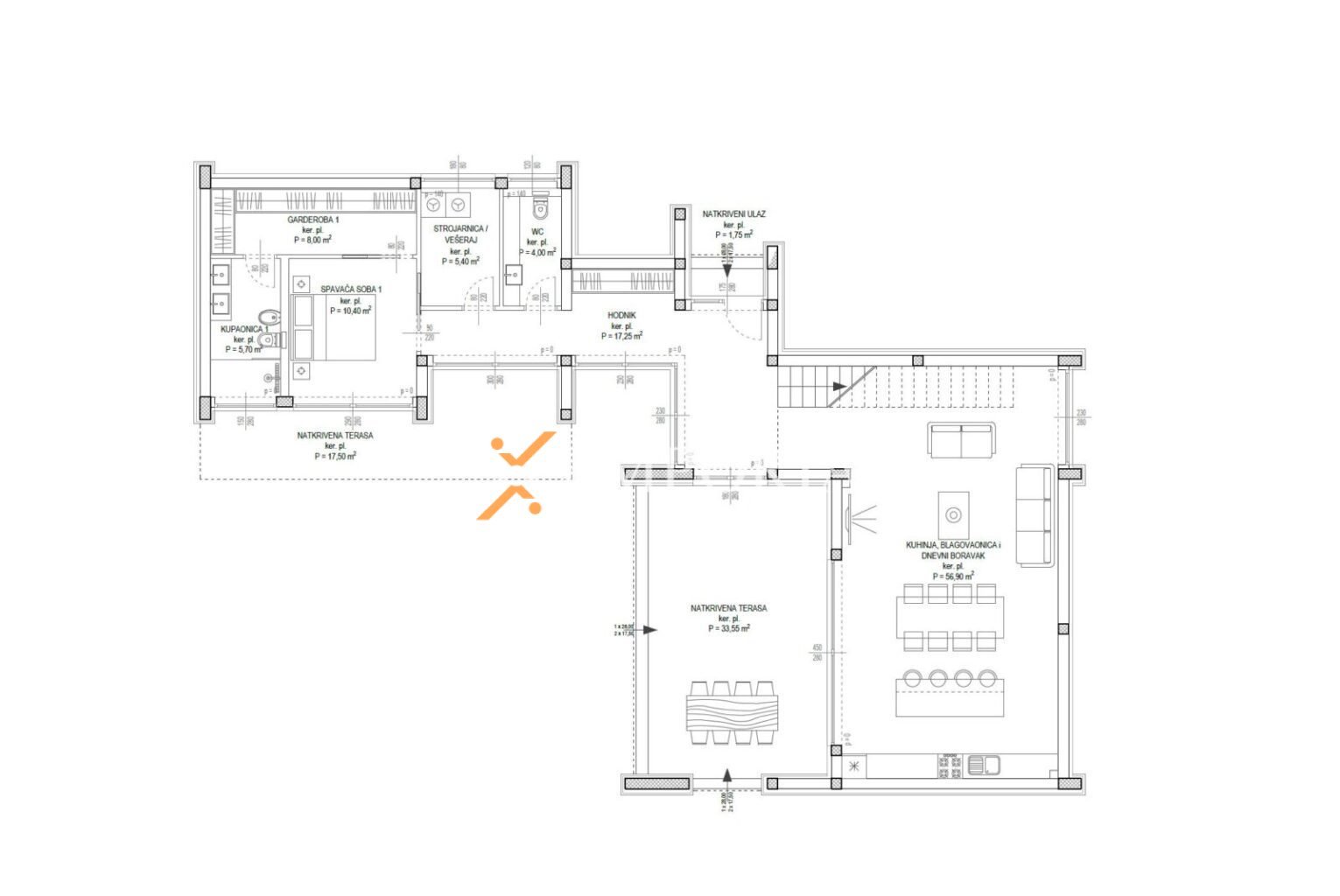
U Općini Ražanac, 2,5 km od mora i 3 km od centra mjesta, prodaje se moderna novogradnja s bazenom ukupne površine 352,45 m². Kuća je smještena na zemljištu površine 738 m² i raspoređena na prizemlje i kat.
Prizemlje se sastoji od natkrivenog ulaza, hodnika, spavaće sobe s vlastitom kupaonicom i garderobom, kuhinje s blagovaonicom i dnevnim boravkom, WC-a, praonice te dvije natkrivene terase (160,45 m²). Unutarnje stepenice vode na prvi kat gdje se nalazi hodnik i dvije spavaće sobe, svaka s vlastitom kupaonicom i garderobom, te dvije natkrivene terase (152,00 m²).
U dvorištu se nalazi preljevni bazen površine 40 m². U dvorištu su i tri parkirališna mjesta.
Kuća je građena od ciglenog termo bloka s fasadom od 10 cm stiropora. Prozori su aluminijski s troslojnim staklom. U kupaonicama su ugrađene električne rolete, dok su na ostalim otvorima staklene površine s premazom za zaštitu od sunca. Podovi su obloženi keramičkim pločicama. Ulazna vrata su protuprovalna.
Grijanje je osigurano podnim grijanjem u cijeloj kući putem dizalice topline. Ukupno četiri klima uređaja postavljena su u dnevnom boravku i spavaćim sobama. Bazen je opremljen folijom i preljevnim sustavom, a u dvorištu se nalazi i ljetna kuhinja s roštiljem.
Kuća ima djelomičan pogled na more. Namještaj nije uključen u cijenu, ali ga prodavatelj može ugraditi uz nadoplatu.
U galeriji možete pogledati trenutačno stanje gradnje.
Ražanac je malo mjesto na južnoj strani podvelebitskog kanala koje ima sav sadržaj potreban za ugodno ljetovanje: restorani, kafići, ljekarna, pošta, ambulanta, trgovina, kamp itd. Zadar je udaljen oko 20 km, a plaža Zrće na otoku Pagu oko 50 km.
Više o mjestu pročitajte na linku Ražanac.
Kompletnu ponudu naših nekretnina u Ražancu možete vidjeti ovdje.
Ukoliko ste ovu nekretninu vidjeli negdje drugdje po nižoj cijeni, ista cijena vrijedi i kod nas!
Link na često postavljena pitanja
