Ukoliko ste ovu nekretninu vidjeli negdje drugdje po nižoj cijeni, ista cijena vrijedi i kod nas!
Link na često postavljena pitanja
Ne prikazuje se točna adresa nekretnine
Razgledavanje putem VIDEO POZIVA
NAZOVITE NAS 023 300 000

Na prodaju je moderna dvojna kuća s bazenom, smještena na atraktivnoj lokaciji u Sabunikama, naselju unutar Privlake. Riječ je o novogradnji iz koje se pruža prekrasan pogled na more, što ovu nekretninu čini idealnom za odmor ili investiciju.
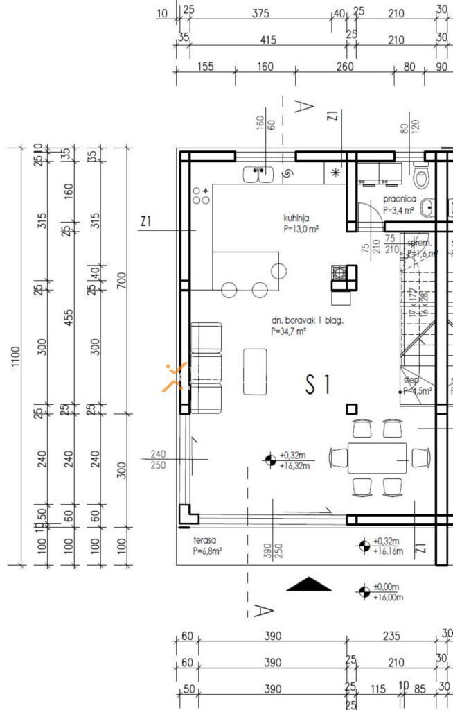
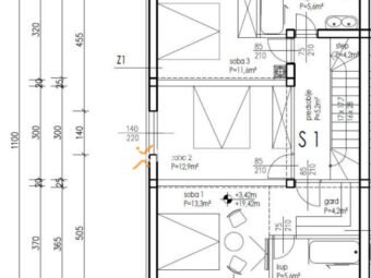
Prizemlje kuće sastoji se od ulaznog prostora, spremišta, kupaonice, praonice te otvorenog koncepta kuhinje s blagovaonicom i dnevnim boravkom. Unutarnje stepenice vode na prvi kat, gdje se nalaze hodnik, dodatna kupaonica, dvije spavaće sobe te glavna spavaća soba s vlastitom kupaonicom i garderobom.
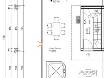
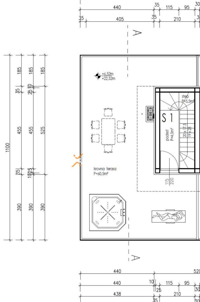
Stepenište dalje vodi na djelomično natkrivenu krovnu terasu koja nudi pripremu za saunu, jacuzzi i ljetnu kuhinju — savršen prostor za opuštanje i uživanje. Ukupna površina zatvorenog stambenog prostora iznosi 150,70 m².
Kući dodatno pripada bazen, uređeni vrt površine 100 m², vanjsko spremište te jedno parkirališno mjesto. Ukupna površina kuće zajedno sa svim pripadajućim sadržajima iznosi 169,64 m².
Kuća je građena od kvalitetnog ciglenog termo bloka, dok je fasada dodatno izolirana s 10 cm stiropora, što doprinosi visokoj energetskoj učinkovitosti.
Grijani bazen obložen je keramičkim pločicama te opremljen protustrujnim plivanjem i masažnim mlaznicama – idealan za cjelogodišnje korištenje.
Podne obloge u cijeloj kući izvedene su u keramici. Prozori su izrađeni od PVC materijala i opremljeni troslojnim staklom, električnim roletama i komarnicima, što dodatno povećava udobnost.
Za grijanje je ugrađeno podno grijanje putem dizalice topline, a u svakoj prostoriji nalazi se i klima uređaj za grijanje i hlađenje. Kuća dodatno ima i dimnjak, što omogućuje ugradnju kamina ili peći prema želji budućeg vlasnika.
Kuća je spojena na gradsku kanalizaciju.
Energestki certifikat je A.
Sabunike su malo turističko mjesto idealno za pravi, opuštajući obiteljski odmor. Sabunike su se smjestile pokraj kraljevskog grada Nina i sjeverno od turističkog i ribarskog mjesta Privlake. Iz Sabunika se pruža bajkovit pogled na more, Velebit i grad Nin. Posebno treba istaknuti prekrasne i brojne pješčane plaže s brojnim dodatnim sadržajima.
Više o mjestu pročitajte na linku Privlaka.
Ponudu nekretnina u Privlaci možete vidjeti ovdje.
Ukoliko ste ovu nekretninu vidjeli negdje drugdje po nižoj cijeni, ista cijena vrijedi i kod nas!
Link na često postavljena pitanja
