Ukoliko ste ovu nekretninu vidjeli negdje drugdje po nižoj cijeni, ista cijena vrijedi i kod nas!
Link na često postavljena pitanja
Ne prikazuje se točna adresa nekretnine
Razgledavanje putem VIDEO POZIVA
NAZOVITE NAS 023 300 000

Na prodaju je prostrani stan na prvom katu moderne novogradnje, smješten svega 20 metara od mora, u mirnom dijelu Rtine. Stan se nalazi u prvom redu do mora i nudi otvoren pogled na more. Udaljenost od centra mjesta iznosi 1.200 metara.
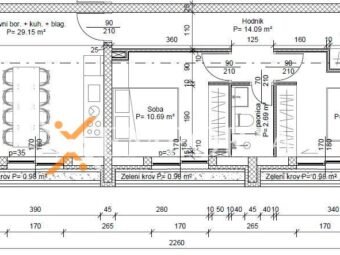
Neto korisna površina zatvorenog dijela stana iznosi 95,46 m². Raspored prostorija uključuje hodnik, dvije spavaće sobe, kupaonicu, kuhinju s blagovaonicom i dnevnim boravkom, te natkrivenu terasu.
Iz zajedničkog stubišta pristupa se privatnoj krovnoj terasi na kojoj se nalaze natkrivena ljetna kuhinja (17,84 m²) i bazen površine 14,72 m² (neto 7,36 m²).
Stanu pripada i spremište na prvom katu (1 m²) te dva parkirna mjesta. Ukupna neto površina s pripacima iznosi 100,46 m².
Stan je opremljen električnim podnim grijanjem u cijelom prostoru te s tri klima uređaja – jedan u dnevnom boravku i po jedan u svakoj spavaćoj sobi.
Stolarija je PVC i aluminijska, s troslojnim staklima, električnim roletama i komarnicima. Ulazna vrata su protuprovalna i protupožarna.
Podovi su izvedeni kombinacijom kvalitetnih pločica i parketa. Fasada je izolirana stiroporom debljine 10 cm.
Zgrada se gradi od betonskih zidova, dijelom i termo blokova. Na krovnoj terasi nalazi se i zidani roštilj.
Useljenje je predviđeno početkom 2027. godine, a očekivani energetski certifikat je razred A.
Za dodatne informacije i dogovor oko obilaska, slobodno nas kontaktirajte.
Rtina je malo turističko mjesto smješteno na rtu na oko 43 m nadmorske visine. Spada pod Općinu Ražanac. Taj rt je najsjeverniji dio kopnenog dijela Dalmacije koji je mostom spojen s otokom Pagom. Udaljena je oko 5 km Ražanca, a od Zadra oko 20 km. U neposrednoj blizini Paškog mosta nalaze se zanimljivi ostaci srednjovjekovne Templarske utvrde. Rtina je poznata i po organizaciji Rtinskog plivačkog maratona s međunarodnim predznakom.
Kompletnu ponudu naših nekretnina u Općini Ražaac možete vidjeti ovdje.
Zgrada se sastoji od ukupno 4 stana. U ponudi su još uvijek: A1512, A1513, A1514.
Ukoliko ste ovu nekretninu vidjeli negdje drugdje po nižoj cijeni, ista cijena vrijedi i kod nas!
Link na često postavljena pitanja
