Ukoliko ste ovu nekretninu vidjeli negdje drugdje po nižoj cijeni, ista cijena vrijedi i kod nas!
Link na često postavljena pitanja
Ne prikazuje se točna adresa nekretnine
Razgledavanje putem VIDEO POZIVA
NAZOVITE NAS 023 300 000

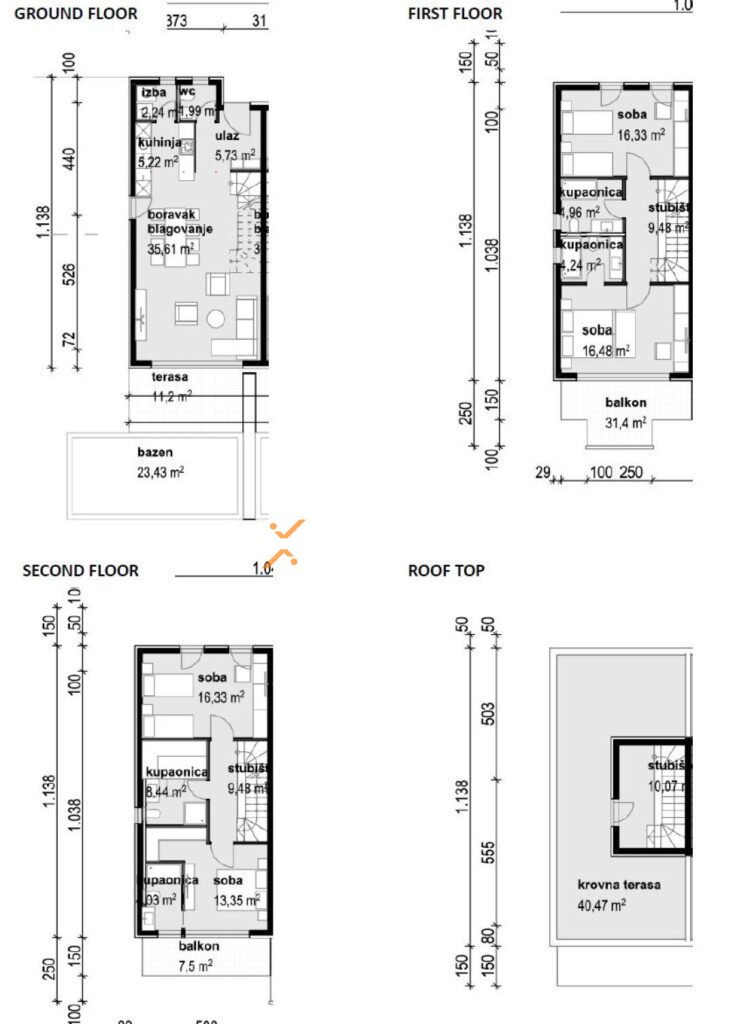
Prodaje se višeetažni apartman s pogledom na more u Privlaci. Sastoji se od prizemlja, 1. kata, 2. kata i krovne terase. Ovakav apartman se može usporediti s kućom u nizu. Udaljen je svega 65 m od mora.
Raspored prostorija po katovima:
Prizemlje: ulaz, wc, kuhinja, ostava, dnevni boravak, blagovaonica, terasa
1. Kat: hodnik, kupaonica, dvije spavaće sobe od kojih jedna ima vlastitu kupaonicu i balkon
2. Kat: hodnik, kupaonica, dvije spavaće sobe od kojih jedna ima vlastitu kupaonicu i balkon
Nadalje, unutarnje stepenice vode na krovnu terasu površine 40,47 m2
Ukupna neto korisna površina opisanoga iznosi 187,44 m2.
Također, apartmanu pripadaju vrt od 95,01 m2 s bazenom od 23,46 m2 te dva parkirališna mjesta.
Ukupna neto korisna površina apartmana sa svim pripacima iznosi 228,26 m2.
Udaljenost ove nekretnine od centra je 1,9 km.
Zgrada je u izgradnji, a useljenje je previđeno na ljeto 2025. U zgradi je ukupno 5 stambenih jedinica. Gradnja se vrši betonskim zidom. Termoizolacija fasade je 10 cm stiropor.
Podne obloge su pločice. Prozori su aluminijski s troslojnim staklom. Prozorski kapci su klizni i zaokretni. Ima ukupno 6 klima uređaja u stanu. Po jedan uređaj u dnevnom boravku i po jedan u svakoj spavaćoj sobi. Zgrada također ima dimnjak te priključak na svakoj etaži. Ulazna vrata su protuprovalna i protupožarna.
Privlaka je malo ribarsko i turističko mjesto udaljeno samo 15 minuta vožnjom od grada Zadra, smještena na prostranom pješčanom poluotoku između kraljevskog grada Nina i otoka Vira. Čisto more i duge, plitke pješčane uvale stvorene su za opuštanje u potpunosti. Mjesto nudi sav potreban sadržaj za ugodan i kvalitetan život: trgovine, restorane, poštu, ambulantu. Ljubitelji sporta, rekreacije koji se žele okušati u jedrenju ili surfanju pronaći će svoj kutak raja u obližnjim naseljima. Sve što trebate za miran i opuštajući obiteljski odmor u mediteranskom stilu možete ovdje pronaći.
Ponudu nekretnina u Privlaci možete vidjeti ovdje.
Ukoliko ste ovu nekretninu vidjeli negdje drugdje po nižoj cijeni, ista cijena vrijedi i kod nas!
Link na često postavljena pitanja
