Ukoliko ste ovu nekretninu vidjeli negdje drugdje po nižoj cijeni, ista cijena vrijedi i kod nas!
Link na često postavljena pitanja
Ne prikazuje se točna adresa nekretnine
Razgledavanje putem VIDEO POZIVA
NAZOVITE NAS 023 300 000

Zadar, Bili Brig, novogradnja stan na 1. katu s pogledom na more predstavlja izvrsnu priliku za kupnju nekretnine u Zadru. Ova moderna nekretnina nudi funkcionalan raspored i ukupnu neto površinu od 88,70 m2, što je čini pogodnom za obiteljski život ili investiciju.
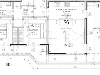
Stan se sastoji od hodnika, 2 spavaće sobe, praonice/WC-a, kupaonice, kuhinje s blagovaonicom i dnevnim boravkom te natkrivene terase. Neto korisna površina iznosi 80,57 m2. Dodatno, stanu pripadaju 2 parkirna mjesta i spremište u podrumu, što povećava praktičnost i vrijednost ove nekretnine.
Stan ima pogled na more, dok kvalitetna gradnja i suvremeni standardi osiguravaju dugoročnu energetsku učinkovitost. Godina izgradnje je 2027., a očekivani energetski certifikat je A.
Stan ima podno električno grijanje u svim prostorijama, kao i 3 klima uređaja u dnevnom boravku i spavaćim sobama. Objekt je građen betonskim zidom, dok fasada ima toplinsku izolaciju od 10 cm stiropora. Ugrađena je aluminijska stolarija s elektrorolete i komarnicima. Podovi su obloženi pločicama. Ulazna vrata su protuprovalna i protupožarna. Krov je novi, ravni i betonski.
Jedan od najvećih dijelova grada Zadra, Bili Brig, idealan je za rješavanje stambenog pitanja. Na Bilom Brigu nalaze se škola, dječji vrtić, supermarketi, mnoštvo malih trgovina, tržnica, nekoliko frizerskih salona i salona za uljepšavanje, poštanski ured, banka, nekoliko kafića i pizzerija. Nadohvat ruke je i Športsko-rekreativni centar Višnjik. Bili Brig je od centra grada, Poluotoka, te od mora i plaže udaljen tek par minuta vožnje.
Odlično je povezan sa svim dijelovima grada autobusnim linijama.
Otkrijte zašto je Zadar atraktivna lokacija za kupnju nekretnina.
Pogledajte našu kompletnu ponudu nekretnina na prodaju.
U istoj zgradi na prodaju imamo i apartmane: F1344, F1346, F1347.
Ukoliko ste ovu nekretninu vidjeli negdje drugdje po nižoj cijeni, ista cijena vrijedi i kod nas!
Link na često postavljena pitanja
