Ukoliko ste ovu nekretninu vidjeli negdje drugdje po nižoj cijeni, ista cijena vrijedi i kod nas!
Link na često postavljena pitanja
Ne prikazuje se točna adresa nekretnine
Razgledavanje putem VIDEO POZIVA
NAZOVITE NAS 023 300 000

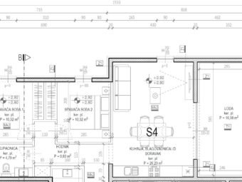
Stan u Zadru, Bili Brig, novogradnja, pogled na more, ukupno 85,83 m2, nalazi se na 1. katu i predstavlja izvrsnu priliku za kupnju modernog stana u atraktivnoj lokaciji uz more.
Stan obuhvaća hodnik, dvije spavaće sobe, praonicu/WC, kupaonicu, kuhinju s blagovaonicom i dnevnim boravkom otvorenog koncepta te lođu. Neto korisna površina zatvorenih prostorija iznosi 77,13 m2. Dodatno, stanu pripadaju dva parkirna mjesta i spremište u podrumu, što čini ukupnu neto površinu s pripacima 85,83 m2.
Stan pruža prekrasan pogled na more, a gradnja je kvalitetna, s betonskim zidovima i toplinskom izolacijom fasade od 10 cm stiropora. Godina izgradnje je 2027., a očekivani energetski certifikat je A, što potvrđuje visoku energetsku učinkovitost.
Stan ima podno električno grijanje u cijelom prostoru, tri klima uređaja u dnevnom boravku i spavaćim sobama. Prozori su aluminijski s elektroroletama i komarnicima. Podne obloge čine kvalitetne pločice. Ulazna vrata su protuprovalna i protupožarna, a krov je novi, ravni i betonski, što doprinosi sigurnosti i dugovječnosti objekta.
Jedan od najvećih dijelova grada Zadra, Bili Brig, idealan je za rješavanje stambenog pitanja. Na Bilom Brigu nalaze se škola, dječji vrtić, supermarketi, mnoštvo malih trgovina, tržnica, nekoliko frizerskih salona i salona za uljepšavanje, poštanski ured, banka, nekoliko kafića i pizzerija. Nadohvat ruke je i Športsko-rekreativni centar Višnjik. Bili Brig je od centra grada, Poluotoka, te od mora i plaže udaljen tek par minuta vožnje.
Odlično je povezan sa svim dijelovima grada autobusnim linijama.
Otkrijte zašto je Zadar atraktivna lokacija za kupnju nekretnina.
Pogledajte našu kompletnu ponudu nekretnina na prodaju.
U istoj zgradi na prodaju imamo i apartmane: F1345, F1346, F1347.
Ukoliko ste ovu nekretninu vidjeli negdje drugdje po nižoj cijeni, ista cijena vrijedi i kod nas!
Link na često postavljena pitanja
