Ukoliko ste ovu nekretninu vidjeli negdje drugdje po nižoj cijeni, ista cijena vrijedi i kod nas!
Link na često postavljena pitanja
Ne prikazuje se točna adresa nekretnine
Razgledavanje putem VIDEO POZIVA
NAZOVITE NAS 023 300 000

Na prodaju je moderan penthouse smješten u zadarskom naselju Borik, na odličnoj lokaciji oko 490 m od mora i 2,9 km od centra grada. Stan se nalazi na drugom katu zgrade, ima iznimno funkcionalan raspored i nudi odličan pogled na more, što ga čini atraktivnim za stanovanje i boravak tijekom cijele godine.
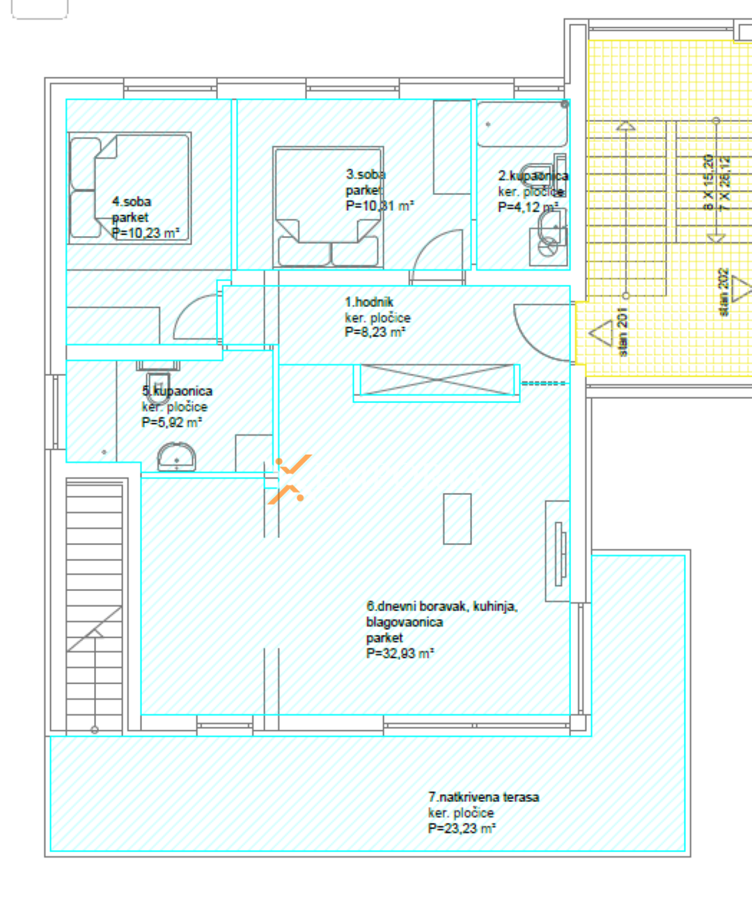
Neto korisna površina stana iznosi 109,98 m², dok ukupna površina s pripacima iznosi 116,79 m².
Raspored prostorija čine hodnik, spavaća soba, spavaća soba s vlastitom kupaonicom, dodatna kupaonica, kuhinja s blagovaonicom i dnevnim boravkom te natkrivena terasa površine 75,12 m². S terase se pristupa na prostranu krovnu terasu od 102,99 m², koja pruža izvrstan prostor za opuštanje na otvorenom. Na krovnoj terasi nalazi se i jacuzzi.
Stanu pripada spremište od 3,50 m² smješteno u prizemlju te dva parkirna mjesta, što dodatno povećava praktičnost korištenja.
Stan je izgrađen od ciglenog termo bloka, s PVC stolarijom (troslojno staklo, elektrorolete, komarnici) i stiropor fasadom debljine 10 cm. Podovi kombiniraju pločice i laminat, a ulazna vrata su protuprovalna i protupožarna.
U svim prostorijama osim spavaćih soba postavljeno je podno električno grijanje, dok su u dnevnom boravku i spavaćim sobama instalirane tri klima jedinice.
Godina izgradnje je 2022., a energetski certifikat iznosi B.
Stan se prodaje namješten, što omogućuje brzo i jednostavno useljenje.
Ovaj penthouse predstavlja vrlo atraktivnu nekretninu na zadarskom Boriku, idealnu za one koji traže kvalitetan stan s velikim otvorenim prostorom i pogledom na more.
Ovaj dio grada, Borik, poznat je po pješčanim i šljunčanim plažama koje su uređene i opremljene dodatnim sadržajima za zabavu i rekreaciju, a u naselju se nalaze i sportski tereni.
Borik je odredište koje zbog lijepih i lako dostupnih kupališta preporučujemo obiteljima s djecom, a raznovrsnost sportskih sadržaja u mjestu i okolici te blizina centra Zadra, Poluotoka, čine ga zanimljivim mladima i ljubiteljima aktivnog odmora. Odlično je povezan dio grada linijama gradskog prijevoza, ima odlične restorane, kafiće, noćne klubove i parkove za djecu.
Više o mjestu pročitajte na linku Zadar.
Kompletnu ponudu naših nekretnina u Zadru možete vidjeti ovdje.
Ukoliko ste ovu nekretninu vidjeli negdje drugdje po nižoj cijeni, ista cijena vrijedi i kod nas!
Link na često postavljena pitanja
