Ukoliko ste ovu nekretninu vidjeli negdje drugdje po nižoj cijeni, ista cijena vrijedi i kod nas!
Link na često postavljena pitanja
Ne prikazuje se točna adresa nekretnine
Razgledavanje putem VIDEO POZIVA
NAZOVITE NAS 023 300 000

Na prodaju je moderan penthouse u novogradnji u Zadru, u mirnom kvartu Crvene kuće. Nalazi se na drugom katu zgrade, udaljene svega 1,26 km od mora i 2,8 km od centra grada. Ova nekretnina nudi spoj luksuza, funkcionalnosti i visokog standarda gradnje, idealna za moderan način života.
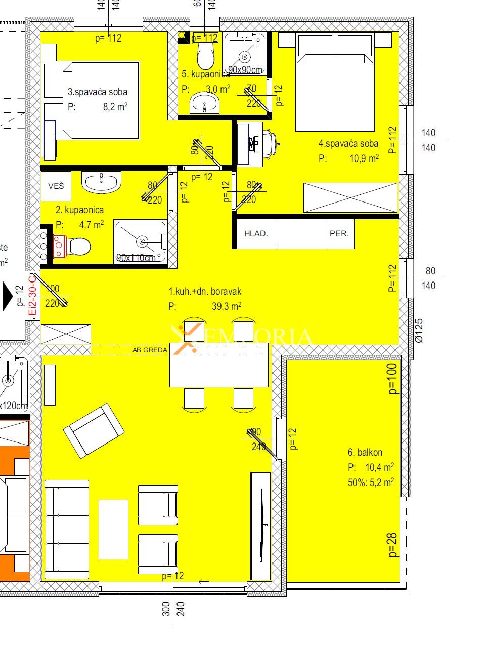
Stan se sastoji od hodnika, kuhinje s blagovaonicom i dnevnim boravkom, spavaće sobe s vlastitom kupaonicom, dodatne spavaće sobe, još jedne kupaonice te terase. Iz stana se izlazi na prostranu krovnu terasu površine 79,86 m², savršenu za uživanje na otvorenom i druženja s obitelji i prijateljima. Neto korisna površina stana iznosi 91,30 m², dok ukupna površina s pripacima iznosi 102,75 m².
Stanu pripadaju dva parkirna mjesta i garaža površine 17,39 m².
Zgrada je građena od betonskih zidova, s PVC stolarijom, troslojnim staklima, elektroroletama i komarnicima. Fasada je izolirana 10 cm stiroporom, podovi su obloženi pločicama, a ulazna vrata su protuprovalna i protupožarna. Krov je nov, ravan i betonski.
U stanu je predviđeno podno električno grijanje u kuhinji, blagovaonici, dnevnom boravku i kupaonicama, dok su klima uređaji postavljeni u dnevnom boravku i obje spavaće sobe. Stan ima vlastito brojilo struje i vode te priključak na javnu kanalizaciju. Prilaz zgradi je asfaltiran.
Predviđeni rok useljenja je rujan 2026. godine, a očekivani energetski certifikat je A+.
Ovaj penthouse u Zadru predstavlja savršenu kombinaciju udobnosti, elegancije i funkcionalnosti, s prostranom krovnom terasom koja pruža dodatni prostor za uživanje u mediteranskom načinu života.
Predio Crvene kuće miran je zadarski kvart koji se nalazi na sjeveru grada gdje prevladavaju pretežno obiteljske kuće i niz novih stambenih zgrada. Udaljen je od gužve i buke, no isto tako do centra grada potrebno je tek 10ak minuta vožnje. Isto toliko potrebno je i do najbliže plaže. Upravo zato, ovaj dio grada poželjan je za rješavanje stambenog pitanja.
U zgradi se prodaju sljedeći stanovi: F1292, F1293, F1294, F1295, F1297.
Ukoliko ste ovu nekretninu vidjeli negdje drugdje po nižoj cijeni, ista cijena vrijedi i kod nas!
Link na često postavljena pitanja
