Ukoliko ste ovu nekretninu vidjeli negdje drugdje po nižoj cijeni, ista cijena vrijedi i kod nas!
Link na često postavljena pitanja
Ne prikazuje se točna adresa nekretnine
Razgledavanje putem VIDEO POZIVA
NAZOVITE NAS 023 300 000

Prodaje se odličan penthouse stan u novogradnji. Nalazi se na Boriku u Zadru. Iz stana se pruža odličan pogled na more.
Radi se o modernoj stambenoj zgradi sa 6 stambenih jedinica u zgradi. Zgrada ima lift.
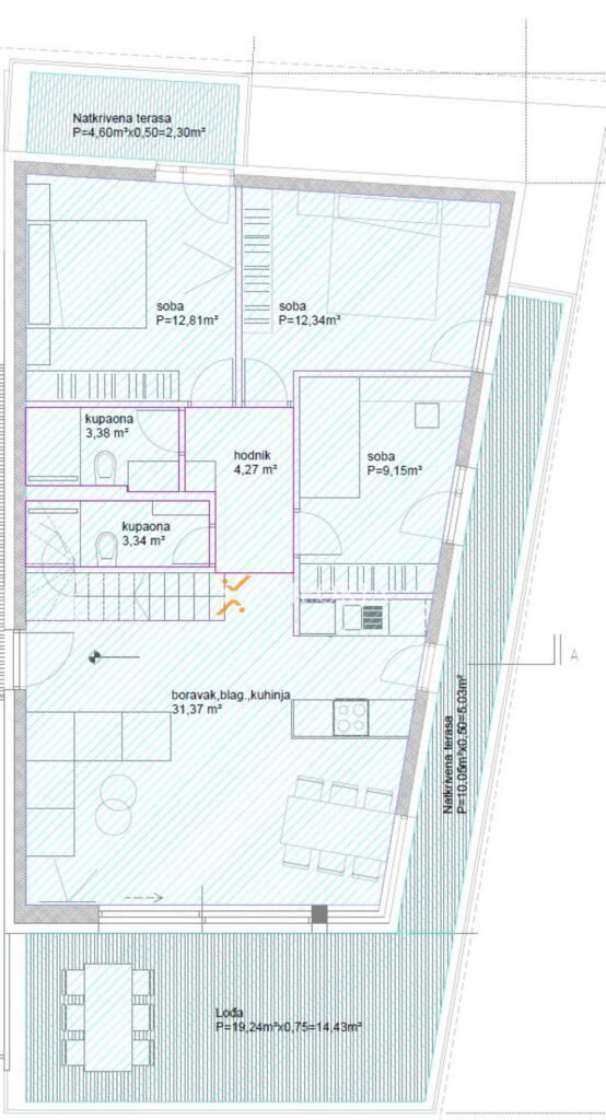
Ovo je stan na 2. katu zgrade. Raspored prostorija čine hodnik, dvije kupaonice, tri spavaće sobe, kuhinja s blagovaonicom i dnevnim boravkom, lođa te dvije natkrivene terase. Iz stana se stubištem ide na vlastitu krovnu terasu površine 75,11 m2. Neto korisna površina opisanih prostorija iznosi 122,79 m2.
Dodatno stanu pripadaju dva garažna parkirališna mjesta. Ukupna neto površina s pripacima iznosi 136,53 m2.
Udaljenost ove nekretnine od mora je 440 m. Udaljenost od centra je 3 km.
Gradnja se vrši betonskim zidom. Termoizolacija zgrade se izvodi stiroporom debljine 15 cm. Podne obloge su parket i pločice. Prozori su od aluminija s električnim roletama, troslojnim staklom i komarnicima. U spavaćim sobama i u dnevnom boravku se postavljaju klima uređaji.
Nadalje, stan se oprema podnim električnim grijanjem u svim prostorijama. Ulazna vrata stana su protuprovalna i protupožarna.
Očekuje se energetski certifikat A.
Ovaj dio grada, Borik, poznat je po pješčanim i šljunčanim plažama koje su uređene i opremljene dodatnim sadržajima za zabavu i rekreaciju, a u naselju se nalaze i sportski tereni.
Borik je odredište koje zbog lijepih i lako dostupnih kupališta preporučujemo obiteljima s djecom, a raznovrsnost sportskih sadržaja u mjestu i okolici te blizina centra Zadra, Poluotoka, čine ga zanimljivim mladima i ljubiteljima aktivnog odmora. Odlično je povezan dio grada linijama gradskog prijevoza, ima odlične restorane, kafiće, noćne klubove i parkove za djecu.
Više o lokaciji pročitajte na linku kvarta Borik.
Našu ostalu ponudu stanova u Zadru možete vidjeti ovdje.
Ukoliko ste ovu nekretninu vidjeli negdje drugdje po nižoj cijeni, ista cijena vrijedi i kod nas!
Link na često postavljena pitanja
