Ukoliko ste ovu nekretninu vidjeli negdje drugdje po nižoj cijeni, ista cijena vrijedi i kod nas!
Link na često postavljena pitanja
Ne prikazuje se točna adresa nekretnine
Razgledavanje putem VIDEO POZIVA
NAZOVITE NAS 023 300 000

Na prodaju je novogradnja smještena u Sabunikama kod Privlake, na mirnoj lokaciji svega 450 m od mora, s pogledom na more s prvog kata i krovne terase. Nekretnina je pogodna za obiteljsko stanovanje, ali i kao kvalitetna kuća za odmor uz more.
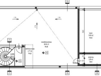
Kuća se sastoji od jedne stambene jedinice i prostire se kroz prizemlje, prvi kat i krovnu terasu. Ukupna površina iznosi 305,31 m², uključujući bazen smješten na krovnoj terasi, dok površina zemljišta iznosi 350 m².
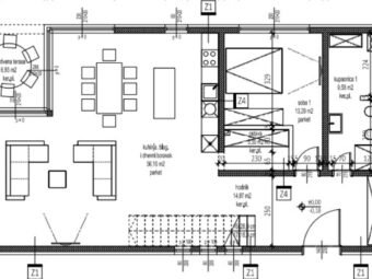
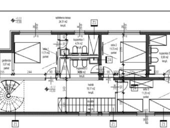
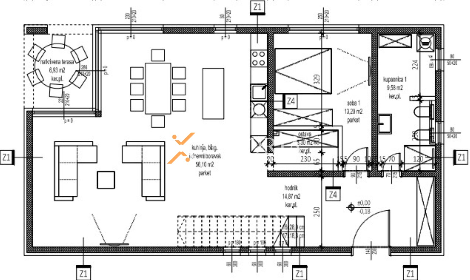
U prizemlju se nalaze hodnik, dnevni boravak povezan s kuhinjom i blagovaonicom, jedna soba, kupaonica, ostava te natkrivena terasa. Na prvom katu smještene su tri spavaće sobe, svaka s vlastitom kupaonicom, garderoba i natkrivena terasa. Krovna terasa nudi kombinaciju natkrivenog i nenatkrivenog dijela, bazen površine 16,80 m² s mogućnošću grijanja te strojarnicu.
Kući pripada vrt, kao i dva parkirna mjesta. Ostava u prizemlju ima površinu 3,30 m², što dodatno povećava funkcionalnost prostora.
Nekretnina je građena od ciglenog termo bloka, s PVC stolarijom (troslojno staklo, elektrorolete, komarnici) i stiropor fasadom debljine 10 cm. Podovi su obloženi pločicama, a odvodnja je spojena na kanalizaciju.
U cijeloj kući ugrađeno je podno električno grijanje, dok je u dnevnom boravku i spavaćim sobama postavljeno pet klima uređaja, što omogućuje ugodnu temperaturu tijekom cijele godine.
Planirani završetak gradnje je 2026. godina, a očekivani energetski certifikat je A.
Ova novogradnja predstavlja kvalitetnu i funkcionalnu kuću s dodatnim sadržajima poput bazena i krovne terase, smještenu u blizini mora i svih potrebnih sadržaja.
Sabunike su malo turističko mjesto idealno za pravi, opuštajući obiteljski odmor. Sabunike su se smjestile pokraj kraljevskog grada Nina i sjeverno od turističkog i ribarskog mjesta Privlake. Iz Sabunika se pruža bajkovit pogled na more, Velebit i grad Nin. Posebno treba istaknuti prekrasne i brojne pješčane plaže s brojnim dodatnim sadržajima.
Sabunike su odlično odredište za kupnju nekretnine uz more , pogodne za odmor i cjelogodišnje stanovanje.
Pogledajte našu kompletnu ponudu nekretnina na prodaju .
Ukoliko ste ovu nekretninu vidjeli negdje drugdje po nižoj cijeni, ista cijena vrijedi i kod nas!
Link na često postavljena pitanja
