Ukoliko ste ovu nekretninu vidjeli negdje drugdje po nižoj cijeni, ista cijena vrijedi i kod nas!
Link na često postavljena pitanja
Ne prikazuje se točna adresa nekretnine
Razgledavanje putem VIDEO POZIVA
NAZOVITE NAS 023 300 000

Na prodaju je novogradnja, zapadni dio dvojne kuće, smještena u Sabunikama kod Privlake, svega 450 m od mora.
Nekretnina ima pogled na more s prvog kata i krovne terase, što joj daje dodatnu vrijednost za stanovanje ili odmor.
Kuća se sastoji od jedne stambene jedinice i proteže se kroz prizemlje, prvi kat i krovnu terasu.
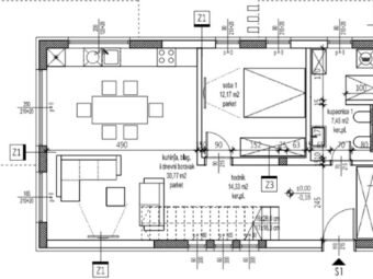
Ukupna površina kuće iznosi 152,97 m², dok ukupna površina s pripacima iznosi 168,47 m². Površina zemljišta iznosi 272 m².
U prizemlju se nalazi dnevni boravak povezan s kuhinjom i blagovaonicom, jedna spavaća soba i kupaonica, dok su na katu smještene dvije spavaće sobe, kupaonica te jedna spavaća soba s vlastitom kupaonicom, uz dvije nenatkrivene terase. Na krovnoj terasi nalazi se kombinacija natkrivenog i nenatkrivenog dijela, kao i bazen sa strojarnicom.
Bazen površine 13,50 m² izveden je u keramici i ima mogućnost grijanja. Kući pripadaju dva parkirna mjesta.
Nekretnina je građena od ciglenog termo bloka, ima PVC stolariju s troslojnim staklom, elektrorolete i komarnike te fasadu od stiropora debljine 10 cm. Podovi su obloženi pločicama, a odvodnja je spojena na kanalizaciju.
U cijeloj kući ugrađeno je podno električno grijanje, a postavljeno je i pet klima uređaja u dnevnom boravku i spavaćim sobama, što omogućuje ugodnu temperaturu tijekom cijele godine.
Planirani završetak gradnje je 2026. godina, a očekivani energetski certifikat je A.
Ova novogradnja predstavlja kvalitetnu nekretninu na mirnoj lokaciji u blizini mora, pogodnu za obiteljsko stanovanje ili boravak tijekom odmora.
Sabunike su malo turističko mjesto idealno za pravi, opuštajući obiteljski odmor. Sabunike su se smjestile pokraj kraljevskog grada Nina i sjeverno od turističkog i ribarskog mjesta Privlake. Iz Sabunika se pruža bajkovit pogled na more, Velebit i grad Nin. Posebno treba istaknuti prekrasne i brojne pješčane plaže s brojnim dodatnim sadržajima.
Sabunike su odlično odredište za kupnju nekretnine uz more , pogodne za odmor i cjelogodišnje stanovanje.
Pogledajte našu kompletnu ponudu nekretnina na prodaju .
Ukoliko ste ovu nekretninu vidjeli negdje drugdje po nižoj cijeni, ista cijena vrijedi i kod nas!
Link na često postavljena pitanja
