Ukoliko ste ovu nekretninu vidjeli negdje drugdje po nižoj cijeni, ista cijena vrijedi i kod nas!
Link na često postavljena pitanja
Ne prikazuje se točna adresa nekretnine
Razgledavanje putem VIDEO POZIVA
NAZOVITE NAS 023 300 000

Na prodaju je moderno dizajnirana luksuzna vila smještena u Preku na otoku Ugljanu. Smještena na mirnoj lokaciji, ova ekskluzivna vila pruža očaravajući panoramski pogled na more i grad Zadar, idealna za one koji traže privatnost i luksuz. Udaljena je svega 515 m od mora i 490 m od centra mjesta. Radi se o novogradnji vrhunskog standarda, savršeno uklopljenoj u mediteransko okruženje s panoramskim pogledom na more.
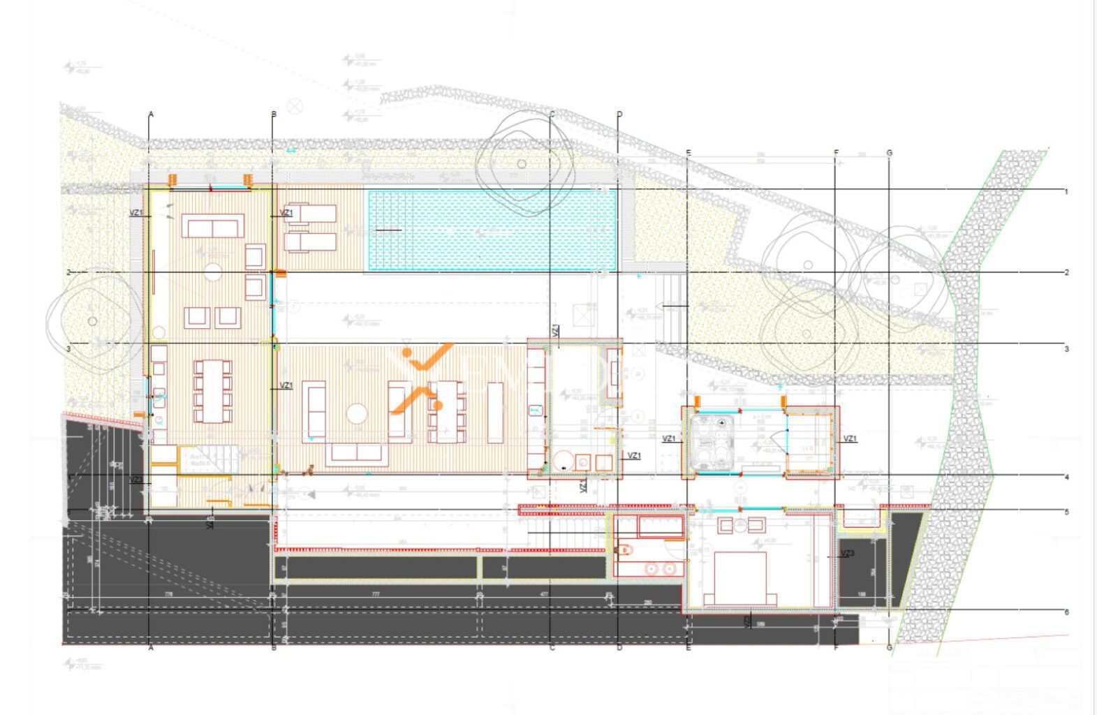
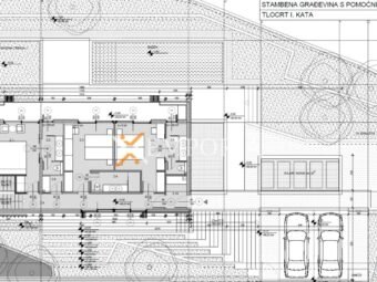
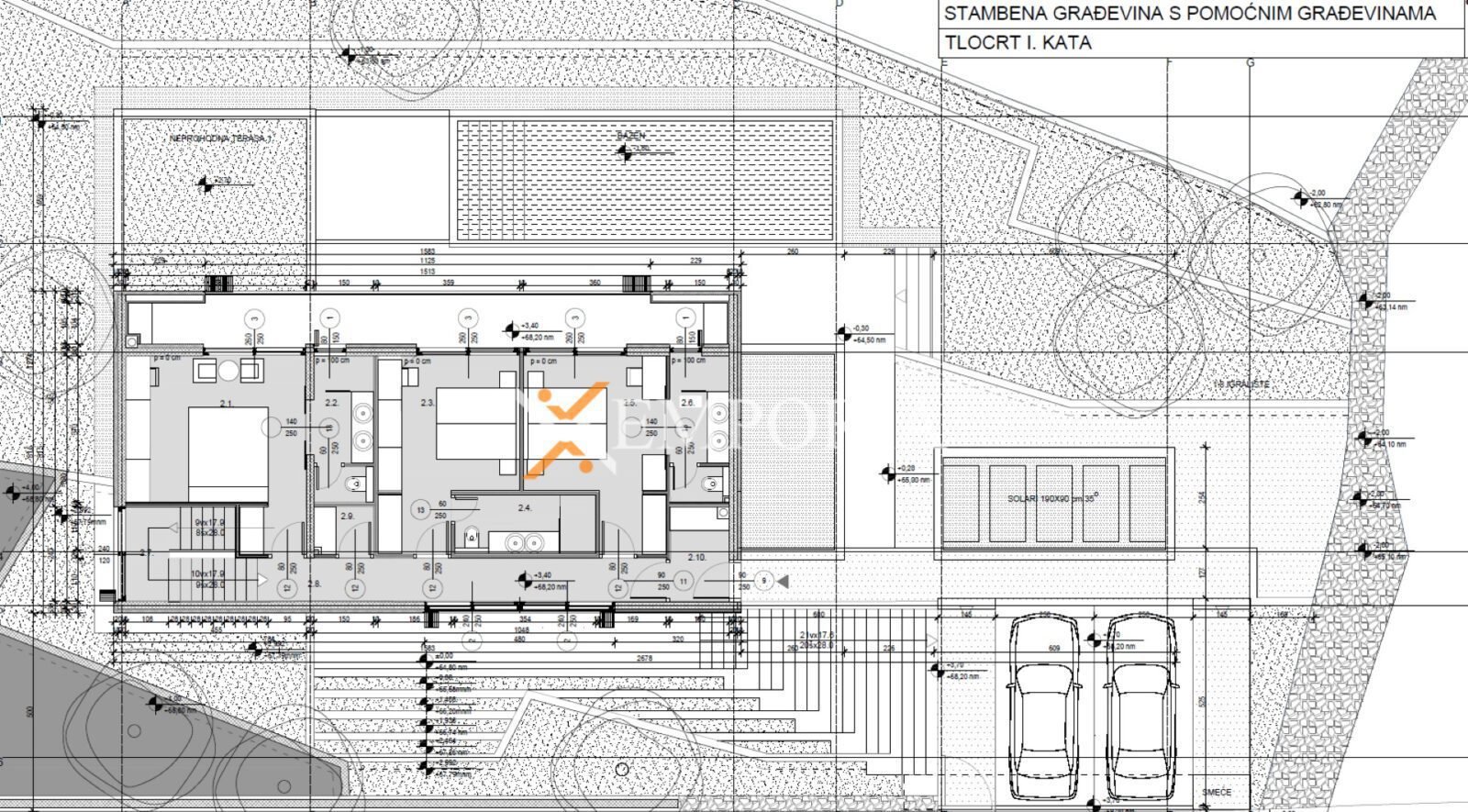
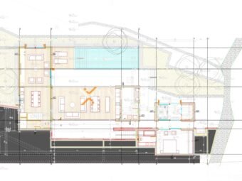
Površina kuće iznosi 329,32 m², a zajedno s bazenom površine 34,94 m², ukupna korisna površina iznosi 364,26 m². Vila je izgrađena na zemljištu od 771 m², od čega će 63 m² pripasti općini prilikom budućeg širenja ceste, čime će zemljište imati konačnih 708 m².
Vila se prostire na dvije etaže:
Kuća je u potpunosti namještena i uređena vrhunskom opremom, s pažljivo biranim materijalima i uređajima visoke klase. Sve je osmišljeno kako bi pružilo maksimalan komfor i luksuz, spremna za useljenje ili korištenje bez dodatnih ulaganja.
Mjesto Preko nalazi se na otoku Ugljan. Smješteno je direkt nasuprot grada Zadra. Trajektno pristanište za otok Ugljan, nalazi se u mjestu Preko te ga to čini važnim transportnim središtem otoka. Vožnja trajektom traje tek 20ak minuta od Zadra do Preka. Na otoku se nalaze restorani, trgovine, škole, marine, apoteke, Hitna pomoć, itd., tako da usprkos tome što ste na otoku imate sve uz neprocjenjivu ljepotu i šarm otoka.
Kompletnu ponudu naših nekretnina na otoku Ugljanu možete vidjeti ovdje.
Više o mjestu pročitajte na linku Preko.
Ukoliko ste ovu nekretninu vidjeli negdje drugdje po nižoj cijeni, ista cijena vrijedi i kod nas!
Link na često postavljena pitanja
