Ukoliko ste ovu nekretninu vidjeli negdje drugdje po nižoj cijeni, ista cijena vrijedi i kod nas!
Link na često postavljena pitanja
Ne prikazuje se točna adresa nekretnine
Razgledavanje putem VIDEO POZIVA
NAZOVITE NAS 023 300 000

Smještena u prestižnom dijelu mjesta Ugljan na otoku Ugljanu, ova vrhunski opremljena novogradnja nudi predivan pogled na more, visoku razinu privatnosti i pristup sadržajima unutar 5★ resorta. More je udaljeno samo 150 m, a centar 2 km. Vlasnicima su na raspolaganju teniski, košarkaški, rukometni i odbojkaški tereni, dva zajednička bazena i razne usluge unutar resorta.
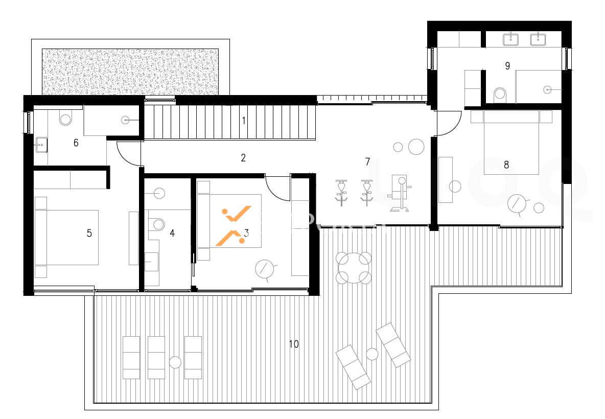
Vila se prostire na dvije etaže – prizemlje i prvi kat – s ukupnom bruto površinom od 376,80 m2, uključujući grijani i hlađeni bazen od 44,20 m2. Nalazi se na velikom zemljištu od čak 1.015 m2.
Raspored
Prizemlje (187,30 m2 bruto) sadrži ulazni prostor, dvije gostinjske kupaonice, prostranu kuhinju s blagovaonicom i dnevnim boravkom, jednu spavaću sobu s vlastitom kupaonicom i garderobom, praonicu i djelomično natkrivenu terasu idealnu za uživanje na otvorenom.
Na prvom katu (145,30 m2 bruto) nalaze se hodnik, tri spavaće sobe – svaka s vlastitom kupaonicom i ugradbenim ormarom – te još jedna djelomično natkrivena terasa s prekrasnim pogledom na more.
Vila dolazi u potpunosti namještena vrhunskim namještajem i vrhunskim kućanskim aparatima. Sve prostorije klimatizirane su stropnim jedinicama, dok kupaonice imaju podno grijanje putem dizalice topline. Bazen sadrži mlaznice, mogućnost grijanja i hlađenja te vanjski tuš.
Vila ima čak 19 ugrađenih zvučnika za savršen audio doživljaj. Prostrani vrt opremljen je automatskim sustavom navodnjavanja. Na krovu se nalaze solarni paneli. Objekt uključuje dva vanjska nenatkrivena parkirna mjesta, privatni asfaltirani prilaz te protuprovalna i protupožarna ulazna vrata. Građena je od betonskih zidova, s aluminijskom stolarijom i izolacijom od kamene vune.
Ne plaća se porez na promet nekretnina.
Energetski certifikat: A+
Godina izgradnje: 2024
Ugljan je najbliži i najizgrađeniji otok zadarskog arhipelaga, nasuprot grada Zadra. Povezan je brojnim trajektnim i katamaranskim linijama čija vožnja traje tek 20 minuta. Na otoku se nalaze restorani, trgovine, škole, marine, apoteke, Hitna pomoć, itd., tako da usprkos tome što ste na otoku imate sve uz neprocjenjivu ljepotu i šarm otoka.
Provjerite ponudu nekretnina na Otoku Ugljanu.
Na istoj lokaciji nudimo i sljedeće vile: H691, H692, H695, H696
Ukoliko ste ovu nekretninu vidjeli negdje drugdje po nižoj cijeni, ista cijena vrijedi i kod nas!
Link na često postavljena pitanja
