Ukoliko ste ovu nekretninu vidjeli negdje drugdje po nižoj cijeni, ista cijena vrijedi i kod nas!
Link na često postavljena pitanja
Ne prikazuje se točna adresa nekretnine
Razgledavanje putem VIDEO POZIVA
NAZOVITE NAS 023 300 000

Prodaje se dvojna kuća s bazenom u Poličniku. Radi se o modernoj novogradnji.
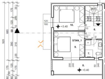
Kuća se sastoji od prizemlja i prvog kata. Raspored prostorija u prizemlju čine hodnik, WC, kuhinja s blagovaonicom i dnevnim boravkom te natkrivena terasa. Unutarnje stepenice vode na prvi kat gdje se nalaze hodnik, kupaonica, dvije spavaće sobe te natkrivena terasa. Površina gore navedenog iznosi 91,51 m2.
Osim toga, kući pripada vrt od 30 m2, bazen od 12 m2 i jedno vanjsko parkirališno mjesto.
Ukupna površina kuće s pripacima je 101,21 m2.
Udaljenost ove nekretnine od mora je 9 km. Udaljenost od centra mjesta je 750 m.
Kuća je u izgradnji, a dovršetak je planiran do kraja 2026. godinu.
Gradnja kuće vrši se ciglenim termo blokom debljine 25 cm. Termoizolacija fasade je 8 cm stiropor.
Podne obloge su pločice i laminat/parket. Prozori su od PVC materijala s roletama i komarnicima. Za grijanje i hlađenje prostorija će biti postavljena tri klima uređaja (dnevni boravak i sobe). Osim toga, podno grijanje će biti postavljeno u kupaonici.
Očekuje se energetski certifikat A.
Poličnik je malo selo smješteno u Zadarskoj županiji u Hrvatskoj. Ovo pitoreskno mjesto se nalazi nedaleko od grada Zadra i karakterizira ga prekrasna priroda, mirna atmosfera i tradicionalni dalmatinski šarm. Ovo je optimalno mjesto za opuštanje i bijeg od užurbanog gradskog života.
Ostalu ponudu naših nekretnina u Općini Poličnik možete vidjeti ovdje.
Ukoliko ste ovu nekretninu vidjeli negdje drugdje po nižoj cijeni, ista cijena vrijedi i kod nas!
Link na često postavljena pitanja
