Ukoliko ste ovu nekretninu vidjeli negdje drugdje po nižoj cijeni, ista cijena vrijedi i kod nas!
Link na često postavljena pitanja
Ne prikazuje se točna adresa nekretnine
Razgledavanje putem VIDEO POZIVA
NAZOVITE NAS 023 300 000

Prodaje se dvojna kuća s bazenom u Poličniku. Radi se o modernoj novogradnji.
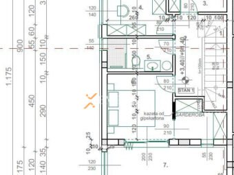
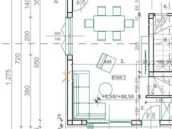
Kuća se sastoji od prizemlja i prvog kata. Raspored prostorija u prizemlju čine ulaz, spremište, wc, kuhinja s blagovaonicom i dnevnim boravkom te dvije natkrivene terase. Unutarnje stepenice vode dalje na prvi kat gdje se nalaze hodnik, kupaonica, dvije spavaće sobe, spavaća soba s garderobom i lođom. Površina gore navedenog iznosi 95,24 m2.
Osim toga, kući pripada bazen od 15 m2, vrt i jedno vanjsko parkirališno mjesto.
Ukupna površina kuće s pripacima je 104,99 m2.
Udaljenost ove nekretnine od mora je 9 km. Udaljenost od centra mjesta je 750 m.
Gradnja kuće vrši se ciglenim termo blokom. Termoizolacija fasade je 8 cm stiropor.
Podne obloge su pločice i laminat/parket. Prozori su od PVC materijala s roletama i komarnicima. Za grijanje i hlađenje prostorija će biti postavljena četiri klima uređaja. Osim toga, podno grijanje u kupaonici.
Očekuje se energetski certifikat A.
Očekivani rok dovršetka je do ljeta 2026.
Poličnik je malo selo smješteno u Zadarskoj županiji u Hrvatskoj. Ovo pitoreskno mjesto se nalazi nedaleko od grada Zadra i karakterizira ga prekrasna priroda, mirna atmosfera i tradicionalni dalmatinski šarm. Ovo je optimalno mjesto za opuštanje i bijeg od užurbanog gradskog života.
Ostalu ponudu naših nekretnina u Općini Poličnik možete vidjeti ovdje.
Ukoliko ste ovu nekretninu vidjeli negdje drugdje po nižoj cijeni, ista cijena vrijedi i kod nas!
Link na često postavljena pitanja
