Ukoliko ste ovu nekretninu vidjeli negdje drugdje po nižoj cijeni, ista cijena vrijedi i kod nas!
Link na često postavljena pitanja
Ne prikazuje se točna adresa nekretnine
Razgledavanje putem VIDEO POZIVA
NAZOVITE NAS 023 300 000

Prodaje se prekrasna kuća s bazenom i ljetnom kuhinjom u Primoštenu. Nalazi se na lijepoj i mirnoj lokaciji s predivnim pogledom na more. Nekretnina je trenutno u izgradnji.
Radi se o izrazito kvalitetnoj i modernoj novogradnji. Raspored prostorija je odličan, a sobe su prostrane i osunčane.
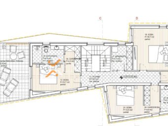
Kuća se sastoji od prizemlja i kata. Raspored prostorija u prizemlju čine garaža, strojarnica, wellness, hodnik, kuhinja s blagovaonicom i dnevnim boravkom. Unutarnje stepenice vode na prvi kat, gdje se nalaze hodnik, spremište te četiri spavaće sobe, svaka s vlastitom kupaonicom i garderobom. Ukupno nekretnina raspolaže s 5 kupaonica. Glavna spavaća soba ima izlaz na prostranu, pergolom natkrivenu terasu površine 22 m2.
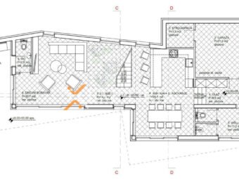
Dodatnu vrijednost nekretnini dati će krovna terasa s panoramskim pogledom na Primošten, opremljena pergolom i priključcima za ljetnu kuhinju.
Dvorište će krasiti zelenilo, grijani bazen od 26 m2 i ljetna kuhinja te dodatni ukopani lounge prostor s mogućnošću postavljanja otvorenog ognjišta.
Ukupna neto korisna površina opisanih prostorija iznosi cca 300 m2. Zemljište je površine 571 m2.
U dvorištu će biti 2 vanjska parkirališna mjesta te parkirališno mjesto u garaži, gdje će se nalaziti i punionica za električne automobile.
Udaljenost ove nekretnine od mora je 300 m, dok je udaljenost od centra Primoštena 750 m.
Kuća je arhitektonski osmišljena kako bi ispunila sve standarde i zahtjeve potrebne za dobivanje kategorizacije s 5 zvjezdica.
Ako tražite savršen dom za odmor ili investiciju, ova nekretnina je pravi izbor za Vas!
Gradnja kuće vrši se ciglenim termoblokom s termoizolacijom fasade 10 cm stiropor. Stolarija je od PVC materijala s podizno kliznim stijenama i električnim roletama. Podovi će biti pločice i parket. Ovisno o vremenu kupnje, mogućnost biranja pločica i parketa. Biti će postavljeni klima uređaji za hlađenje i grijanje prostorija. Osim toga, biti će provedeno podno grijanje bit će izvedeno u cijelom stambenom dijelu objekta putem dizalica topline, a bazen će također biti grijan putem dizalice topline.
Nadalje, biti će postavljeni solarni paneli koji će služiti za zagrijavanje vode.
S obzirom na trenutnu fazu izgradnje, postoji mogućnost izmjene materijala i opreme uz nadoplatu – sukladno Vašim željama!
Primošten je predivan mali gradić smješten na istočnoj obali Jadranskog mora u Hrvatskoj. Poznat je po svojim slikovitim kamenim ulicama, prekrasnim plažama i kristalno čistom moru. Posebno je popularan među turistima zbog svog autentičnog mediteranskog šarma, bogate gastronomske ponude i šarmantnih pansiona i hotela. Također, poznat je po svojim vinogradima i tradicionalnim dalmatinskim festivalima koji se održavaju tijekom ljetnih mjeseci. Primošten je idealno odredište za opuštanje i uživanje u ljepotama prirode i tradiciji Dalmacije.
Više o Zadru i okolici pročitajte na linku Zadar i okolica.
Kompletnu ponudu nekretnina u Zadru – okolica pogledajte ovdje.
Ukoliko ste ovu nekretninu vidjeli negdje drugdje po nižoj cijeni, ista cijena vrijedi i kod nas!
Link na često postavljena pitanja
