Ukoliko ste ovu nekretninu vidjeli negdje drugdje po nižoj cijeni, ista cijena vrijedi i kod nas!
Link na često postavljena pitanja
Ne prikazuje se točna adresa nekretnine
Razgledavanje putem VIDEO POZIVA
NAZOVITE NAS 023 300 000

Prodaje se nova moderna kuća s bazenom i ljetnom kuhinjom u Zatonu. Radi se o novogradnji.
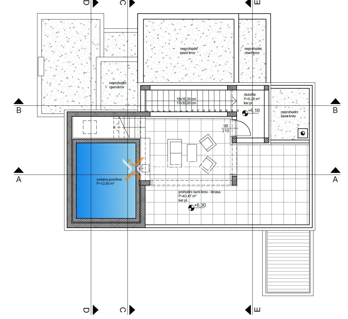
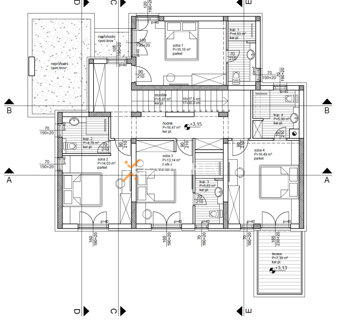
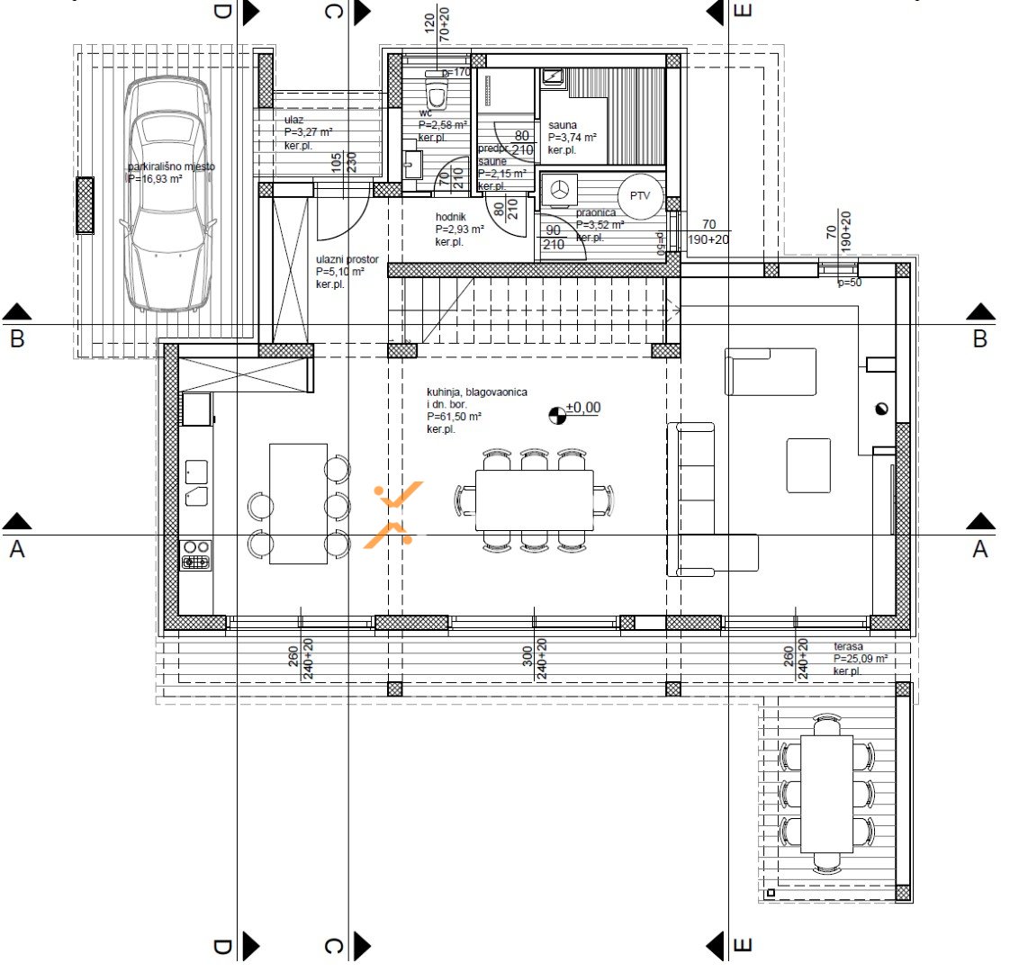
Raspored prostorija čine u prizemlju hodnik, wc, praonica, sauna, kuhinja s blagovaonicom i dnevnim boravkom, terasa i unutarnje stepenice koje vode na prvi kat. Na prvom katu se nalaze hodnik, 4 spavaće sobe, svaka sa svojom kupaonicom, te jedna ima i izlaz na terasu. Unutarnje stepenice vode dalje na krovnu terasu, gdje se nalazi bazen.
Površina kuće iznosi 234,23 m2. Površina zemljišta iznosi 765 m2. U dvorištu je jedno natkriveno i dva nenatkrivena parkirna mjesta.
Udaljenost ove nekretnine od mora je 370 m, dok je udaljenost od centra mjesta 500 m.
Kuća se prodaje kompletno namještena i opremljena.
Gradnja Porotherm ciglenim termo blokom, a ploče, grede i stupovi od armiranog betona. Termoizolacija fasade će biti izvedena s 10 i 15 cm stiropora. PVC prozori s električnim roletama. Prozori su antracit boje izvana, a bijeli s unutrašnje strane. Podne obloge su pločice i parket. Postoji mogućnost odabira podnih obloga, ovisno o fazi kupnje. Grijanje objekta i sanitarne putem dizalica topline. Klima uređaji se nalaze u dnevnom boravku i svim spavaćim sobama. Kuća se oprema video nadzorom.
Dvorište kuće će krasiti bazen i ljetna kuhinja. Bazen s toplinskom pumpom za zagrijavanje vode.
Zaton je malo turističko mjesto idealno za istinski odmor i opuštanje od stresa svakodnevnice. Smješten je između dvaju povijesnih gradova – Nina (2 km) i Zadra (12 km).
Predstavlja jedinstveni spoj dalmatinske arhitekture, ugodne mediteranske klime, očuvane prirode, bogate kulturno povijesne baštine te živahne turističke svakodnevnice.
Pješčane plaže u sjeni stoljetnih borova idealne su za obitelji s djecom. Želite li pronaći mir, kristalno bistro more, čisto podmorje, hlad borovih šuma, nezaboravne zalaske sunca, onda je Zaton idealno mjesto za Vaš odmor.
Kompletnu ponudu naših nekretnina u Zatonu možete pogledati na sljedećem linku: Nekretnine Zaton.
Ukoliko ste ovu nekretninu vidjeli negdje drugdje po nižoj cijeni, ista cijena vrijedi i kod nas!
Link na često postavljena pitanja
