Ukoliko ste ovu nekretninu vidjeli negdje drugdje po nižoj cijeni, ista cijena vrijedi i kod nas!
Link na često postavljena pitanja
Ne prikazuje se točna adresa nekretnine
Razgledavanje putem VIDEO POZIVA
NAZOVITE NAS 023 300 000

Prodaje se nova moderna kuća s bazenom u Privlaci. Iz kuće se pruža prekrasan pogled na more.
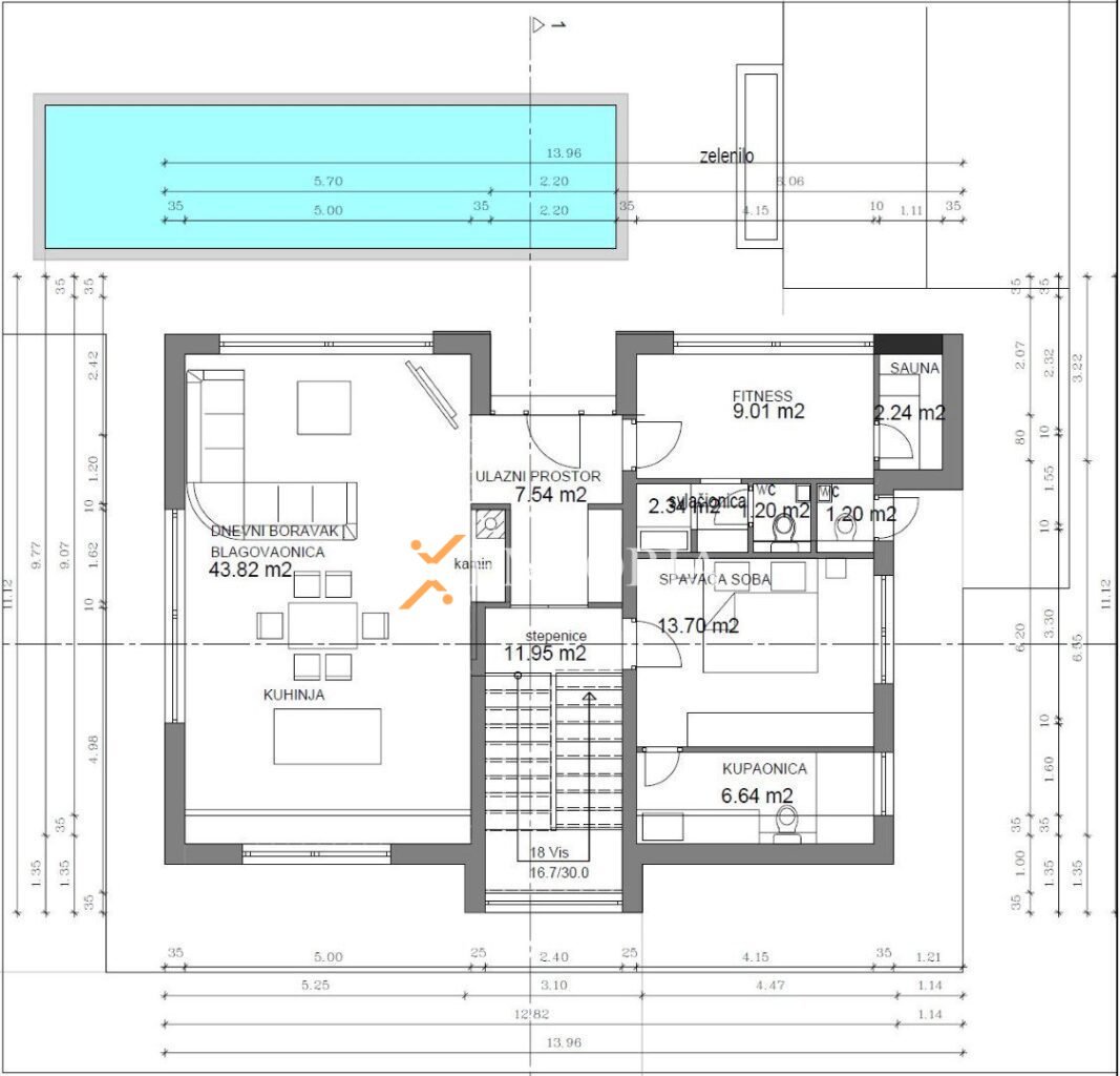
Kuću čine prizemlje i prvi kat. Raspored prostorija čine u prizemlju hodnik, spavaća soba s kupaonicom, kuhinja s blagovaonicom i dnevnim boravkom, dva WC-a, fitness, svlačionica, te prostor za saunu. Unutarnje stepenice vode na prvi kat gdje se nalaze hodnik, 3 spavaće sobe, svaka sa svojom kupaonicom, te terasa, koja je dijelom natkrivena, dijelom nenatkrivena.
Površina gore navedenog iznosi 216,33 m2. Površina zemljišta iznosi 391 m2.
Udaljenost ove nekretnine od mora iznosi samo 130 m, dok je udaljenost od centra mjesta 2,1 km.
Kuća je građena ciglenim termo blokom i odlikuje se kvalitetnom izolacijom s fasadom od 10 cm stiropora. Svi prozori i vrata izrađeni su od PVC stolarije s troslojnim staklom, električnim roletama i ugrađenim komarnicima, što osigurava visoku energetsku učinkovitost i ugodnu mikroklimu tijekom cijele godine. Podovi su obloženi pločicama, a u cijeloj kući postavljeno je podno električno grijanje.
U svakoj prostoriji nalazi se klima uređaj – ukupno pet jedinica, u dnevnom boravku i svim spavaćim sobama. Kuća ima dimnjak i protuprovalna ulazna vrata, dok je odvodnja riješena biopročišćivačem.
U dvorištu je bazen od 17 m2. Kuća ima dva parkirna mjesta.
Završetak izgradnje planiran je za ljeto 2026. godine.
Privlaka je malo ribarsko i turističko mjesto udaljeno samo 15 minuta vožnjom od grada Zadra, smještena na prostranom pješčanom poluotoku između kraljevskog grada Nina i otoka Vira. Čisto more i duge, plitke pješčane uvale stvorene su za opuštanje u potpunosti. Mjesto nudi sav potreban sadržaj za ugodan i kvalitetan život: trgovine, restorane, poštu, ambulantu. Ljubitelji sporta, rekreacije koji se žele okušati u jedrenju ili surfanju pronaći će svoj kutak raja u obližnjim naseljima. Sve što trebate za miran i opuštajući obiteljski odmor u mediteranskom stilu možete ovdje pronaći.
Ponudu nekretnina u Privlaci možete vidjeti ovdje.
Ukoliko ste ovu nekretninu vidjeli negdje drugdje po nižoj cijeni, ista cijena vrijedi i kod nas!
Link na često postavljena pitanja
