Ukoliko ste ovu nekretninu vidjeli negdje drugdje po nižoj cijeni, ista cijena vrijedi i kod nas!
Link na često postavljena pitanja
Ne prikazuje se točna adresa nekretnine
Razgledavanje putem VIDEO POZIVA
NAZOVITE NAS 023 300 000

Prodaje se kuća s bazenom u predjelu Sabunika, Privlaka. Radi se o novogradnji.
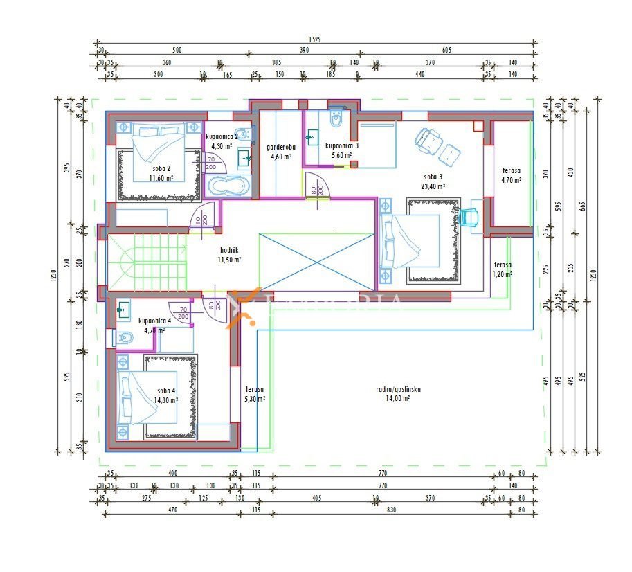
Kuću čini prizemlje i 1. kat. Prizemlje čine hodnik, kupaonica, dnevni boravak, kuhinja i blagovaonica, spavaća soba, ostava s ulazom izvana, spavaća soba s natkrivenom terasom. Dvorište krasi bazen (28 m2) s predviđenom ljetnom kuhinjom i kominom. Unutarnje stepenice vode na 1. kat. Na gornjoj etaži su
hodnik, spavaća soba s kupaonicom, spavaća soba s kupaonicom i terasom te spavaća soba s kupaonicom i garderobom i terasom.
Ukupna korisna površina kuće s bazenom iznosi 224,6 m2. U dvorištu su dva parkirališna mjesta. Površina zemljišta je 450 m2.
Kuća je udaljena 280 m od mora. Udaljenost od centra Privlake je 2,6 km.
Gradnja ciglenim termo blokom. Termoizolacija fasade 10 cm stiropor. Podne obloge su parket i pločice. PVC prozori s roletama i komarnicima. Na staklenoj stijeni su električne rolete. Centralno grijanje na peć na pelete. Osim toga električno podno grijanje u kupaonici. Nadalje, ulazna vrata kuće su protuprovalna i protuprovalna.
Priprema za grijanje bazena. Pokraj bazena vanjska ljetna kuhinja s roštiljem i vanjskim tušem.
Sabunike su malo turističko mjesto idealno za pravi, opuštajući obiteljski odmor. Sabunike su se smjestile pokraj kraljevskog grada Nina i sjeverno od turističkog i ribarskog mjesta Privlake. Iz Sabunika se pruža bajkovit pogled na more, Velebit i grad Nin. Posebno treba istaknuti prekrasne i brojne pješčane plaže s brojnim dodatnim sadržajima.
Ponudu nekretnina u Privlaci možete vidjeti ovdje.
Ukoliko ste ovu nekretninu vidjeli negdje drugdje po nižoj cijeni, ista cijena vrijedi i kod nas!
Link na često postavljena pitanja
