Ukoliko ste ovu nekretninu vidjeli negdje drugdje po nižoj cijeni, ista cijena vrijedi i kod nas!
Link na često postavljena pitanja
Ne prikazuje se točna adresa nekretnine
Razgledavanje putem VIDEO POZIVA
NAZOVITE NAS 023 300 000

Moderan apartman u prizemlju novogradnje u Petrčanima, smješten u drugom redu od mora, svega 30 m udaljen od obale, dok je centar mjesta na 500 m. Ova nekretnina predstavlja izvrsnu priliku za miran život ili turistički najam, a dodatno se ističe privatnim vrtom i bazenom.
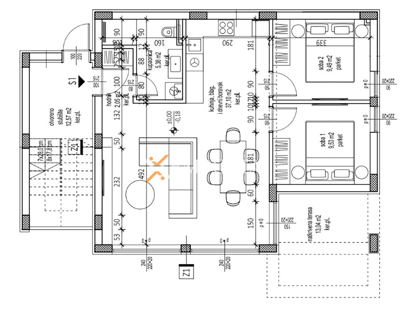
Apartman se sastoji od hodnika, dvije spavaće sobe, kupaonice, kuhinje s blagovaonicom i dnevnim boravkom te natkrivene terase. Neto korisna površina unutarnjeg dijela iznosi 70,07 m2. Nadalje, nekretnini pripada prostrani vrt površine 101,53 m2 s bazenom površine 30,40 m2, što dodatno podiže kvalitetu boravka i privatnosti. Ukupna neto površina s pripacima iznosi 101,48 m2.
Dodatno, apartmanu pripadaju dva parkirna mjesta, od kojih je jedno natkriveno, a drugo nenatkriveno. Planirani završetak gradnje je do kraja 2026. godine, dok se očekuje energetski certifikat A.
Postoji mogućnost kupnje veza za brod.
Gradnja se izvodi kvalitetnim ciglenim termo blokom, dok je fasada izolirana stiroporom debljine 10 cm. Ugrađena je aluminijska stolarija s troslojnim staklom, električnim roletama i komarnicima. Podne obloge čine kombinacija pločica i parketa, dok su ulazna vrata protuprovalna i protupožarna. Kuhinja je uključena u cijenu, što dodatno olakšava useljenje.
Ova nekretnina nudi odličan spoj moderne gradnje, atraktivne lokacije i funkcionalnog rasporeda, što je čini idealnim izborom za život ili investiciju.
Petrčane su malo mjesto smješteno između gradova Zadra i Nina. Mjesto Petrčane poznato je po ekskluzivnim vilama, hotelskom smještaju, te bogatoj gastronomskoj ponudi čime je i turizam na zavidnoj razini. U zelenoj šumici na Radmanovoj punti razvilo se hotelsko naselje Pinija, a s druge, sjeverozapadne strane mjesta razvilo se vikend naselje i hotelsko-apartmanski kompleks Punta Skala.
Otkrijte zašto su Petrčane atraktivna lokacija za kupnju nekretnina.
Pogledajte našu kompletnu ponudu nekretnina na prodaju .
Ukoliko ste ovu nekretninu vidjeli negdje drugdje po nižoj cijeni, ista cijena vrijedi i kod nas!
Link na često postavljena pitanja
