Ukoliko ste ovu nekretninu vidjeli negdje drugdje po nižoj cijeni, ista cijena vrijedi i kod nas!
Link na često postavljena pitanja
Ne prikazuje se točna adresa nekretnine
Razgledavanje putem VIDEO POZIVA
NAZOVITE NAS 023 300 000

Na prodaju je moderan apartman u novogradnji smješten na atraktivnoj lokaciji u Sukošanu, svega 200 m od mora i 1,4 km od centra mjesta. Ova nekretnina savršena je za one koji traže udoban dom ili investiciju blizu mora, u mirnom okruženju s modernom arhitekturom i visokim standardom gradnje.
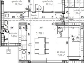
Apartman se nalazi u prizemlju zgrade i obuhvaća 68,53 m² neto korisne površine. Raspored prostorija čine hodnik, dvije spavaće sobe, kupaonica, kuhinja s blagovaonicom i dnevnim boravkom te natkrivena terasa.
Stanu pripada vrt površine cca 50 m², koji pruža dodatni prostor za opuštanje i boravak na otvorenom, te dva parkirna mjesta.
Ukupna neto površina s pripacima iznosi 79,03 m².
Kupac ne plaća porez na promet nekretnina.
Ovaj apartman odlikuje se vrhunskom gradnjom i modernom opremom.
Zidovi su izvedeni od ciglenog termo bloka, a fasada je obložena stiropor izolacijom debljine 10 cm, što osigurava izvrsnu toplinsku i zvučnu izolaciju.
Stan ima podno električno grijanje u cijelom prostoru i tri klima uređaja – u dnevnom boravku i obje spavaće sobe.
Prozori su PVC s troslojnim staklom, opremljeni električnim roletama i komarnicima.
Podovi su kombinacija parketa i pločica, a ulazna vrata su protuprovalna i protupožarna.
Zgrada ima ravni betonski krov i biopročišćivač za odvodnju, a pristup je osiguran javnim asfaltiranim putem.
Završetak gradnje planiran je za 2026. godinu, a očekivani energetski certifikat je A, što jamči visoku energetsku učinkovitost i niske troškove održavanja.
Sukošan je šarmantno dalmatinsko mjesto smješteno u prostranom zaljevu Zlatna luka, svega 7 km od Zadra. Sa svojih približno 3.000 stanovnika i pripadajućim mjestima Debeljak, Glavica i Gorica, nudi miran mediteranski ambijent uz izvrsnu prometnu povezanost. Središnja atrakcija mjesta je D-Marin marina Dalmacija – najveća marina na Jadranu – koja Sukošan čini pravim rajem za nautičare i ljubitelje mora.
Posebnu privlačnost daju brojne plaže poput popularnog Dječjeg raja, mirnije plaže Podvare ili šljunčane Makarske, a tu su i skrivene uvale koje čekaju da ih otkrijete. Uživanje u kupanju, jedrenju i šetnjama uz more upotpunjuje bogat društveni i kulturni život. Tijekom ljeta održavaju se ribarske feštice, koncerti, folklorne večeri te blagdan sv. Kasijana s vatrometom i procesijama. Ljubitelje sporta privlače plivački maraton, turniri na male branke i poznata regata “Ples sa jedrima”.
Zahvaljujući spoju netaknute prirode, vrhunske nautičke infrastrukture i bogatog programa događanja, Sukošan je jedno od najpoželjnijih mjesta za kupnju nekretnine na Jadranu – bilo da tražite miran dom uz more ili atraktivnu investiciju s visokim potencijalom za turistički najam.
Pogledajte kompletnu ponudu naših nekretnina u Sukošanu.
Ako tražite nekretninu na moru, mjesto Sukošan je pravi izbor za vas!
U istoj zgradi prodajemo i sljedeću nekretninu A1544.
Ukoliko ste ovu nekretninu vidjeli negdje drugdje po nižoj cijeni, ista cijena vrijedi i kod nas!
Link na često postavljena pitanja
