Ukoliko ste ovu nekretninu vidjeli negdje drugdje po nižoj cijeni, ista cijena vrijedi i kod nas!
Link na često postavljena pitanja
Ne prikazuje se točna adresa nekretnine
Razgledavanje putem VIDEO POZIVA
NAZOVITE NAS 023 300 000

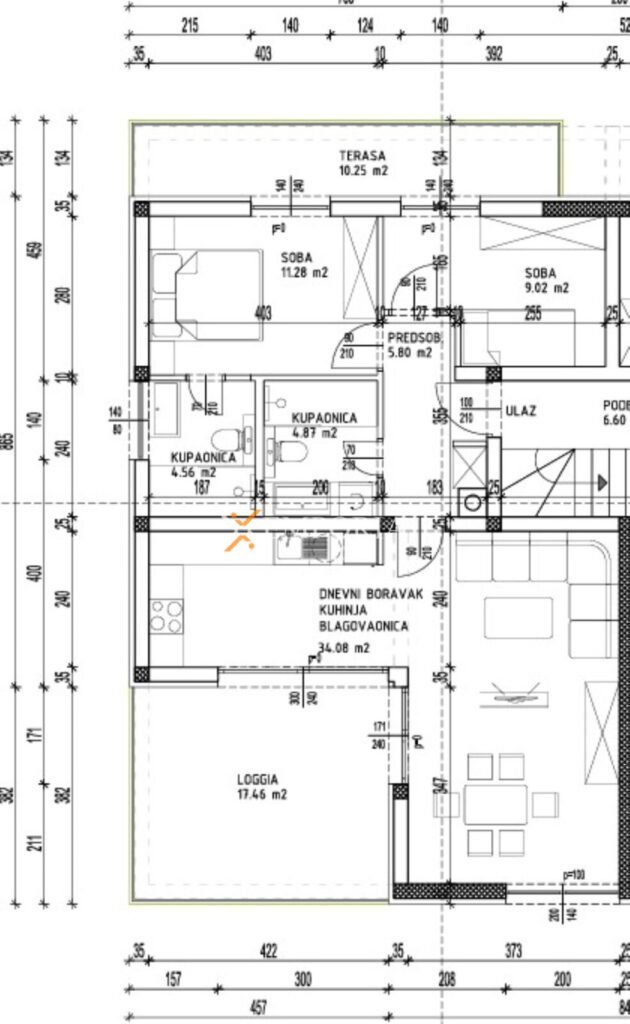
Na prodaju je moderan apartman u Pakoštanima, udaljen svega 520 m od mora i 650 m od centra mjesta. Nalazi se na drugom katu novogradnje čiji je završetak planiran za 2026. godinu. Ukupna neto površina s pripacima iznosi 115,70 m², dok stambeni dio zauzima 113,20 m². Posebnu vrijednost ovoj nekretnini daju velika krovna terasa površine 101,49 m² te mirna lokacija.
Raspored prostorija uključuje hodnik, spavaću sobu, dodatnu spavaću sobu s vlastitom kupaonicom, još jednu kupaonicu te kuhinju s blagovaonicom i dnevnim boravkom. Iz dnevnog prostora izlazi se na lođu, dok sobe imaju izlaz na natkrivenu terasu. Iz stubišta se penje na prostranu krovnu terasu, idealnu za odmor i druženja. Apartmanu pripada i jedno parkirno mjesto.
Prilikom kupnje ne plaća se porez na promet nekretnina.
Nekretnina je građena od ciglenog termo bloka s fasadom od 10 cm stiropora. Prozori su PVC s troslojnim staklima, električnim roletama i komarnicima. Podovi su izvedeni u kombinaciji pločica i parketa, dok su ulazna vrata protuprovalna i protupožarna. Električno podno grijanje postavljeno je u cijelom stanu, a tri klima uređaja – u dnevnom boravku i spavaćim sobama – osiguravaju dodatnu udobnost. Apartman ima dimnjak, priključen je na kanalizaciju, a krov je nov, ravan i betonski. Očekivani energetski certifikat je A. Ovaj apartman predstavlja izvrsnu priliku za luksuzan i udoban život ili kao investicija u atraktivnoj lokaciji blizu mora i centra mjesta.
Pakoštane je prekrasno dalmatinsko mjesto smješteno u samom središtu jadranske obale i jedinstvenom položaju između mora i Vranskog jezera. Pakoštane nude sve što je potrebno u svakodnevici (trgovine, liječnik, ljekarna, pošta, škola itd.), a savršena su destinacija za godišnji odmor. Četiri nacionalna parka Kornati, Krka, Paklenica i Plitvička jezera te dva parka prirode Telašćica i Vransko jezero jedinstvene su ljepote koje okružuju Pakoštane.
Više informacija o lokaciji možete pronaći na poveznici Zadar i okolica.
Sve apartmane iz naše ponude možete pronaći ovdje.
Zgrada se sastoji od ukupno 6 apartmana. Sljedeći su još dostupni: A1523, A1524, A1525, A1527.
Ukoliko ste ovu nekretninu vidjeli negdje drugdje po nižoj cijeni, ista cijena vrijedi i kod nas!
Link na često postavljena pitanja
