Ukoliko ste ovu nekretninu vidjeli negdje drugdje po nižoj cijeni, ista cijena vrijedi i kod nas!
Link na često postavljena pitanja
Ne prikazuje se točna adresa nekretnine
Razgledavanje putem VIDEO POZIVA
NAZOVITE NAS 023 300 000

Prodaje se luksuzni stan na 1. katu moderne zgrade na top lokaciji – 1. red do mora u Sukošanu. Iz stana se pruža odličan pogled na more.
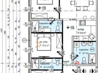
Radi se o stanu na 1. katu zgrade. Raspored prostorija čine hodnik, spavaća soba, dvije spavaće sobe s kupaonicama, kupaonica, kuhinja s blagovaonicom i dnevnim boravkom, natkrivena terasa te još jedna natkrivena terasa na kojoj je bazen površine 15,10 m2. Ukupna neto površina opisanih prostorija iznosi 124,27 m2.
Osim toga, stanu pripadaju dva vanjska parkirališna mjesta.
Ukupna neto korisna površina stana s pripacima iznosi 135,62 m2.
Zgrada je u izgradnji, dovršetak je predviđen za 2026. godinu.
Udaljenost ove nekretnine od centra mjesta iznosi 150 m.
Zgrada će imati lift.
Gradnja zgrade vrši se betonskim zidom. Termoizolacija fasade je stiropor debljine 10 cm.
Podne obloge su pločice. Prozori su aluminijski s troslojnim staklom, električnim roletama i komarnicima. Stan će biti opremljen podnim električnim grijanjem u cijelom stanu. Osim toga, u dnevnom boravku i u spavaćim sobama će biti postavljeni klima uređaji. Nadalje, ulazna vrata stana će biti protuprovalna i protupožarna.
Zgrada će biti spojena na kompletnu infrastrukturu.
Za ovu nekretninu očekuje se energetski certifikat A.
Sukošan je turističko mjesto smješteno u prostranom zaljevu Zlatna luka. Od grada Zadra Sukošan je udaljen samo 7 km. Sjedište je općine Sukošan, kojoj pripadaju i mjesta Debeljak, Glavica i Gorica. Samo mjesto broji oko 3000 stanovnika. Zahvaljujući najvećoj marini na Jadranu, D-Marin marina Dalmacija, pravi je raj za nautičare. Brojni luksuzno uređeni apartmani, pansioni i hoteli, a i brojni kampovi smješteni u neposrednoj blizini mora čine Sukošan omiljenim odredištem domaćih i stranih turista.
Kompletnu ponudu naših nekretnina u Sukošanu možete vidjeti ovdje.
Zgrada se sastoji od ukupno 6 apartmana. U ponudi su još uvijek: A1438, A1439, A1441, A1442, A1443.
Ukoliko ste ovu nekretninu vidjeli negdje drugdje po nižoj cijeni, ista cijena vrijedi i kod nas!
Link na često postavljena pitanja
