Ukoliko ste ovu nekretninu vidjeli negdje drugdje po nižoj cijeni, ista cijena vrijedi i kod nas!
Link na često postavljena pitanja
Ne prikazuje se točna adresa nekretnine
Razgledavanje putem VIDEO POZIVA
NAZOVITE NAS 023 300 000

Prodaje se novi apartman s bazenom u Privlaci. Nalazi se svega 65 m od mora i plaže.
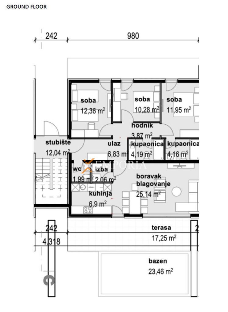
Smješten je u prizemlju zgrade. Raspored prostorija čine ulaz, wc, hodnik, 3 spavaće sobe, 2 kupaonice, kuhinja, izba, blagovaonica i dnevni boravak te terasa. Površina opisanih prostorija iznosi 94,04 m2. Osim toga apartmanu pripada vrt sa spa bazenom od 23,46 m2. Apartman ima i dva vlastita vanjska parkirališna mjesta.
Ukupna neto korisna površina apartmana sa svim pripacima iznosi 126 m2.
Udaljenost od centra 1,9 km.
Zgrada je u izgradnji, a useljenje je previđeno na ljeto 2025. U zgradi je ukupno 5 stambenih jedinica. Gradnja se vrši betonskim zidom. Termoizolacija fasade je 10 cm stiropor.
Podne obloge su pločice. Prozori su aluminijski s troslojnim staklom. Prozorski kapci su klizni i zaokretni. Ukupno 4 klima uređaja u stanu. Po jedan uređaj u dnevnom boravku i po jedan u svakoj spavaćoj sobi. Zgrada također ima dimnjak. Ulazna vrata su protuprovalna i protupožarna.
Privlaka je malo ribarsko i turističko mjesto udaljeno samo 15 minuta vožnjom od grada Zadra, smještena na prostranom pješčanom poluotoku između kraljevskog grada Nina i otoka Vira. Čisto more i duge, plitke pješčane uvale stvorene su za opuštanje u potpunosti. Mjesto nudi sav potreban sadržaj za ugodan i kvalitetan život: trgovine, restorane, poštu, ambulantu. Ljubitelji sporta, rekreacije koji se žele okušati u jedrenju ili surfanju pronaći će svoj kutak raja u obližnjim naseljima. Sve što trebate za miran i opuštajući obiteljski odmor u mediteranskom stilu možete ovdje pronaći.
Ponudu nekretnina u Privlaci možete vidjeti ovdje.
Ukoliko ste ovu nekretninu vidjeli negdje drugdje po nižoj cijeni, ista cijena vrijedi i kod nas!
Link na često postavljena pitanja
