Ukoliko ste ovu nekretninu vidjeli negdje drugdje po nižoj cijeni, ista cijena vrijedi i kod nas!
Link na često postavljena pitanja
Ne prikazuje se točna adresa nekretnine
Razgledavanje putem VIDEO POZIVA
NAZOVITE NAS 023 300 000

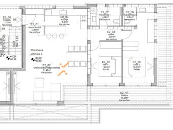
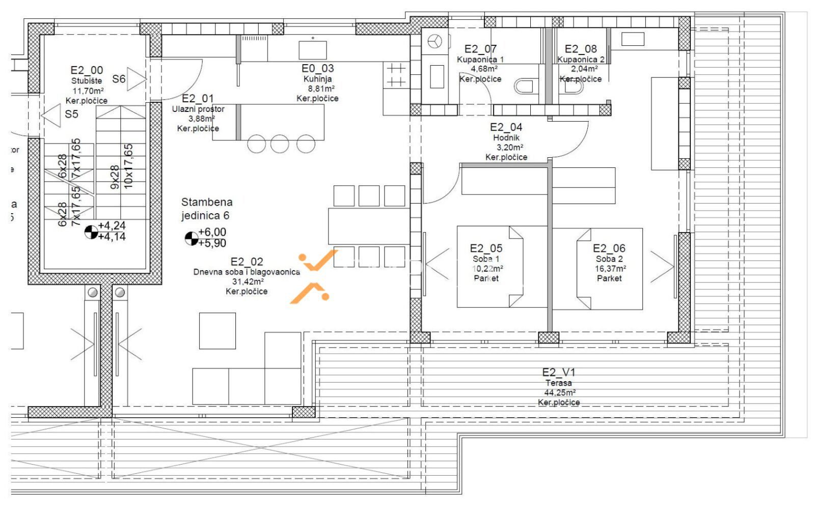
Prodaje se apartman na 2. katu zgrade. Radi se o novogradnji u Privlaci. Nalazi se u 2. redu do mora. Ima predivan pogled na more. Raspored prostorija čine hodnik, 2 spavaće sobe, 2 kupaonice, kuhinja s blagovaonicom i dnevnim boravkom te terasa. Dodatno apartman ima i krovnu terasu. Neto korisna površina opisanih prostorija iznosi 119,66 m2.
Apartman ima dva parkirna mjesta. Ukupna neto površina sa svim pripacima iznosi 124,66 m2.
Od mora je ova nekretnina udaljena samo 65 m, a od centra Privlake 2,2 km.
Ističemo prednost prilikom kupnje ove nekretnine: Kupac ne plaća porez na promet nekretninama.
Gradnja ciglenim termo blokom. Termoizolacija fasade 10 cm stiropor. Podne obloge su pločice i laminat. PVC prozori s električnim roletama i komarnicima. U stanu su 4 klima uređaja. Jedan klima uređaj je u dnevnom boravku, a ostala tri su u spavaćim sobama. Podno grijanje svugdje osim spavaćih soba. Nadalje, ulazna vrata su protuprovalna i protupožarna.
Privlaka je malo ribarsko i turističko mjesto udaljeno samo 15 minuta vožnjom od grada Zadra, smještena na prostranom pješčanom poluotoku između kraljevskog grada Nina i otoka Vira. Čisto more i duge, plitke pješčane uvale stvorene su za opuštanje u potpunosti. Mjesto nudi sav potreban sadržaj za ugodan i kvalitetan život: trgovine, restorane, poštu, ambulantu. Ljubitelji sporta, rekreacije koji se žele okušati u jedrenju ili surfanju pronaći će svoj kutak raja u obližnjim naseljima. Sve što trebate za miran i opuštajući obiteljski odmor u mediteranskom stilu možete ovdje pronaći.
Ponudu nekretnina u Privlaci možete vidjeti ovdje.
Ukoliko ste ovu nekretninu vidjeli negdje drugdje po nižoj cijeni, ista cijena vrijedi i kod nas!
Link na često postavljena pitanja
