Ukoliko ste ovu nekretninu vidjeli negdje drugdje po nižoj cijeni, ista cijena vrijedi i kod nas!
Link na često postavljena pitanja
Ne prikazuje se točna adresa nekretnine
Razgledavanje putem VIDEO POZIVA
NAZOVITE NAS 023 300 000

Prodaje se penthouse apartman samo 35 m od mora u Zatonu. Radi se o novogradnji s liftom u 2. redu do mora u Zatonu kod Zadra. Apartman ima lijep pogled na more.
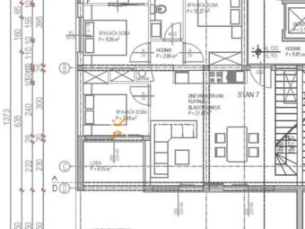
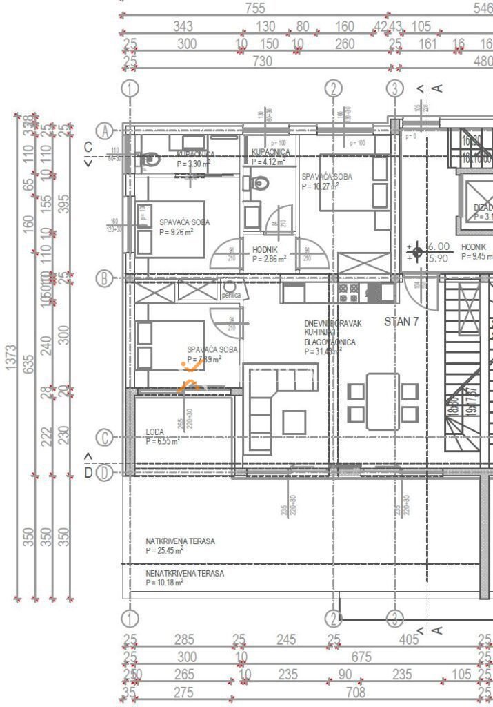
Ovo je stan na drugom katu. Raspored prostorija čine hodnik, 2 spavaće sobe, spavaća soba s kupaonicom, kupaonica, kuhinja s blagovaonicom i dnevnim boravkom te dijelom natkrivena terasa. Iz stana se dolazi direktno na krovnu terasu koja pripada ovom stanu. Površina krovne terase iznosi 102,32 m2. Na terasi je bazen od 15,30 m2. Neto korisna površina opisanih prostorija s terasama iznosi 130,05 m2. Dodatno apartmanu pripadaju dva parkirališna mjesta.
Ukupna neto površina apartmana sa svim pripacima iznosi 135,77 m2.
Prilikom kupnje ove nekretnine kupac ne plaća porez na promet nekretnina.
Ova nekretnina je od centra mjesta Zaton udaljena svega 700 m, a grad Zadar je udaljen oko 12 km.
Gradnja ciglenim termo blokom. Termoizolacija fasade 10 cm stiropor. Podne obloge su pločice i parketi. Aluminijski prozori s troslojnim staklom, komarnicima te električnim roletama i žaluzinama. Klima uređaji su u dnevnom boravku i svakoj spavaćoj sobi. Osim toga, podno grijanje preko dizalica topline u cijelom stanu. Nadalje, ulazna vrata su protuprovalna i protupožarna. Ovom apartmanu pripada vanjski tuš u dvorištu zgrade.
Bazen s grijanjem. Obloga bazena mozaik.
Za ovu nekretninu se očekuje energetski certifikat A.
Zaton je malo turističko mjesto idealno za istinski odmor i opuštanje od stresa svakodnevnice. Smješten je između dvaju povijesnih gradova – Nina (2 km) i Zadra (12 km).
Predstavlja jedinstveni spoj dalmatinske arhitekture, ugodne mediteranske klime, očuvane prirode, bogate kulturno povijesne baštine te živahne turističke svakodnevnice.
Pješčane plaže u sjeni stoljetnih borova idealne su za obitelji s djecom. Želite li pronaći mir, kristalno bistro more, čisto podmorje, hlad borovih šuma, nezaboravne zalaske sunca, onda je Zaton idealno mjesto za Vaš odmor.
U Zatonu u ponudi imamo sljedeće nekretnine – vidi ovdje.
Ukoliko ste ovu nekretninu vidjeli negdje drugdje po nižoj cijeni, ista cijena vrijedi i kod nas!
Link na često postavljena pitanja
