Ova nekretnina više nije dostupna!
Stan u prizemlju, Zadar – Borik, 45,27 m²
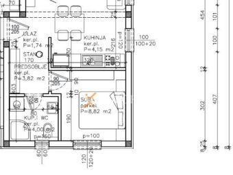
Na prodaju je stan smješten u atraktivnom dijelu Zadra – Boriku, udaljen svega 650 m od mora i 2,2 km od gradskog centra. Ukupna neto površina stana s pripadcima iznosi 45,27 m².
Stan se sastoji od hodnika, spavaće sobe, kupaonice te kuhinje s blagovaonicom i dnevnim boravkom. Uz stan dolazi i spremište u podrumu površine 13,76 m² (6,89 m² neto), kao i jedno parkirno mjesto.
Oprema
Stan je opremljen podnim električnim grijanjem u svim prostorijama te ima dvije klima jedinice – jednu u dnevnom boravku i jednu u spavaćoj sobi. Stolarija je PVC s troslojnim staklom, električnim roletama i komarnicima. Podovi su kombinacija pločica i parketa. Ulazna vrata su protuprovalna i protupožarna. Zgrada je građena od ciglenog termo bloka, a fasada je izolirana stiroporom debljine 10 cm. Objekt je priključen na kanalizaciju, a krov je ravan i betonski. Završetak izgradnje planiran je za 2026. godinu.
Za ovu nekretninu ne plaća se porez na promet nekretnina, a očekivani energetski certifikat je razreda A.
Lokacija
Ovaj dio grada, Borik, poznat je po pješčanim i šljunčanim plažama koje su uređene i opremljene dodatnim sadržajima za zabavu i rekreaciju, a u naselju se nalaze i sportski tereni.
Borik je odredište koje zbog lijepih i lako dostupnih kupališta preporučujemo obiteljima s djecom, a raznovrsnost sportskih sadržaja u mjestu i okolici te blizina centra Zadra, Poluotoka, čine ga zanimljivim mladima i ljubiteljima aktivnog odmora. Odlično je povezan dio grada linijama gradskog prijevoza, ima odlične restorane, kafiće, noćne klubove i parkove za djecu.
Više o mjestu pročitajte na linku Zadar.
Kompletnu ponudu naših nekretnina u Zadru možete vidjeti ovdje.
U istoj zgradi u ponudi su još: F1258, F1260, F1261.