Ukoliko ste ovu nekretninu vidjeli negdje drugdje po nižoj cijeni, ista cijena vrijedi i kod nas!
Link na često postavljena pitanja
Ne prikazuje se točna adresa nekretnine
Razgledavanje putem VIDEO POZIVA
NAZOVITE NAS 023 300 000

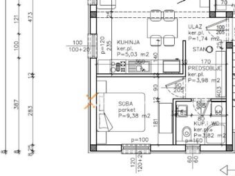
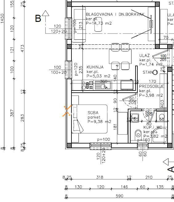
Na prodaju je stan u atraktivnom dijelu Zadra – Boriku, udaljen svega 650 m od mora i 2,2 km od gradskog centra. Smješten je u modernoj stambenoj zgradi, a ukupna neto površina sa svim pripadcima iznosi 46,86 m².
Stan se sastoji od hodnika, spavaće sobe, kupaonice te kuhinje s blagovaonicom i dnevnim boravkom. Uz stan dolazi i pripadajuće parkirno mjesto te spremište površine 10,86 m² u podrumu zgrade (4,86 m² neto).
Stan ima podno električno grijanje u cijelom prostoru te dvije klima jedinice – jednu u dnevnom boravku i jednu u spavaćoj sobi. Stolarija je PVC s troslojnim staklom, električnim roletama i komarnicima. Podovi su obloženi kombinacijom pločica i parketa. Ulazna vrata su protuprovalna i protupožarna. Zgrada je građena ciglenim termo blokom, s fasadom izoliranom stiroporom debljine 10 cm. Objekt je priključen na kanalizaciju, a završetak izgradnje planiran je za 2026. godinu.
Za ovu nekretninu ne plaća se porez na promet nekretnina, a predviđeni energetski certifikat je razreda A.
Ovaj dio grada, Borik, poznat je po pješčanim i šljunčanim plažama koje su uređene i opremljene dodatnim sadržajima za zabavu i rekreaciju, a u naselju se nalaze i sportski tereni.
Borik je odredište koje zbog lijepih i lako dostupnih kupališta preporučujemo obiteljima s djecom, a raznovrsnost sportskih sadržaja u mjestu i okolici te blizina centra Zadra, Poluotoka, čine ga zanimljivim mladima i ljubiteljima aktivnog odmora. Odlično je povezan dio grada linijama gradskog prijevoza, ima odlične restorane, kafiće, noćne klubove i parkove za djecu.
Više o mjestu pročitajte na linku Zadar.
Kompletnu ponudu naših nekretnina u Zadru možete vidjeti ovdje.
Ukoliko ste ovu nekretninu vidjeli negdje drugdje po nižoj cijeni, ista cijena vrijedi i kod nas!
Link na često postavljena pitanja
