Ukoliko ste ovu nekretninu vidjeli negdje drugdje po nižoj cijeni, ista cijena vrijedi i kod nas!
Link na često postavljena pitanja
Ne prikazuje se točna adresa nekretnine
Razgledavanje putem VIDEO POZIVA
NAZOVITE NAS 023 300 000

Na prodaju je kuća smještena u Pridrazi, na mirnoj lokaciji pogodnoj za obiteljski život ili odmor. Nekretnina ima djelomičan pogled na more, dok je udaljenost od mora 750 m, a od centra mjesta 1.600 m.
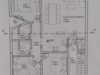
Riječ je o samostojećoj kući s jednom stambenom jedinicom, izvedenoj kao prizemnica. Ukupna stambena površina iznosi 87,01 m². Prizemlje se sastoji od ulazne lođe, dnevnog boravka povezanog s kuhinjom i blagovaonicom, tri spavaće sobe te dvije kupaonice. Ispod stepenica se nalazi spremište površine 1,53 m², dok se ispred kuće nalazi natkrivena terasa, idealna za boravak na otvorenom.
Kuća je smještena na zemljištu površine 389 m². Okućnica je uređena i opremljena sustavom navodnjavanja, a u dvorištu se nalazi i dodatna vrtna kućica. Nekretnini pripadaju četiri parkirna mjesta, što osigurava visoku razinu praktičnosti.
Kuća se prodaje namještena. Grijanje je riješeno centralnim sustavom na pelete, dok su ugrađene četiri klima jedinice u dnevnom boravku i spavaćim sobama. Objekt je građen od ciglenog bloka te ima PVC stolariju s komarnicima i griljama. Fasada je toplinski izolirana stiroporom debljine 10 cm. Podovi su obloženi pločicama, a kuća ima dimnjak.
Godina izgradnje je 2009., dok je 2021. godine provedena renovacija koja je obuhvatila zamjenu prozora i grilja, ulaznih vrata te obnovu fasade. Ova nekretnina predstavlja funkcionalan i kvalitetan dom s lijepo uređenom okućnicom i djelomičnim pogledom na more, u stabilnom i ugodnom okruženju.
Pridraga je mjesto u sastavu Općine Novigrad smještena na poluotoku između Novigradskog i Karinskog mora. Pridraga je jako lijepo, ugodno i mirno mjesto odlično za odmor, a obalu krase prekrasne plaže. Udaljenost od Zadra iznosi svega 35 km.
Pridraga je atraktivna lokacija za kupnju nekretnine , pogodna za miran život i kvalitetno stanovanje.
Pogledajte našu kompletnu ponudu nekretnina na prodaju .
Ukoliko ste ovu nekretninu vidjeli negdje drugdje po nižoj cijeni, ista cijena vrijedi i kod nas!
Link na često postavljena pitanja
