Ukoliko ste ovu nekretninu vidjeli negdje drugdje po nižoj cijeni, ista cijena vrijedi i kod nas!
Link na često postavljena pitanja
Ne prikazuje se točna adresa nekretnine
Razgledavanje putem VIDEO POZIVA
NAZOVITE NAS 023 300 000

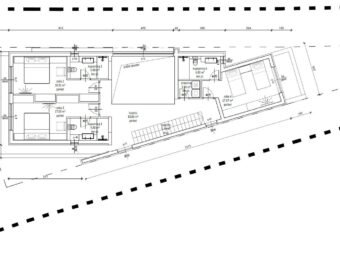
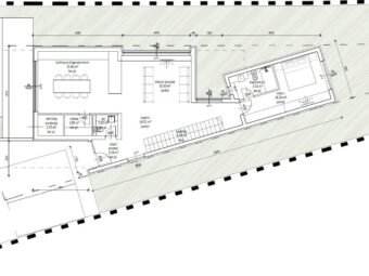
Na prodaju je zemljište površine 511 m², smješteno u Zadru, predio Belafuža, 770 m od mora i 1,5 km od centra mjesta.
Za zemljište postoji glavni projekt za kuću na dva kata s dva bazena – jedan u prizemlju i jedan na terasi na drugom katu, s 4 spavaće sobe s kupaonicama.
Širina zemljišta iznosi oko 9 – 19 m, dok je dužina oko 40 m.
Struja i voda nalaze se uz zemljište, dok je priključak na kanalizaciju moguć.
Belafuža je predio grada pogodan za obiteljski život, mlade ljude, ali i vrlo tražena lokacija i od strane stranih gostiju i turista. Nalazi se svega 15-ak minuta šetnje od centra grada, a povezana je autobusnim linijama. Iako se nalaze relativno blizu centru, dovoljno su odvojeni da pružaju mir i ugodan život. U blizini se nalazi sve što je potrebno za ugodnu svakodnevicu: škola, vrtići, pošta, ugostiteljski objekti, banke i trgovine.
Pročitajte više o Zadru i njegovoj izuzetnoj ponudi za kupnju nekretnina.
Pogledajte našu kompletnu ponudu kuća, stanova, apartmana i zemljišta na prodaju .
Ukoliko ste ovu nekretninu vidjeli negdje drugdje po nižoj cijeni, ista cijena vrijedi i kod nas!
Link na često postavljena pitanja
