Ukoliko ste ovu nekretninu vidjeli negdje drugdje po nižoj cijeni, ista cijena vrijedi i kod nas!
Link na često postavljena pitanja
Ne prikazuje se točna adresa nekretnine
Razgledavanje putem VIDEO POZIVA
NAZOVITE NAS 023 300 000

Na prodaju je atraktivno građevinsko zemljište površine 829 m², smješteno svega 200 m od centra mjesta i tek 8 km od mora. Za zemljište je ishođena građevinska dozvola. Prilaz vodi preko javnog makadamskog puta. Nudi se mogućnost etapne gradnje (dvije faze). Zemljište se nalazi na mirnoj lokaciji i ima južnu orijentaciju.
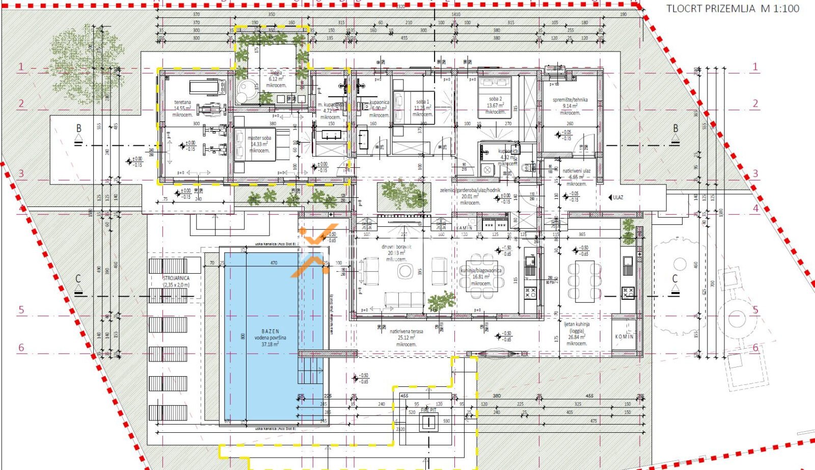
Za predmetnu parcelu već je ishođena građevinska dozvola i glavni projekt. Dozvola predviđa gradnju kuće neto korisne površine 168,65 m², a kuća je projektirana za izgradnju u dvije faze. U prvoj fazi planirana je izgradnja ulaznog dijela, vanjskog spremišta, dvije spavaće sobe, dvije kupaonice, kuhinje i dnevnog boravka. Također će se realizirati vanjska terasa s ljetnom kuhinjom te bazen dimenzija 8×4,70 m (37,18 m²) sa strojarnicom. Nakon završetka prve faze kuća će biti potpuno uporabiva, a u drugoj fazi predviđena je dogradnja master spavaće sobe s vlastitom kupaonicom, teretane te uređenje vanjskog ložišta – fire pita.
Komunalni i vodni doprinos još nisu plaćeni, a obvezu njihova plaćanja preuzima vlasnik ako dođe do realizacije kupoprodaje. Struja je udaljena oko 100 m, dok se voda nalazi na udaljenosti od približno 150 m u glavnoj cesti.
Ova nekretnina predstavlja odličnu priliku za investiciju i gradnju vlastite kuće za odmor ili stalni boravak, s obzirom na blizinu mora i već pripremljenu projektnu dokumentaciju.
Škabrnja je smještena u plodnoj ravnici Ravnih kotara, svega 15 km od Zadra. Poznata je po vinogradima, maslinicima i bogatoj poljoprivrednoj tradiciji, zbog čega pruža pravi doživljaj dalmatinskog zaleđa. Mjesto odiše mirom i autentičnošću, s naglaskom na obiteljski život i zajedništvo. Blizina Zadra, autoceste i obale čini ga izvrsno povezanom lokacijom, dok čista priroda i netaknuti krajolici nude idealno okruženje za sve koji traže miran dom ili investiciju u srcu Dalmacije.
Ukoliko ste ovu nekretninu vidjeli negdje drugdje po nižoj cijeni, ista cijena vrijedi i kod nas!
Link na često postavljena pitanja
