Ukoliko ste ovu nekretninu vidjeli negdje drugdje po nižoj cijeni, ista cijena vrijedi i kod nas!
Link na često postavljena pitanja
Ne prikazuje se točna adresa nekretnine
Razgledavanje putem VIDEO POZIVA
NAZOVITE NAS 023 300 000

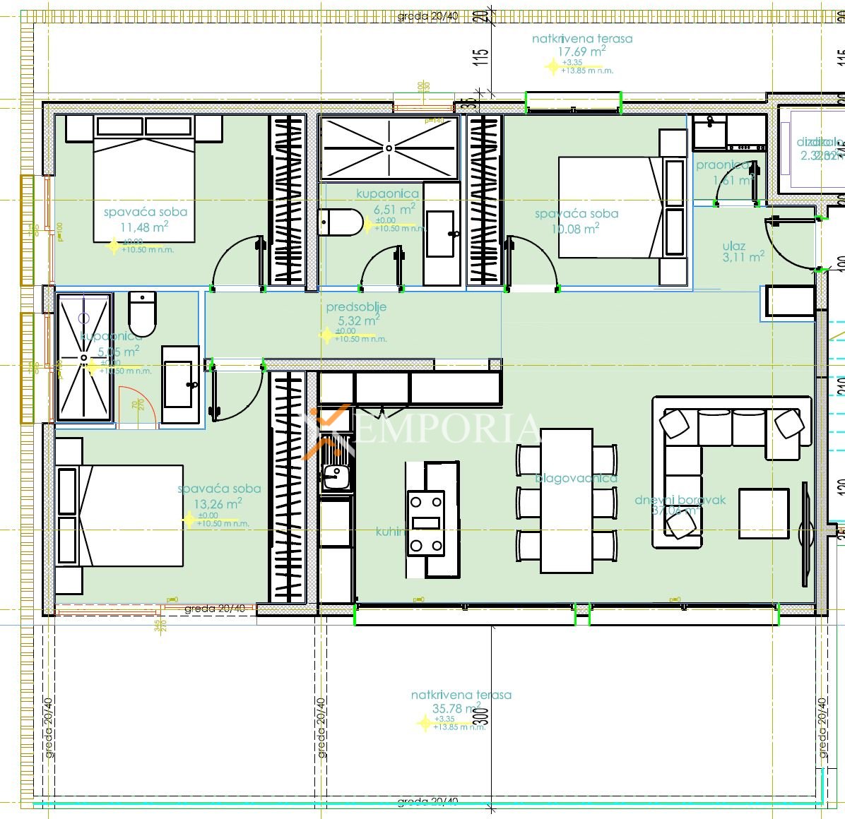
Na prodaju je novogradnja u drugom redu do mora u Svetom Filipu i Jakovu, svega 60 m od mora, s pogledom na more i liftom u zgradi. Apartman se nalazi na prvom katu i nudi prostran, funkcionalan raspored pogodan za udoban boravak tijekom cijele godine.
Neto korisna površina apartmana iznosi 120,21 m², dok ukupna neto površina s pripacima iznosi 125,21 m².
Raspored prostorija uključuje hodnik, dvije spavaće sobe, spavaću sobu s vlastitom kupaonicom, dodatnu kupaonicu, praonicu, kuhinju povezanu s blagovaonicom i dnevnim boravkom te dvije natkrivene terase.
Apartmanu pripadaju dva parkirna mjesta, što dodatno povećava praktičnost korištenja.
Kupac ne plaća porez na promet nekretnina, što ovu ponudu čini dodatno povoljnom.
U kupaonicama je ugrađeno podno električno grijanje, dok su u dnevnom boravku i spavaćim sobama postavljene četiri klima jedinice, koje osiguravaju ugodnu temperaturu tijekom cijele godine.
Nekretnina je građena od ciglenog termo bloka, s aluminijskom stolarijom (troslojno staklo, elektrorolete, komarnici) i stiropor fasadom debljine 10 cm. Podne obloge kombiniraju pločice i parket, ulazna vrata su protuprovalna i protupožarna, a odvodnja je spojena na kanalizaciju. Zgrada ima novi, ravni betonski krov.
Očekivani energetski certifikat je A.
Ovaj apartman predstavlja kvalitetnu novogradnju na izuzetnoj lokaciji blizu mora, idealnu za miran boravak, obitelško stanovanje ili kao dugoročno vrijednu investiciju.
Malo slikovito mjesto Sveti Filip i Jakov smjestilo se na obali Pašmanskog mora, između Zadra i Biograda. Sv. Filip i Jakov mjesto je koje je poznato po nekadašnjim ljetnikovcima što je prethodilo današnjim vikendicama i odlično razvijenom turizmu. Sv. Filip i Jakov poznat je po prekrasnim šljunčanim i pješčanim plažama. Isto tako, dužinom plaže proteže se predivna šetnica koja povezuje rivijeru Sv. Filip i Jakov – Turanj.
Ovo malo mjesto pruža Vam sve što Vam je potrebno za svakodnevni život i za idealan godišnji odmor. Brojni restorani, kafići i trgovine učinit će Vaš boravak u ovom mjestu još opuštenijim. Sveti Filip i Jakov se veže direktno na grad Biograd u kojem se nude brojni dodatni sadržaji, a u neposrednoj blizini nalazi se i poznati, novoizgrađeni Fun Park Mirnovec.
Sv. Filip i Jakov je odlično odredište za kupnju nekretnine uz more , atraktivno za odmor i cjelogodišnje stanovanje.
Pogledajte našu kompletnu ponudu nekretnina na prodaju .
U zgradi su na prodaju i sljedeći apartmani: A1549, A1550 i A1552.
Ukoliko ste ovu nekretninu vidjeli negdje drugdje po nižoj cijeni, ista cijena vrijedi i kod nas!
Link na često postavljena pitanja
