Ukoliko ste ovu nekretninu vidjeli negdje drugdje po nižoj cijeni, ista cijena vrijedi i kod nas!
Link na često postavljena pitanja
Ne prikazuje se točna adresa nekretnine
Razgledavanje putem VIDEO POZIVA
NAZOVITE NAS 023 300 000

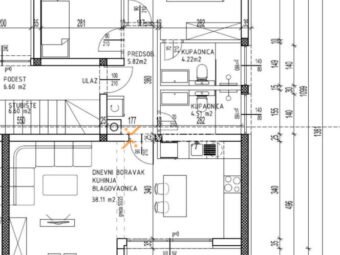
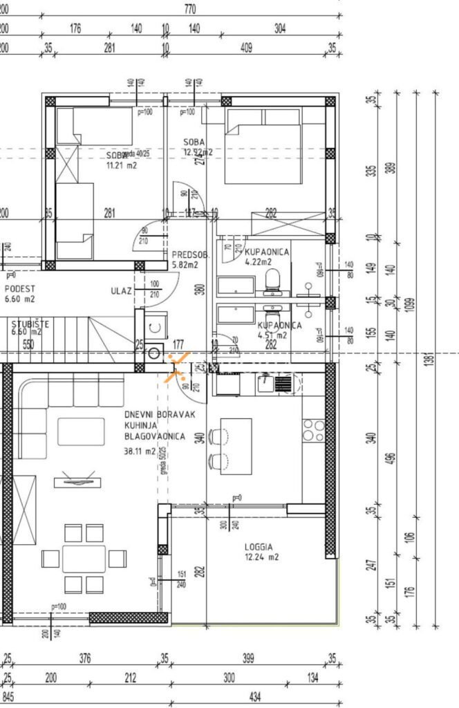
Na prodaju je moderan apartman u Pakoštanima, smješten 520 m od mora i 650 m od centra mjesta. Apartman se nalazi u prizemlju novogradnje planirane za 2026. godinu i prostire se na ukupnu neto površinu od 91,38 m² uključujući pripatke. Posebnu vrijednost daje vrt površine oko 30 m² i mirna lokacija. Raspored prostorija uključuje hodnik, spavaću sobu, dodatnu spavaću sobu s vlastitom kupaonicom, još jednu kupaonicu te kuhinju s blagovaonicom i dnevnim boravkom, iz kojeg se izlazi na lođu. Apartmanu pripada i jedno parkirno mjesto.
Prilikom kupnje ne plaća se porez na promet nekretnina.
Nekretnina je građena od ciglenog termo bloka s fasadom od 10 cm stiropora. Prozori su PVC s troslojnim staklima, električnim roletama i komarnicima. Podovi su izvedeni u kombinaciji pločica i parketa, a ugrađena su protuprovalna i protupožarna ulazna vrata. Grijanje je riješeno električnim podnim sustavom u cijelom stanu, dok su za dodatnu udobnost predviđena tri klima uređaja – u dnevnom boravku i spavaćim sobama. Stan ima dimnjak i priključen je na kanalizaciju. Krov je nov, ravan i betonski, a očekivani energetski certifikat je A. Ovaj apartman predstavlja izvrsnu priliku za udoban život ili kao investicija na atraktivnoj lokaciji u blizini mora i centra mjesta.
Pakoštane je prekrasno dalmatinsko mjesto smješteno u samom središtu jadranske obale i jedinstvenom položaju između mora i Vranskog jezera. Pakoštane nude sve što je potrebno u svakodnevici (trgovine, liječnik, ljekarna, pošta, škola itd.), a savršena su destinacija za godišnji odmor. Četiri nacionalna parka Kornati, Krka, Paklenica i Plitvička jezera te dva parka prirode Telašćica i Vransko jezero jedinstvene su ljepote koje okružuju Pakoštane.
Više informacija o lokaciji možete pronaći na poveznici Zadar i okolica.
Sve apartmane iz naše ponude možete pronaći ovdje.
Zgrada se sastoji od ukupno 6 apartmana. Sljedeći su još dostupni: A1524, A1525, A1526, A1527.
Ukoliko ste ovu nekretninu vidjeli negdje drugdje po nižoj cijeni, ista cijena vrijedi i kod nas!
Link na često postavljena pitanja
