Ukoliko ste ovu nekretninu vidjeli negdje drugdje po nižoj cijeni, ista cijena vrijedi i kod nas!
Link na često postavljena pitanja
Ne prikazuje se točna adresa nekretnine
Razgledavanje putem VIDEO POZIVA
NAZOVITE NAS 023 300 000

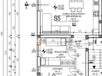
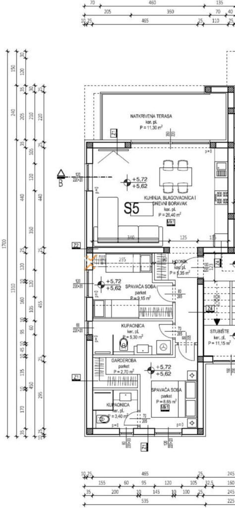
U prodaji je moderan apartman u novogradnji, smješten u Rovanjskoj, na atraktivnoj lokaciji samo 120 m od mora i 800 m od centra mjesta. Apartman se nalazi na 2. katu suvremene zgrade s ravnim betonskim krovom te nudi odličan pogled na more. Ukupna neto površina stana iznosi 69,35 m², a uključuje natkrivenu terasu i vlastiti parking.
Stan se sastoji od hodnika, dvije spavaće sobe – od kojih jedna ima vlastitu kupaonicu i garderobu – dodatne kupaonice, kuhinje s blagovaonicom i dnevnim boravkom te natkrivene terase.
Kupaonice imaju električno podno grijanje, a sve prostorije su klimatizirane s ukupno tri klima uređaja – u dnevnom boravku i u svakoj spavaćoj sobi. Ugrađena je PVC stolarija s troslojnim staklom, električnim roletama i komarnicima. Podovi su obloženi pločicama. Ulazna vrata su protuprovalna i protupožarna. Zgrada je građena od ciglenog termo bloka, a fasada je izolirana 10 cm debelim slojem stiropora.
Završetak gradnje planiran je za 2026. godinu, a očekivani energetski certifikat je razreda A.
Smještena u uvali gdje se miješaju kontinentalna i morska klima, na samom kraju Podvelebitskog kanala Rovanjska je savršena za miran život i odmor. Odlična lokacija, direktni izlaz na autoput, 25 minuta vožnje do Zadra, 10 minuta do Starigrada te 250 km do glavnog grada Zagreba Rovanjska je postala turistička oaza koja nudi miran i ugodan odmor u Dalmatinskom ambijentu.
Više o mjestu pročitajte na linku Rovanjska.
Kompletnu ponudu naših nekretnina u Jasenicama možete vidjeti ovdje.
U istoj zgradi u ponudi su još: A1517, A1518, A1519, A1520, A1522.
Ukoliko ste ovu nekretninu vidjeli negdje drugdje po nižoj cijeni, ista cijena vrijedi i kod nas!
Link na često postavljena pitanja
